Accessmatic InFinity 624 Manuale utente

Opening your life
MANUAL DE USUARIO
Motor para puerta corrediza
ADVERTENCIA
Por favor lea el manual detenidamente antes de la instalación el uso del producto. La instalación de su nueva puerta debe ser realizada
por una persona técnicamente calificada o licenciada.Tratar de instalar o reparar el motor sin tener la calificación técnica puede resultar
en severas lesiones personales, muerte y/o daños a la propiedad.
Infinity 624

Advertencias
Instalación estándar
Descripción del dispositivo
Dimensiones del dispositivo
Placa de montaje
Instalación de engranajes de motor y cremallera
Comprobando la instalación
Lanzamiento manual
Fijación del motor en las almoadillas de hormigón
Base de soporte
Conexión por medio de cables
Transmisor proceso de memorización y borrado
Aprendizaje del sistema, proceso de reinicio y pantalla LED
Advertencias
Conguración de funciones programables
Conguración de funciones
Reconocimiento de LED
Característica técnica
AccessAgent
Conectar a Accessmatic
Soluciones de problemas frecuentes
AccessAgent
CONTENIDO
1
2
2
2
3
3
4
4
5
5
7
8
8
9
10
12
13
13
14
15
21
Opening your life
Infinity 624

1
Advertencia
1) Todos los procedimientos de instalación, conexiones eléctricas, ajustes y pruebas deben realizarse una vez se hayan
entendiendo todas la instrucciones de operación de este producto.
2) Desconecte la fuente de alimentación mediante el interruptor de apagado o la magneto térmica con la conexión ascen-
dente, y el área de peligro requerida por las regulaciones pertinentes.
3) La estructura existente debe ser estándar en términos de fuerza y estabilidad.
4) Si es necesario, conecte la puerta motorizada a sistemas ables en fase de conexión eléctrica.
5) Los instaladores requieren habilidades en mecánicas y electricidad.
6) Los controles automáticos (controles remotos, pulsadores, selector de teclas, etc.) deben colocarse de forma adecuada, y
lejos del alcance de los niños.
7) Solo se pueden utilizar piezas originales para el reemplazo o reparación del sistema motorizado. Cualquier daño causado
por piezas y usos inadecuados no tendrá garantía del fabricante del motor.
8) No opere las unidades si estos pueden causar fallas o daños al sistema.
9) Los motores únicamente están diseñados para la apertura y cierre de la compuerta, el fabricante no sera responsable por
cualquier daño causado por el uso incorrecto.
10) El sistema solo se debe operar bajo condiciones de funcionamiento adecuadas y siguiendo los procedimientos descri-
tos en este manual.
11) Use únicamente el control remoto cuando tenga una vista completa de la puerta. El fabricante no se hace responsable
por daños causados por el uso indebido o la instalación inapropiada del sistema.
Por favor, guarde este manual del usuario para futuras referencias.
Intalación standar
Figura 1
Opening your life
Infinity 624

2
Descripción del dispositivo
Dimensiones del despositivo
a) Engranaje de operación
b) Dispositivo de n de carrera
c) Respado de baterías (Opcional)
e) Dispositivo de liberación
f) Panel de control
g) Terminales de dispositio
Figura 2
Figura 3
Opening your life
Infinity 624

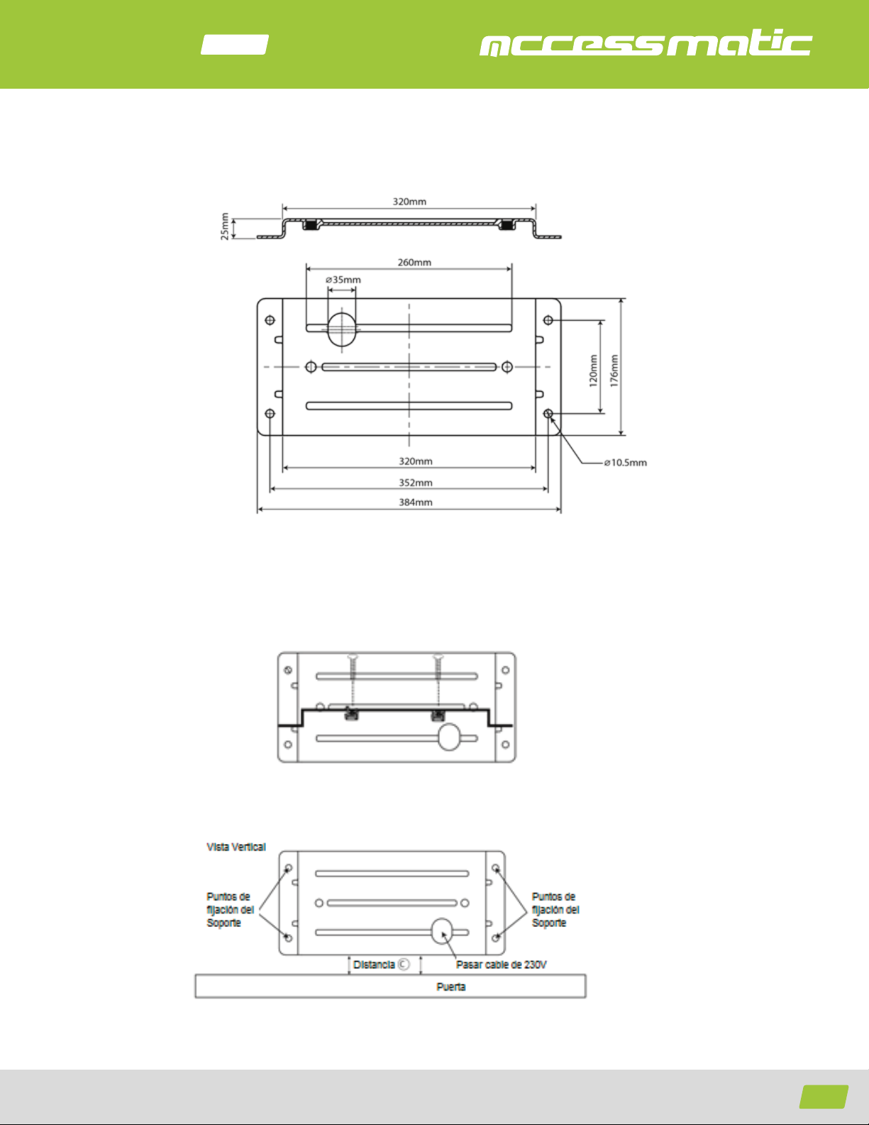
13
Brida de montaje
Figura 4
Figura 5
Figura 6
Instalación del engranaje del motor y del estante del engranaje
Opening your life
Infinity 624

Esta posición es privilegiada porque protege al operador de cualquier agua estacada.
1) Instale las 2 tapas de tuerca en la brida (Figura 5)
2) Coloque la brida sin ajustarla en la ubicación exacta
Debe estar perfectamente alineada (Figura 6)
3) Marque los 4 puntos de jación al suelo
4) Retire la placa
5) Perfore el concreto e instale 4 anclajes metálicos con varillas roscadas de 8 mm en los 4 sellos químicos
Deje por fuera 20 mm de las varillas
6) Espere a que se complete el ajuste y el secado
7) Pase todos los cables (fuente de alimentación + Accesorios) por la base. (Figura 6)
8) Posicione la base
9) Ajuste la base y el perno
10) Pase los cables en el operador
11) Fije el operador con los tornillos en la tapa de la tuerca
Vericación de la instalación
Figura 7
Figura 8
Liberación manual
En caso de fallos de energía o para programar su puerta automática, puede liberar manualmente los operadores:
Párese en el lado interno del portal. Inserta la llave hexagonal que se usa para desbloquear, y luego gírela 180 ° en el sentido
de las agujas del reloj. Ahora puede abrir la puerta manualmente.
Para volver a asegurar el motor, inserte la llave hexagonal que se usa para desbloquear, y luego gire 180° hacia la otra direc-
ción.
14
Opening your life
Infinity 624

Fijación del motor en las almoadillas de hormigón
Esta instalación se recomienda en áreas con fuertes nevadas y donde haya riesgo de inundación. El principio es el mismo
que el anterior ejemplo, pero esta vez el motor se eleva desde el suelo. La altura de las almohadillas de concreto se decide
bajo su criterio. Tenga en cuenta que, en todos los casos, la altura del estante está directamente relacionado con la altura
nal del operador.
Es imprescindible nunca lubricar las rejillas
Los bastidores provistos, el material termoplástico con inserción de acero,
son adecuados para puertas con un peso máximo de 600 kg. Se montan
de forma fácil a la puerta únicamente con solo atornillar. Se suministran
los tornillos autorroscantes. Si la construcción de su puerta no permite
bastidores de montaje directo, deberá crear una nueva base de soporte.
(Figura 9)
La altura de la cremallera debe ajustarse para que el peso de la puerta no
se ubique en el piñón de arrastre. Debe haber siempre un espacio de 1,5
cm a 2 cm entre el motor de accionamiento y el bastidor durante el
recorrido del operador.
La garantía del producto no cubre ninguna diferencia de espacio por
encima o por debajo que genere un desgaste prematuro.
Figura 9
Figura 10 Figura 11
Base soporte
A) Coloque la primera rejilla en el piñón de arrastre y trace las ubicaciones de perforación completamente. El estante debe
estar perfectamente horizontal. Marque un rasgo en la parte superior del estante. Proceda de esta manera en toda la longi-
tud de la puerta. (Figura 10) Nota: Ayúdate a usar una pieza de rack para estabilizar 2 piezas de bastidores. (Figura 11)
Orificio de la
C
remallera
5
Opening your life
Infinity 624

Figura 12
Figura 13
Figura 14
B) Retire la rejilla.
C) Perfore el oricio en la parte superior de todos los rastros marcados. (Figura 13)
D) Fije el estante, para obtener el espacio necesario entre la rueda y el estante, levante el estante ligeramente en su posición,
de este modo obtendra el espacio deseado entre la rueda de estrella del operador y el estante. (Figura 14)
Apoyo
Soporte base
Soporte base
Engranaje
impulsor
6
Opening your life
Infinity 624

Figura 15
Conexión de cables
Si la pantalla LED está en funcionamiento normal, consulte la sección "4.2.1", usted puede controlar la puerta con cualquiera
de los transmisores o con el botón: "UP " mover en el sentido de las agujas del reloj, "SET" – Detener y "DOWN" – Mover en
sentido anti horario.
17
Opening your life
Infinity 624

Figura 16
Figura 17
Memorización del sistema, proceso de reinicio y pantalla led
PRECAUCIÓN: antes de continuar con la memorización del sistema, el proceso de memorización del transmisor debe ser
completado.
1) Para completar la memorización del sistema:
Paso 1: Presione "SET"; luego presione "SET" + "DOWN" durante 3 segundos, y la pantalla LED mostrara "LE"
Paso 2: Presione el botón izquierdo (A) unos segundos, la pantalla LED debe mostrar "LP"
Paso 3: la puerta va memorización automática, espere a que se complete el proceso de memorización. 6
4 5
1 2 3
Memorización del transmisor y proceso de borrado
1) Memorización del transmisor: Presione el botón "RF Learn" durante 2 segundos, la pantalla LED mostrara "CS"; luego
presione el botón izquierdo del transmisor (A); la pantalla LED parpadeará dos veces y luego será apagara. La memorización
del transmisor estará completa.
2) Borrado de la memoria: Presione el botón "RF Learn" durante 5 ~ 6 segundos, la pantalla LED estará encendida, luego
espere a que la pantalla se apague.
18
Opening your life
Infinity 624
Indice
Lingue:
Altri manuali Accessmatic Apricancello























