6
FR INSTRUCTIONS POUR l’INSTALLATEUR
AVERTISSEMENT IMPORTANT
LES OPERATIONS REPORTEES CI-APRES DOIVENT ETRE EXECUTEES DANS LE RESPECT DES
NORMES EN VIGUEUR, EXCLUSIVEMENT PAR DU PERSONNEL QUALIFIE.
LE FABRICANT DECLINE TOUTE RESPONSABILITE POUR LES DOMMAGES AUX PERSONNES,
ANIMAUX ET CHOSES DERIVANT DU NON-RESPECT DE CES DISPOSITIONS.
INSTALLATION
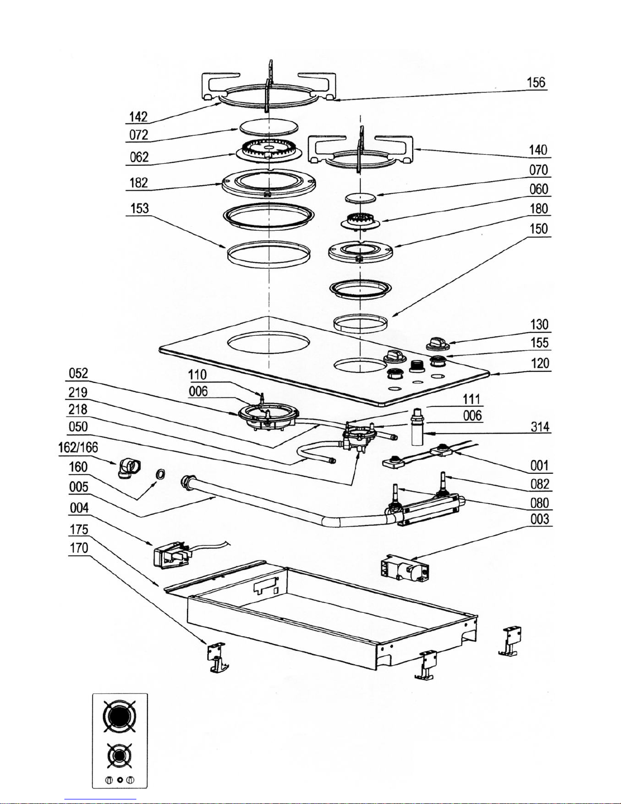
Montage de la table de cuisson
L’appareil est fabriqué pour être encastré dans des
meubles résistant à la chaleur.
Les parois des meubles doivent résister à une
température de 65°C en plus de la température
ambiante, conformément aux normes
européennes EN 80 335-1-2-6.
L’appareil est de type “Y”, c’est-à-dire qu’il peut
être installé avec une seule paroi latérale, à droite
ou à gauche de la table de cuisson.
Eviter d’installer l’appareil à proximité de
matériaux inflammables comme des rideaux, des
torchons, etc..
Pratiquer une ouverture, dans le plateau du
meuble, des dimensions indiquées en fig. 5, en
respectant une distance d’au moins 50 mm entre
le bord de l’appareil et les parois voisines.
En cas de présence d’une armoire murale au-
dessus de la table de cuisson, il faut prévoir une
distance minimale de 760 mm entre celle-ci et le
plan de travail.
Il est conseillé d’isoler l’appareil du meuble se
trouvant au-dessous avec un séparateur en
laissant un espace de dépression d’au moins 10
mm (fig. 6).
Cet appareil est de classe 3.
Fixation de la table de cuisson
Chaque table de cuisson est accompagnée d’un
joint spécial avec côté adhésif.
- Enlever les grilles et les brûleurs de la table de
cuisson.
- Retourner l’appareil et appliquer le joint adhésif S
le long du bord externe du verre (fig. 7).
- Insérer et positionner la table de cuisson dans
l’ouverture pratiquée dans le meuble et la bloquer
avec les vis V des crochets de fixation G (fig. 8).
Pièce d’installation
Cet appareil n’est pas équipé d’un dispositif
d’évacuation des produits de la combustion ; il est
donc nécessaire d’évacuer les fumées vers
l’extérieur en utilisant une hotte ou un ventilateur
électrique qui soit mis en marche à chaque fois
que l’on utilise l’appareil.
La pièce où est installé l’appareil doit avoir un
afflux d’air naturel pour la combustion régulière du
gaz et pour la ventilation de la pièce : le volume
d’air nécessaire ne doit pas être inférieur à 20 m3.
L’afflux d’air doit s’effectuer par une ouverture
permanente pratiquée sur les murs de la pièce et
communicante avec l’extérieur.
La ventilation peut également provenir d’une pièce
contiguë, dans ce cas respecter les normes en
vigueur à ce sujet.
Les ouvertures doivent avoir une section minimale
de 200 cm2.
Branchement gaz
S’assurer que l’appareil est adéquat pour le type
de gaz disponible; pour cela se référer à l’étiquette
placée sous l’appareil ou à celle reportée sur la
dernière page de ce manuel.
Opérer conformément aux instructions reportées
au paragraphe “transformations gaz et réglages”
pour l’éventuelle adaptation à des gaz différents.
L’appareil doit être raccordé à l’installation du gaz
en utilisant des tubes métalliques rigides ou avec
des tuyaux flexibles en acier à paroi continue
conformes aux normes en vigueur.
Le raccord d’entrée gaz de l’appareil est fileté _
gaz cylindrique mâle.
Le raccordement ne doit pas provoquer de
sollicitations à la rampe de gaz.
Une fois l’installation terminée, contrôler
l’étanchéité des raccordements avec une solution
savonneuse.
Branchement électrique
Le branchement au réseau électrique doit être
exécuté par du personnel qualifié conformément
aux normes en vigueur.
La tension de l’installation électrique doit
correspondre à celle indiquée sur l’étiquette située
sous l’appareil. Vérifier que l’installation est
équipée d’un branchement à la terre efficace
conformément aux normes et aux dispositions de
loi. La mise à la terre est obligatoire.
Si l’appareil est sans fiche, appliquer au câble
d’alimentation une fiche normalisée.
Il est possible d’effectuer directement le
branchement au réseau électrique en interposant
un interrupteur omnipolaire ayant une distance
d’ouverture des contacts d’au moins 3 mm.