
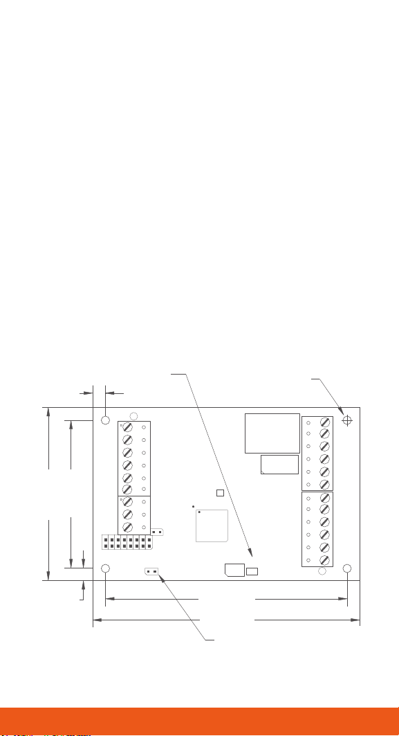
6| Single Reader Expansion Module
FUSE
DIODE
TO DC POWER SOURCE
Typical DC Door Strike Wiring
DIODE SELECTION
• Diode current rating: 1x strike current
• Diode breakdown voltage: 4x strike voltage
• For 12V DC or 24V DC strike, diode 1N4002
(100V/1A) typical
Relay Wiring
Two Form-C contact relays are provided for controlling
door lock mechanisms. Each relay has a Common pole (C), a
Normally Open pole (NO), and a Normally Closed pole (NC).
When momentarily delivering power to unlock the locking
hardware (fail secure), the Normally Open and Common
poles are used. When momentarily removing power to
unlock the locking hardware (fail safe), the Normally Closed
and Common poles are used. Check with local building codes
for proper egress door installation. 18 AWG minimum
recommended for electric locking hardware.
The current ratings are 5 A for relay K1 and 1 A for relay
K2. Load switching can cause abnormal contact wear and
premature contact failure. Switching of inductive loads
(strike) also causes EMI (electromagnetic interference),
which may interfere with normal operation of other
equipment. To minimize premature contact failure and
to increase system reliability, a contact protection circuit
may be used.
The following circuit is recommended. Locate the protection
circuit as close to the load as possible (within 12 inches
if it is located far away.