American Products AP FREEDOM Manuale utente

AP FREEDOM
™
Triple Bay Telecommunications Enclosure
Owner’s Manual
Turn-Key Enclosure Solutions
Form 36-0068-00
Updated: 04/28/2022
597 Evergreen Road
Straord MO 65757
4177362135
Toll Free: 8557362135
Web: www.amprod.us

2
AP FREEDOM
™
THIS PAGE INTENTIONALLY LEFT BLANK
Page: 2

3
Page: 3
AP FREEDOM
™
Table of Contents
Contacting Us ............................................................................................................................................................... 4
Safety First .................................................................................................................................................................... 5
Labeling Information .................................................................................................................................................. 6
Product Overview ......................................................................................................................................................... 7
Product Measurements ................................................................................................................................................ 8
Door Latches ............................................................................................................................................................... 9
Clearance Requirements ............................................................................................................................................. 10
Lifting Provisions ......................................................................................................................................................... 11
Grounding ................................................................................................................................................................... 12
Appendix A ................................................................................................................................................................ 13
Technical Support ........................................................................................................................................ 13
Warranty Policy ............................................................................................................................................ 13

4
AP FREEDOM
™
Contacting Us
American Products can be contacted for any issues that arise with the
supplied product.
Technical assistance is available 9am to 4pm central standard time.
• Toll Free: (855) 736-2135
• Phone: (417) 736-2135
• Fax: (417) 736-9535
• Email: Sales@amprod.us
• Web: www.amprod.us
When calling, please have available, or if faxing or emailing, be sure to
provide:
• Part Number
• Serial Number
• Date of Purchase
• Date of Installation
Page: 4

5
Page: 5
AP FREEDOM
™
DANGER Indicates a hazardous situation that, if not avoided, will result
in death or serious injury. This signal word is to be limited to
the most extreme situations.
WARNING Indicates a hazardous situation that, if not avoided, could result
in death or serious injury.
CAUTION Indicates a hazardous situation that, if not avoided, could result
in minor or moderate injury.
NOTICE:
Indicates information considered important, but not hazard
related (e.g. messages relating to property damage). The safety
alert symbol shall not be used with this signal word. When a
signal word is used for messages relating to property damage,
NOTICE is the choice of signal word.
Safety First
This publication provides a description of the American Products AP FREEDOM™ Triple Bay
Enclosure. The mechanical descriptions, typical applications, installation instructions, safety
guidelines and grounding are included.
Four types of messages may appear throughout this manual, identied by the following
icons and signal words:
Read equipment manufacturer’s manual and this
material before using this product. Failure to do so
can result in serious injury or death.
NO JOB IS
SO IMPORTANT,
NO SERVICE
SO URGENT
THAT WE CANNOT
TAKE TIME
TO PERFORM
ALL WORK
SAFELY!

6
AP FREEDOM
™
Important Labeling Information
ETL & Serial
Number Label
Accepted Label
Inspected Label
AP FREEDOM™ Triple Bay Enclosure for NEMA Type 4
Powder Coating Tested to Standards:
Telcordia GR487 for Telecommunications Enclosures
American Products
Label
Page: 6

7
Page: 7
AP FREEDOM
™
Product Overview
• The cabinet is constructed of Aluminum and Stainless Steel with powder coat painted
nish for reduced weight and superior corrosion resistance. The front doors are equipped
with three point pad-lockable door latches. The top of the cabinet has a double wall
construction to reduce the eects of solar radiation and for structural integrity.
• The equipment-mounting bay has 19”Rack Rails and 24 RUs of space in each bay.
• The cabinet utilizes stainless steel hardware, UL recognized EPDM edge gasketing (temp
range of - 40F to +212 F.
• When installing cabling or equipment that enters the cabinet, Type 4 entrances, ttings or
equipment is to be used to maintain the integrity of the enclosure
• No live equipment or components are to be installed below the lowest RU rack mounting
provision or on the oor of the enclosure with the exception of batteries.
PART NUMBERING EXAMPLE
AM 78 F - 9042 - 126RU
Cabinets
AM 78 F - FP - 115
Accessories
American Products
American Products
Cabinet Height
Cabinet Height for Accessory
Series
Series
Cabinet Width & Depth
Accessory Designation
Cabinet Rack Unity Capacity
Accessory Size and/or Style

8
AP FREEDOM
™
AP FREEDOM™ Triple Bay Enclosure for Type 4
Product Measurements
78”
81.45”
Available
Cabinet
Height
36” Min
42” Max
Available
Cabinet
Depth
90”
Available
Cabinet
Width
94”
Page: 8

9
Page: 9
AP FREEDOM
™
Quarter Turn 3-Point Locking Door Latches
The cabinet doors are equipped with quarter-turn 3-point padlock-able door latches. The
latches are secured by turning the handle a quarter turn clockwise until the stop is reached.
Convenient security padlock hole to allow for a standard Master lock (or equivalent) to be
installed. With a padlock on the latch, access door cannot be opened protecting the cabinet
from undesired intrusion.
Quarter Turn 3-point Padlock-able Door Latch

10
AP FREEDOM
™
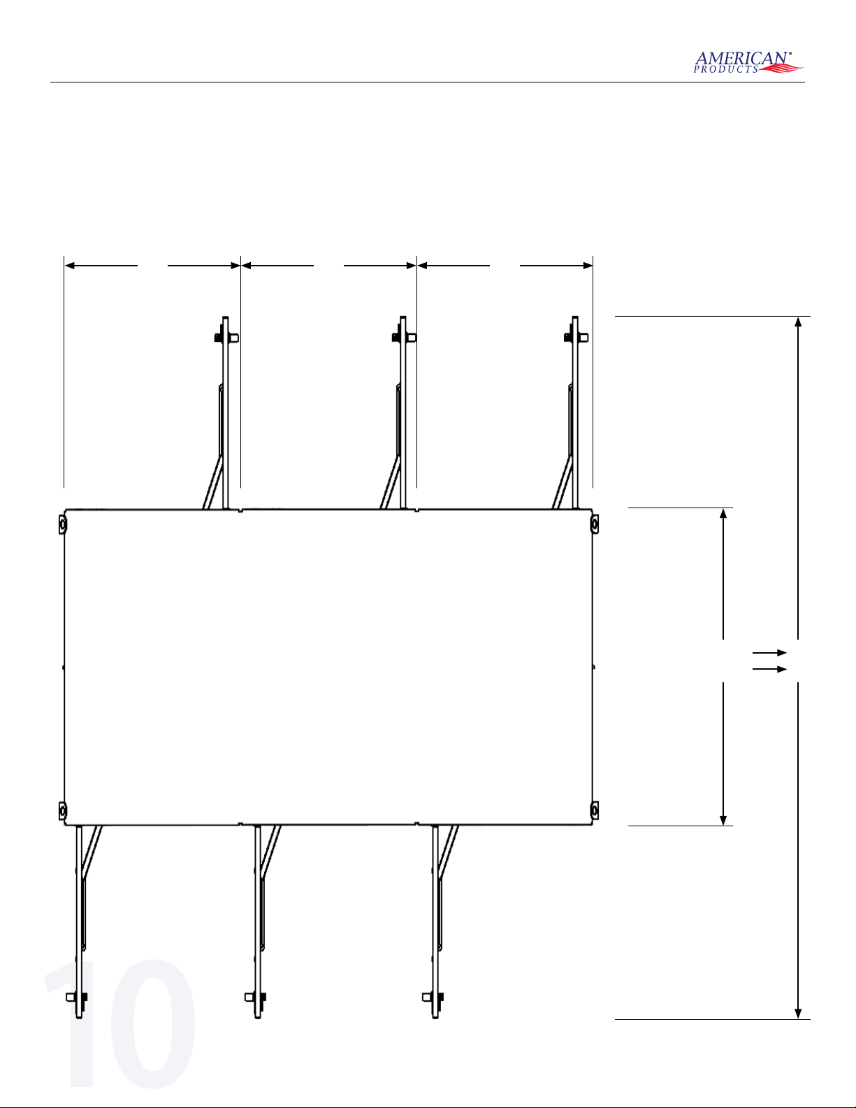
30” 30” 30”
36” DEPTH
42” DEPTH
96”
102”
Clearance Requirements
When selecting a location to mount the cabinet, ensure that proper clearance is available to
allow the cabinet door to open fully.
See Figure below for top view of cabinet footprint.
Page: 10
Questo manuale è adatto per i seguenti modelli
1
Indice

















