
READ THIS MANUAL
This manual is provided for the MS-600 dehumidifier so the user can gain a thorough
understanding of the proper set-up, operation, and maintenance. This dehumidifier is built around
tested engineering principles and has passed a thorough inspection for quality of workmanship
and function. A thorough understanding of the set-up, operation, and maintenance of this
equipment will allow it to provide maximum performance and reliability.
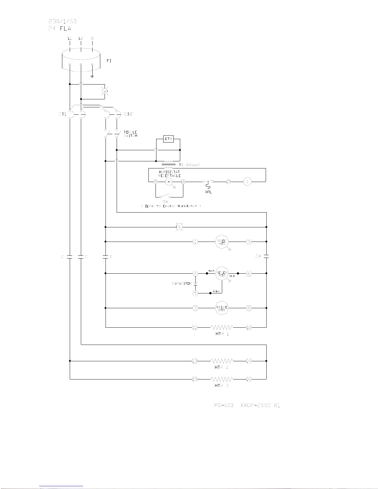
PRINCIPLES OF OPERATION
The MS-600 is a self-contained desiccant dehumidifier designed to efficiently remove water vapor
from the air. A portion of the desiccant rotor is exposed to the “process” air effectively adsorbing
moisture while the second portion of the rotor is exposed to heated “reactivation” air effectively
removing the adsorbed moisture. This process is done on a continuous basis, providing constant
dehumidified process air.
MACHINE SET-UP
-Carefully remove the machine from its shipping carton.
-Thoroughly inspect the machine for shipping damage. Should any damage be found, report the
damage to the freight company immediately.
-Carefully place the machine on a level surface within the space to be dried.
-Connect 10” hoses to the process inlet and outlet as required for the drying project.
-Connect 10” hoses to the reactivation inlet and outlet as required for the drying project.
CAUTION-Do not pinch or kink the hoses. Blockage of the hoses will result in reduced airflow
and moisture removal capacity.
-Check to ensure the machine is turned “off” prior to connecting power. Circuit breakers are
provided in the control enclosure. Check that they are switched “on” once power is applied.
-Connect an appropriate power cord and locking connector to the flanged inlet receptacle
provided at the rear of the machine. The cord should be connected to 220vac power with 30a
breaker or fuse with proper grounding.
-Unit is intended for indoor operation and needs to be protected from the weather
OPERATION
Machine operation is fully automatic and requires no adjustments to airflow or other primary
functions.
- 1 -