
Multi-VRF Centralized Controller Operation Manual
5
Wiring Instructions:
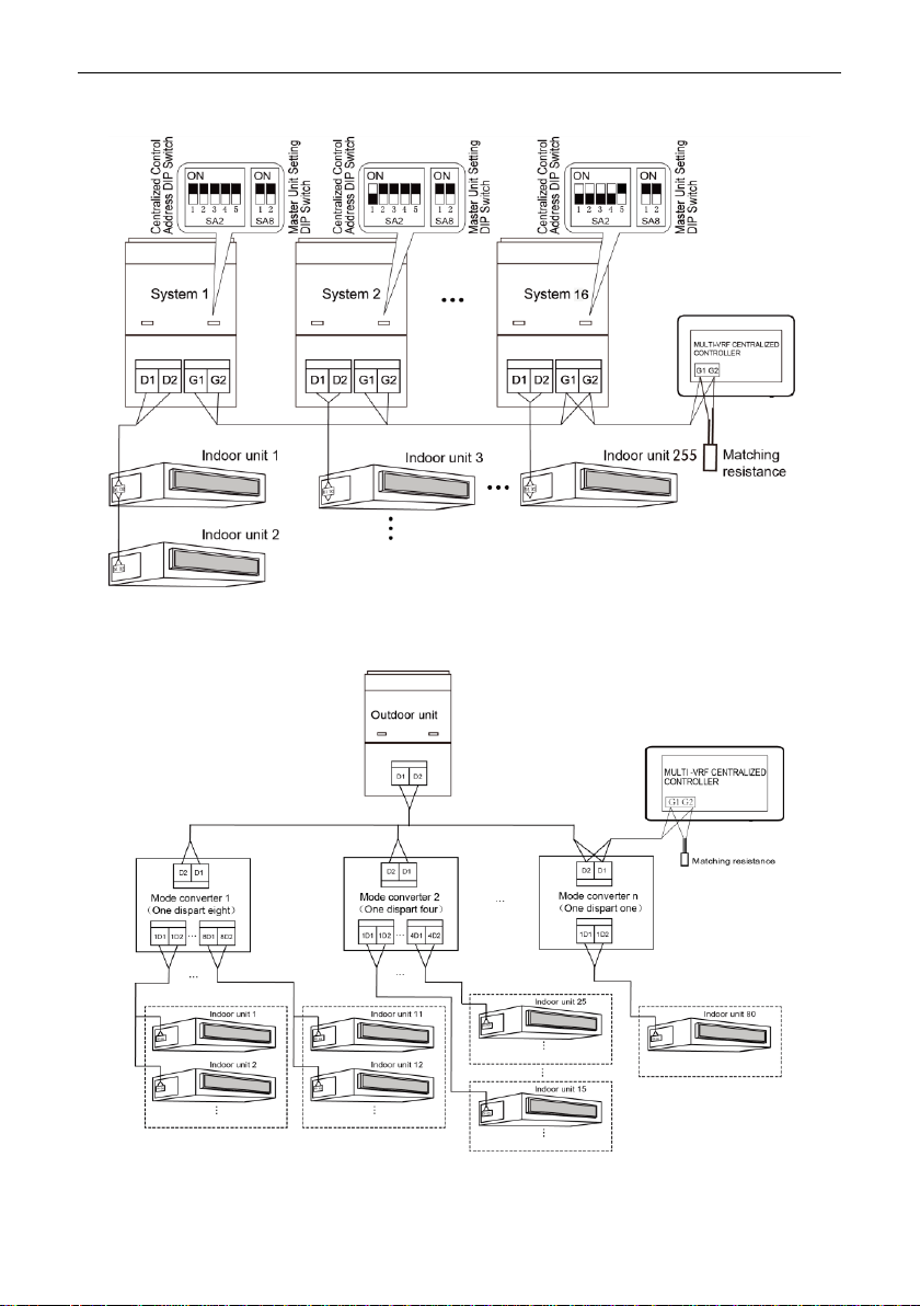
a. The centralized controller is applicable to multi VRF units, connectable with
network of indoor units or the network of outdoor units. One centralized controller can
control up to 16 sets of outdoor system and up to 255 sets of indoor unit.
b. If the centralized controller is to be connected with the network of indoor units,
connect according to fig.1.4. The controller can connect with any one indoor unit in
series, that is, connect the controller’s G1 and G2 ports with the D1 and D2 ports
correspondingly with communication cords. When the controller is connected with the
terminal unit of indoor network, a matching resistance needs to be added with the
communication cords at the G1 and G2 ports.
c. If the centralized controller is to be connected with the network of outdoor units,
connect according to fig.1.5. The centralized controller can only be connected with the
terminal system of the outdoor network. A matching resistance needs to be added with
the communication cords at the G1 and G2 ports.
d. The centralized control address DIP switch (SA2_Addr-CC) indicates the
centralized control address required when different refrigerating systems are controlled
in a centralized manner. The default factory setting is "00000".
e. If the centralized controller is to be connected with the network of heat
recollection, connect according to Fig. 1.6. The method 2 is also applicable to
centralized controller switching in heat recollection network.
If the centralized controller is to be connected with the network of outdoor units, set
the DIP switch according to the following methods:
a) The DIP switch must be set on the master unit and set the Master Unit Setting
DIP Switch(SA8) to "00".Otherwise, the setting is invalid.
b) On the same refrigerating system, the centralized control address DIP switch
(SA2_Addr-CC) on a non-master unit is invalid, and it is unnecessary to
change the settings.
c) The centralized control address DIP switch (SA2_Addr- CC) on the master
unit of a refrigerating system must be set to “0000/”, and this system is the
master system.
d) The centralized control address DIP switch (SA2_Addr- CC) on the master
unit of other refrigerating systems must be set as follows:
Note: The centralized control address switch of DIP5 invalidation