
Installazione come amplificatore video in impianti a 5 fili
Il dispositivo AV3007 è progettato per essere installato sui fili della colonna di un impianto videocitofonico standard Bitron
Video. Esso può essere dislocato in qualunque punto dell’impianto sebbene sia fortemente sconsigliato il montaggio nelle
immediate vicinanze del posto esterno, in quanto inutile e potenzialmente deleterio. Il montaggio nelle vicinanze del monitor
alla fine della tratta, sebbene questa configurazione non abbia controindicazioni specifiche, non è sempre consigliabile
(specialmente in caso di lunghissime distanze in quanto la resa dell’amplificatore non è ottimale. Il corretto posizionamento
del dispositivo è quindi normalmente a metà tratta e comunque dopo circa 200 m dal posto esterno
Per quanto riguarda l’alimentazione, viene prelevata direttamente dal filo 3 di alimentazione dei monitor, che e’ presente
nella colonna montante dell’impianto.
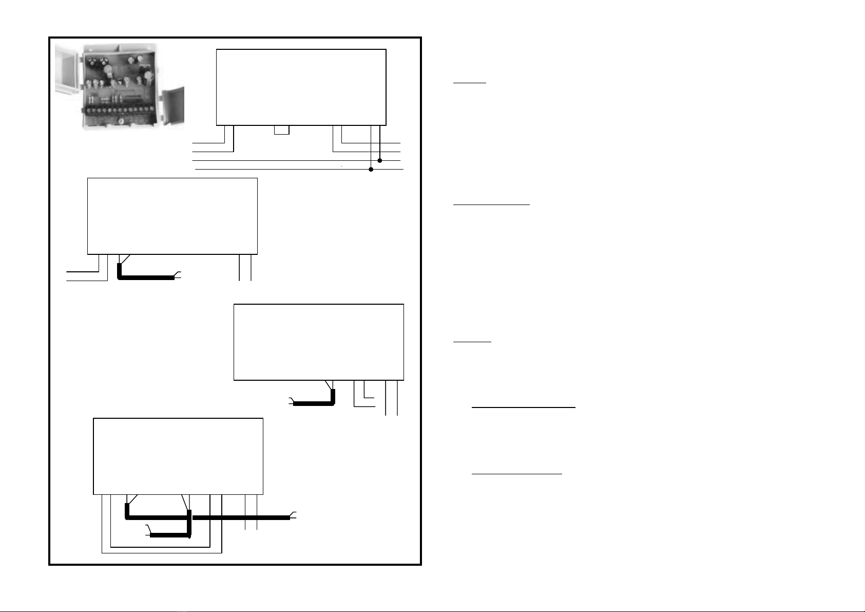
Per il corretto funzionamento come amplificatore video differenziale il dispositivo dovrà essere collegato nel modo
seguente (fig.2):
• Ain e Bin devono essere collegati ai fili A e B provenienti dal gruppo video.
• Aout e Bout devono essere collegati ai fili A e B di colonna verso i monitor
• + e - devono essere collegati in parallelo ai fili 3 e1 della colonna
• LINE-OUT collegato a LINE-IN per mezzo di un ponticello esterno
Installazione come convertitore di sistema
Il dispositivo AV3007 grazie alla sua particolare circuitazione, può essere utilizzato come convertitore da sistema coassiale a
“differenziale a 2 fili” e viceversa.
Da un sistema differenziale su due fili , ad un sistema in cavo coassiale (fig3).
In questo caso si andranno ad utilizzare i segnali):
• Ain e Bin come ingressi
• COAX-OUT come uscita.
• +e –alimentati da una tensione 12 –20 V DC
Questa configurazione risulta particolarmente utile nel caso del collegamento di un monitor TVCC standard a grande
distanza su di un impianto videocitofonico a 5 fili. I controlli di guadagno ed enfasi sono ovviamente attivi
Da un sistema in cavo coassiale ad un sistema differenziale su due fili (fig4).
In questo caso si andranno ad utilizzare i segnali:
• COAX-IN come entrata
• Aout e Bout come uscite.
• +e –alimentati da una tensione 12 –20 V DC
Questa configurazione permette di utilizzare del cavo decisamente più economico (il doppino) al posto del cavo
coassiale, per la trasmissione del segnale video e può essere impiegato sia per inviare segnali provenienti da
telecamere standard CCTV in impianti video citofonici a 5 fili, sia (se usato in abbinamento ad un secondo AMV3000
usato come convertitore differenziale –coassiale) per la trasmissione di segnali TVCC su doppino.
In questa configurazione i controlli di guadagno ed enfasi non sono attivi.
Installazione come amplificatore di cavo coassiale
L’amplificatore video può essere configurato per amplificare e trattare anche i segnali standard su cavo coassiale (fig.5).
In questo caso si utilizzano i segnali:
• coax-in come entrata
• coax-out come uscita
In questo caso occorrerà però ponticellare gli altri segnali nel modo seguente:
• Aout collegato con Ain
• Bout collegato con Bin.
• + e– alimentati da una tensione 12 –20 V DC
Anche in questa configurazione, i controlli guadagno ed enfasi sono funzionanti.
Descrizione del cablaggio :
Il modulo AMV3000 è dotato dei seguenti morsetti:
Ain Entrata differenziale segnale video negativo
Bin Entrata differenziale segnale video positivo
COAX-OUT Uscita segnale video su cavo coassiale a 75OHM
GND Massa cavo coassiale
LINE-OUT Uscita segnale rigenerato (collegare con LINE-IN)
LINE-IN Ingresso segnale rigenerato
GND Massa cavo coassiale
COAX-IN Ingresso segnale video da cavo coassiale 75OHM
Bout Uscita differenziale segnale video positivo
Aout Uscita differenziale segnale video negativo
Vout Uscita segnale video a 75 OHM in alternativa a Bout
+ Ingresso alimentazione 12-20V DC (filo 3 della colonna)
- Massa alimentazione (filo 1 della colonna)
Funzionamento
A seconda di come viene collegato il dispositivo AMV3000 AV3007 svolge una differente funzione.
Le tipologie di collegamento sono le quattro:
Amplificatore differenziale – differenziale
La modalità di collegamento è descritta in fig.2.
Il dispositivo preleva l’alimentazione direttamente dai fili 1 e 3 di impianto e provvede a ricevere il segnale proveniente
dal gruppo video ed ad amplificarlo in funzione della regolazione del trimmer guadagno ed enfasi.
Il controllo del guadagno permette di aumentare il contrasto del segnale video quando questo a causa delle attenuazioni
di linea perde di dinamica.
Il controllo dell’enfasi permette di migliorare la nitidezza delle immagini in bianco e nero aumentando “l’incisione”
dell’immagine.
In impianti con a colori su lunghe distanze il controllo dell’enfasi permette di rigenerare il segnale a colori che potrebbe
essersi degradato lungo la linea.
Convertitore differenziale – coassiale ed amplificatore regolabile
La modalità di collegamento è descritta in fig.3.
Il dispositivo deve essere alimentato da una sorgente esterna da 12 a 20V DC* e provvede a convertire un segnale
differenziale di un impianto video citofonico BITRON VIDEO in un segnale idoneo a pilotare un monitor TVCC oppure
attraverso la presa SCART un televisore.
I controlli di guadagno ed enfasi permettono di ottimizzare il livello del segnale video.
Convertitore coassiale differenziale con amplificazione fissa a 0 dB
La modalità di collegamento è descritta in fig.4.
Il dispositivo deve essere alimentato da una sorgente esterna da 12 a 20V DC* e provvede a convertire un segnale
standard proveniente da una telecamera TVCC in un segnale differenziale idoneo a pilotare un impianto video citofonico
BITRON VIDEO.
Collegando la sua uscita allo scambio di un relè in commutazione con i fili A e B provenienti dal gruppo video è possibile
realizzare impianti video-citofonici con telecamere aggiuntive.
I controlli di guadagno ed enfasi non sono attivi ed il guadagno è fissato a 0 dB. Il motivo di questa scelta risiede nel
fatto che normalmente tale dispositivo si installa nelle vicinanze della telecamera da convertire ed una regolazione
eccessiva del guadagno potrebbe far saturare facilmente il segnale.
NOTA
Pag. 4
Pag. 3