Installation Instructions
1.0 Introduction
Profile
1. INTRODUCTION
Please take the time to fully read this Installation manual. Failure to follow these
instructions may result in injury to you and damage to the air conditioner or your
customer’s property.
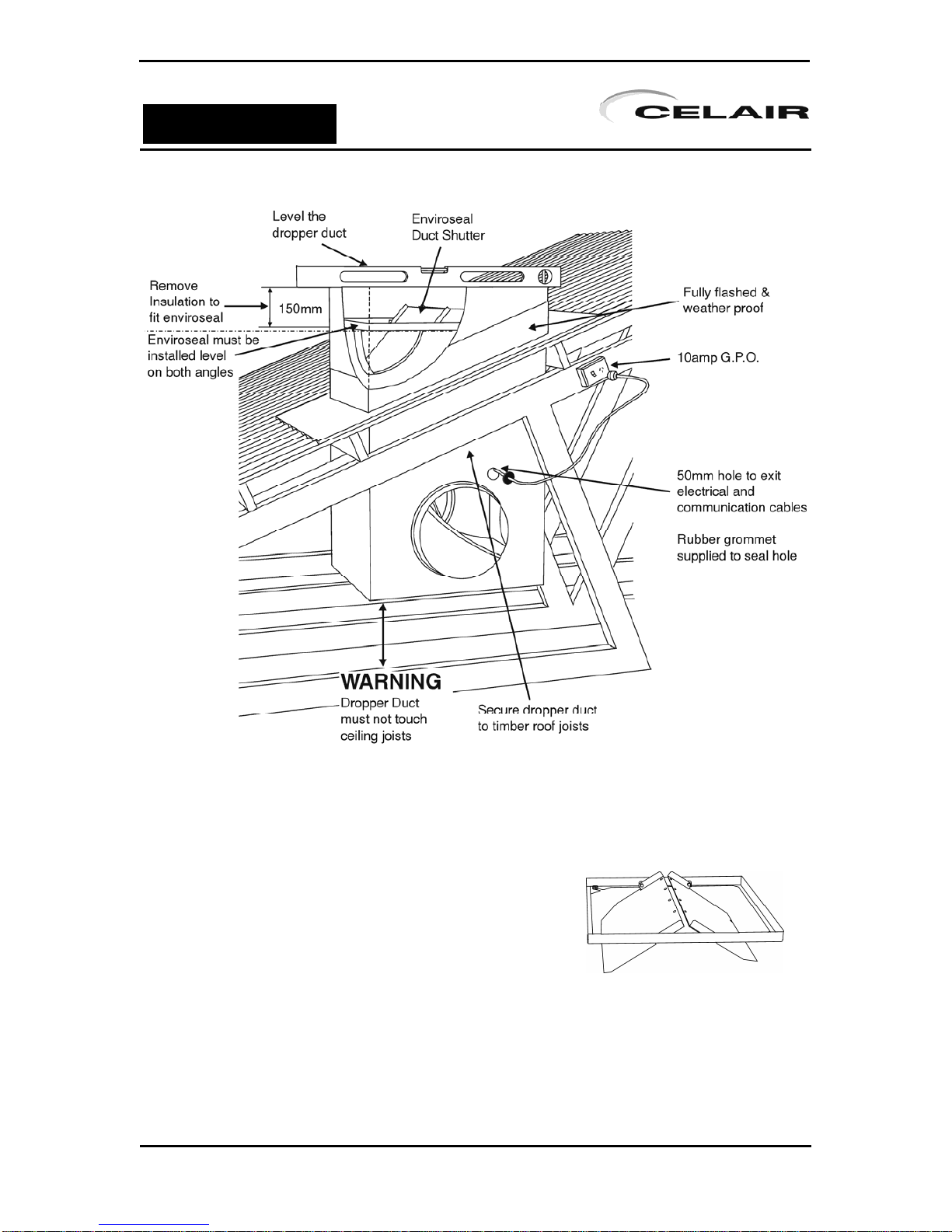
Installation of this Celair Fresh Air Conditioner must conform to local building rules and
regulations, electrical and plumbing codes, Environmental Protection Authority (EPA)
regulations, and all applicable Australian Standards.
Should you not follow these instructions the unit warranty may be void. The cost of
warranty would then be the cost of the customer or the installer / dealer.
Refer to the tick box Commissioning Checklist to ensure you have covered all points
when the installation is complete. Please complete the Commissioning Checklist tick box
in the owner’s manual, as a completed. A signed and dated checklist will be required to
verify certain warranty claims.
1.1. Important Notes
•TEXT AND ILLUSTRATION COPYRIGHT CLIMATE TECHNOLOGIES 2007
•All rights reserved. No part of this document may be reproduced or transmitted
in any form or by any means, electronic or mechanical, including photocopying,
recording or by any information storage and retrieval system, without prior
permission in writing from Climate Technologies.
•Climate Technologies is constantly researching and developing improved
product features and therefore reserves the right to change the
specifications without notice. E. & O.E.
1.2. Dealer / Installer Responsibility
1.2.1. Training
•It is the responsibility of all dealers to ensure their staff are adequately
trained to ensure the product is correctly specified.
•It is the responsibility of all dealers to ensure their installation teams / sub-
contractors are trained in the correct installation of product, duct& fittings
as well as relevant installation codes and OH&S requirements.
•Climate Technologies will provide technical assistance and training to the
dealer as required. On going technical support will only be provided to
those dealers and installers who attend regular training provided by
Climate Technologies.
1.2.2. Legal & Statutory obligations
•It is the dealer / installer responsibility to comply to all codes & standards,
statutory and legal requirements, state and council / shire by laws.
•Relevant certificates of compliance for the installation must be issued.
Service may be refused or warranty may be void if the installation is not
compliant.
Page 3