Manual Comfort Control
Notes
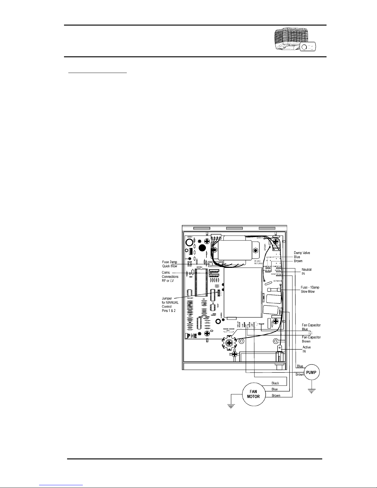
PNE2002 Series Control Page 3
INTRODUCTION ................................................................................................2
CONGRATULATIONS ON YOUR CHOICE ......................................................................... 2
DUCTED EVAPORATIVE AIR CONDITIONING ...............................................5
INTRODUCTION .......................................................................................................... 6
UNIT OPERATION ....................................................................................................... 6
Exhaust...............................................................................................................................................6
Bleed-off .............................................................................................................................................7
OPERATING THE CONTROLS .........................................................................8
CONTROL FUNCTIONS ................................................................................................ 8
Using the Fan Mode............................................................................................................................8
Using the Cool Mode ..........................................................................................................................8
Pre-Cool..............................................................................................................................................8
CONTROL INSTALLATION & SETUP ..............................................................9
INSTALLING THE CONTROL ......................................................................................... 9
Before Starting....................................................................................................................................9
Installation...........................................................................................................................................9
SETTING UP THE CONTROL ...................................................................................... 10
Setting Minimum Fan Speed.............................................................................................................10
Setting Maximum Fan Speed............................................................................................................10
Setting up the Dump Valve (Where Fitted) .......................................................................................10
PROBLEM SOLVING .................................................................................................. 11
COMMISSIONING CHECK LIST.................................................................................... 12
General .............................................................................................................................................12
Unit - Ducted Evaporative Air Conditioner ........................................................................................12
Ductwork...........................................................................................................................................13
Site....................................................................................................................................................13
Customer Hand Over........................................................................................................................13
DUCTED EVAPORATIVE AIR CONDITIONER MAINTENANCE ...................14
GENERAL ................................................................................................................ 14
FILTER PADS ........................................................................................................... 14
WATER TANK........................................................................................................... 14
WATER LEVEL / FLOAT VALVE................................................................................... 15
MOTOR AND FAN...................................................................................................... 15
ELECTRICAL............................................................................................................. 15
BLEED OFF.............................................................................................................. 15
PUMP ...................................................................................................................... 15
WATER DISTRIBUTION .............................................................................................. 15
WARRANTY.....................................................................................................16
WARRANTY STATEMENT. .......................................................................................... 16
Conditions And Exclusions ...............................................................................................................16
WARRANTY ON REPLACEMENTS PARTS. ................................................................... 17
PERIOD OF WARRANTY – YEARS .............................................................................. 17
PROOF OF PURCHASE ............................................................................................. 18
DEALER / PRODUCT INFORMATION ............................................................................ 18
SERVICE..........................................................................................................19