
APR/16/2002
6979 USA 7
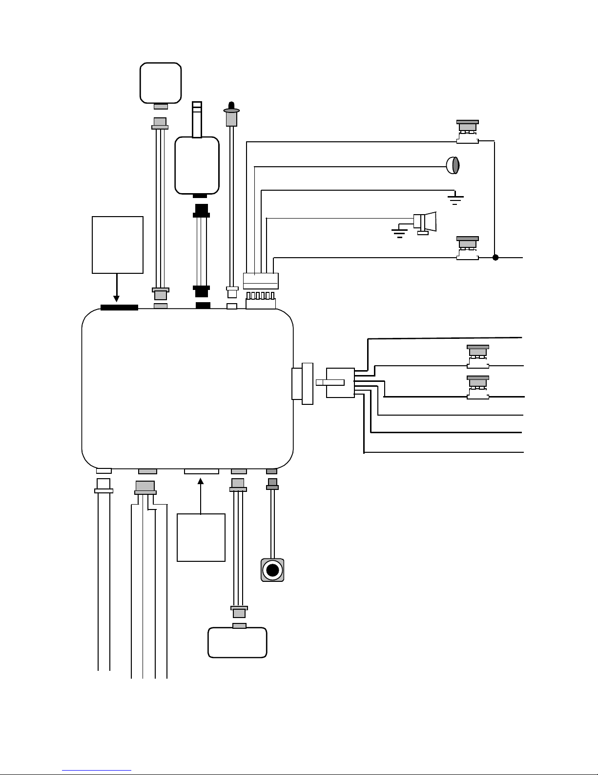
The RED/WHITE wire is the input to the flashing parking light relay. The connection of the RED/WHITE
wire will determine the output polarity of the flashing parking light relay.
If the vehicle you are working on has +12volt switched parking lights, you don’t need connect this wire.
This wire already connected to +12volt.
If the vehicle’s parking lights are ground switched, cut the RED/WHITE wire, connect the RED/WHITE
wire to chassis ground.
H2/2. WHITE WIRE -- PARKING LIGHT RELAY OUTPUT (+12 V 10A OUTPUT) --
Connect the WHITE wire to the parking light wire coming from the headlight switch. Do not connect the
WHITE wire to the dashboard lighting dimmer switch. (Damage to the dimmer will result). The limitation of
the WHITE wire is 10 AMP max. Do not exceed this limit or damage to the alarm and parking relay will
result.
H2/3. BLACK WIRE -- SYSTEM GROUND –
This is main ground connection of the alarm module. Make this connection to a solid section of the vehicle
frame. Do not connect this wire to any existing ground wires supplied by the factory wire loom, make the
connection to the vehicle's frame directly.
H2/4. BROWN WIRE -- SIREN DRIVE OUTPUT – (See Feature II - 3 Programming)
This is the positive (+) output connection for the siren. Current capacity is 2 amps. Make connection to
the (+) red wire from the siren. Make the (-) black wire coming from the siren to a good chassis ground.
H2/5. RED WIRE -- SYSTEM POWER (+12V CONSTANT) --
The RED wire supplies power to the system. Connect this wire to a constant +12 volt source.
H3. 2 PIN WHITE CONNECTOR FOR THE LED STATUS INDICATOR:
The led indicator status should be mounted in a highly visible area such as top of the dashboard, on top of
the shifter console or on dashboard face. Leave at least 6mm space behind the mounting location for LED
housing. Once a suitable location is chosen, drill a 6mm hole. Run the LED wires through the hole then
press the 2 pin LED housing into the place. Route the LED wires to the control module.
H4. BLACK 3-PIN CONNECTOR. – TWO-WAY TRANSCEIVER/ANTENNA MODULE
The Two-way transceiver/antenna mounts on the windshield (Inside). We suggest you mount it on the
lower left or upper left-hand side of windshield.
Warning! Do not mount in such a manner that it obstructs the driver’s view.
- The Two-way transceiver/antenna whip must be vertical.
- Remove the protective tape backing.
- Carefully align the two-way transceiver/antenna and apply to windshield.
- Route the black connector wire behind the trim and connect to the two-way transceiver/antenna.
- Connect the other end to the control module.
- Special considerations must be made for windshield glass as some newer vehicles utilize a metallic
shielded window glass that will inhibit or restrict RF reception. In these vehicle, route the two way
transceiver/antenna module away from metallic shielded window glass as far as possible.
H5. 3-PIN BROWN CONNECTOR FOR OPTIONAL PAGING (KNOCK) SENSOR
The optional Paging (Knock) Sensor can be add on.
1. Detach the protecting paper from the double-sided adhesive tape and attach one side of the
double-sided adhesive tape to the bottom part of the Paging (Knock) Sensor.
2. After cleansing the area around left bottom part of the front window so that it stays attached firmly, the
Paging Sensor should be attached on the front window so that the side on which a sticker with a printed
words “Tap Here Paging Driver” is attached face outward.
3. Hide the wire by carefully pushing it inside the space of the front window’s mold trim.
4. Adjust the sensitivity of the Paging Sensor, If you turn the tuning screw at the center of the Paging
Sensor clockwise, the sensitivity goes sharp and if turned counter-clockwise, the sensitivity goes dull.
H6: 8 PIN MINI BLACK CONNECTOR :
H6/1. WHITE/BLACK WIRE – NEGATIVE SAFETY SHUT DOWN INPUT --
The WHITE/BLACKE wire provides an instant shutdown for the remote start, whenever it is grounded.
Connect the wire to the hood pin switch previously installed. This wire must be routed though a grommet
in the firewall and connected to the hood pin switch. If the pin switch is to be used with an alarm system,
connect this wire with diode.
Important! This connection is a safety wire and must be connected as shown and tested as specifiled.
Failure to do so may result in personal injury or property damage. See detail of wiring in the following
diagram. This wire may also be used if the vehicle brake light circuit switches ground to the brake lights.