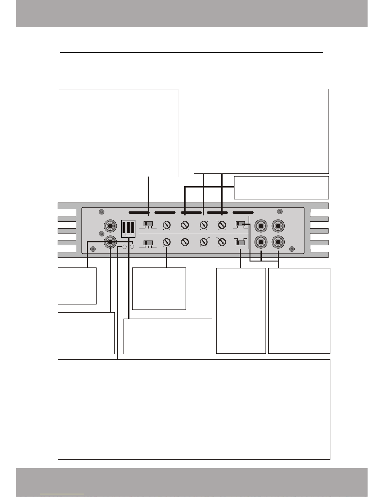
4-Kanal Verstärker - Funktionen & Bedienelemente
GTR440.4 – GTR640.4
CH3
LINE INPUT
OUTPUT
L
R
LINE
BASS REMOTE CH1
CH4 CH2
PROTECT PWR
BPF
4V 30Hz 150Hz
0dB 12dB
BASS BOOST
0.2V 1.2kHz
10Hz
HIGH PASSLOW PASS
LEVEL INPUT
BPF
4V 30Hz 150Hz
0dB 12dB
0.2V 1.2kHz
10Hz
4CH 2CH
INPUT MODE
OFF ON
TWIN SUB
BASS BOOST HIGH PASSLOW PASS
LEVEL INPUT
CH3 / CH4
CH1 / CH2
X- OVER
LP/BP HP FULL
X- OVER
LP/BP HP FULL
7
BASS BOOST - Regler CH1/2 und CH3/4
Bassanhebung - stufenlos von
0dB bis +12dB bei 45 Hz regelbar.
HIGH-/LOWPASS - Regler CH1/2 oder CH3/4
HIGH PASS (Hochpass) - regelt die Begrenzung des
Frequenzgangs der Lautsprecher nach unten ab. Die Trenn-
frequenz ist stufenlos von 10Hz bis 1200Hz (1.2kHz) regelbar.
Ist der X-OVER -Schalter auf LP/BP eingestellt, ist der
BANDPASS-Modus aktiv und mit dem Regler HIGH PASS
ist die Subsonic-Frequenz (untere Begrenzung des
Frequenzgangs) einstellbar.
LOW PASS (Tiefpass) - regelt die Begrenzung des Frequenz-
gangs der Lautsprecher nach oben ab. Die Trennfrequenz ist
stufenlos von 30Hz bis 150Hz regelbar.
X-OVER - Schalter CH1/2 oder CH3/4
Selektiert die gewünschte Betriebsart des Kanalpaars:
Position HP
Hochpass – Der Frequenzgang wird nach unten
begrenzt, einstellbar über den HIGH PASS-Regler.
Position FULL
Vollbereich – der gesamte Frequenzbereich ist aktiv.
Position LP/BP
Tiefpass - Der Frequenzgang wird nach oben begrenzt,
einstellbar über den LOW PASS-Regler.
LINE INPUT - Cinchein-
gänge CH1/2 und CH3/4
Zur Ansteuerung mittels
Cinchkabel mit dem
Autoradio verbinden.
INPUT MODE - Schalter
Falls nur CH1/2 am LINE
INPUT belegt wird, den
Schalter INPUT MODE auf
2CH stellen. Bei Belegung
aller 4 Anschlüsse den
Schalter auf 4CH stellen.
PROTECT - LED
Leuchtet diese LED rot, kann dieses folgende Gründe haben:
a) Überhitzung
b) Kurzschluss an den Lautsprechern
c) Überlastung (z.B. zu niedrige Impedanz, Strommangel)
d) Verstärker ist defekt
Die elektronischen Schutzschaltungen schützen bei einer Fehlfunktion der Lautsprecher und des Verstärker. Bei Anzeige einer
Störung (z.B. durch Überhitzung) kann der Verstärker nach entsprechender Abkühlung durch einmaliges Aus- und Einschalten
wieder in Betrieb genommen werden. Falls die rote LED nicht erlischt, prüfen Sie bitte sorgfältig alle Anschlüsse, insbesondere
die der Lautsprecher. Möglicherweise liegt ein Kurzschluss vor. Wenn sich der Verstärker nicht wieder in Betrieb nehmen
lässt, prüfen Sie, ob der Verstärker sich ohne angeschlossene Lautsprecher- und Cinchkabel einschalten lässt. Falls die rote
LED dann immer noch nicht erlischt, liegt ein Gerätedefekt vor. Leuchtet die LED nachdem Sie die Lautsprecher- und
Cinchkabel vom Verstärker entfernt haben grün, prüfen Sie nochmals die Lautsprecher und Anschlüsse auf Defekte. Beachten
Sie dazu auch Seite 11 FEHLERBEHBUNG.
LEVEL INPUT - Regler
CH1/2 und CH3/4
Regelt die Eingangs-
empfindlichkeit der
Kanäle zwischen
4 Volt und 0.2 Volt
POWER - LED
Leuchtet diese
LED grün, ist
der Verstärker
betriebsbereit.
BASS REMOTE - Anschluss
Anschluss für die beiliegende Kabelfern-
bedienung BASS REMOTE, mit der der
Basspegel zum Beispiel vom Fahrersitz
aus geregelt werden kann.
LINE OUTPUT -
Cinchausgänge
Vollbereichs-Cinch-
ausgänge für die
Ansteuerung weiterer
Verstärker.
TWIN SUB -
Schalter CH1/2
Wenn dieser auf ON
steht werden für
Kanal 1/2 die selben
Parameter der Regler
HIGH PASS, LOW
PASS und BASS
BOOST wie an Kanal
3/4 übernommen.
Bitte nur für den
Betrieb mit 2 Sub-
woofern benutzen.