improved. Check the label on the unit and
DO NOT REMOVE THIS LABEL /
NE PAS ENLEVER CETTE
ÉTIQUETTE
Serial No./ No de serie
918-418d
Made in Canada / Fabrique au Canada
Duplicate S/N
CONTACT YOUR LOCAL BUILDING OR FIRE OFFICIAL ABOUT RESTRICTIONS AND
INSTALLATION INSPECTION IN YOUR AREA.
CONTACTEZ VOTRE BUREAU DE CONSTRUCTION OU D’INCENDIE AU SUJET DES
RESTRICTIONS ET DE L’INSPECTION D’INSTALLATION DANS VOTRE QUARTIER.
Listed Room Heater, Pelletized Fuel Type
Also Suitable for Mobile Home Installation Pursuant to (UM) 84-HUD
Manufactured by/Manufacturé par: FPI Fireplace Products International Ltd., Delta, BC, Canada
Install and use only in accordance with
manufacturer's installation instructions and
your local building codes.
Model :GF75-1
Tested to :ASTM E1509, ULC C1482,
ULC S627
Type of Fuel : Corn or Pelletized Wood or
Agricultural BioEnergy refer to
Manual.
Electrical Rating : 120V, 4 Amps, 60 Hz
Input Rating : 8,500 to 34,000
BTU TYPICAL
NOTE: Replace glass only with 5mm ceramic.
Components required for residential and mobile home
installation: Listed Pellet Vent.
Risk of electrical shock. Disconnect power
before servicing unit. Do not route power cord beneath
heater.
DANGER:
“PRÉVENTION DES FEUX DE MAISON”
Installez et utilisez seulement en accord avec
les instructions d’installation du manufacturier
et des codes locaux.
Modèle : GF75-1
Testé à : ASTM E1509, ULC C1482,
ULC S627
Type de Gaz : Granules de Bois et Mais
Évaluation Électrique : 120V, 4 Amps, 60 Hz
Évaluation Énergetique: 8,500 à 34,000
BTU Typique
NOTE:
DANGER:
Remplacez la vitre avec de la céramique de
5mm seulement.
Produits exigés pour l’installation dans la maison
résidentielle et mobile: Ventilation pour granules de
bois cataloguée.
Il y a risque de choc électrique. Débranchez
avant d’essayer de faire le service sur cet appareil. Ne
pas faire passer la corde électrique en dessous de la
fournaise.
Pieces Catalogue; Type - Poele a Granule
Peut Etre Utilisee Pour l’Installation Dans la Maison Mobile Sous (UM) 84-HUD
“PREVENT HOUSE FIRES”
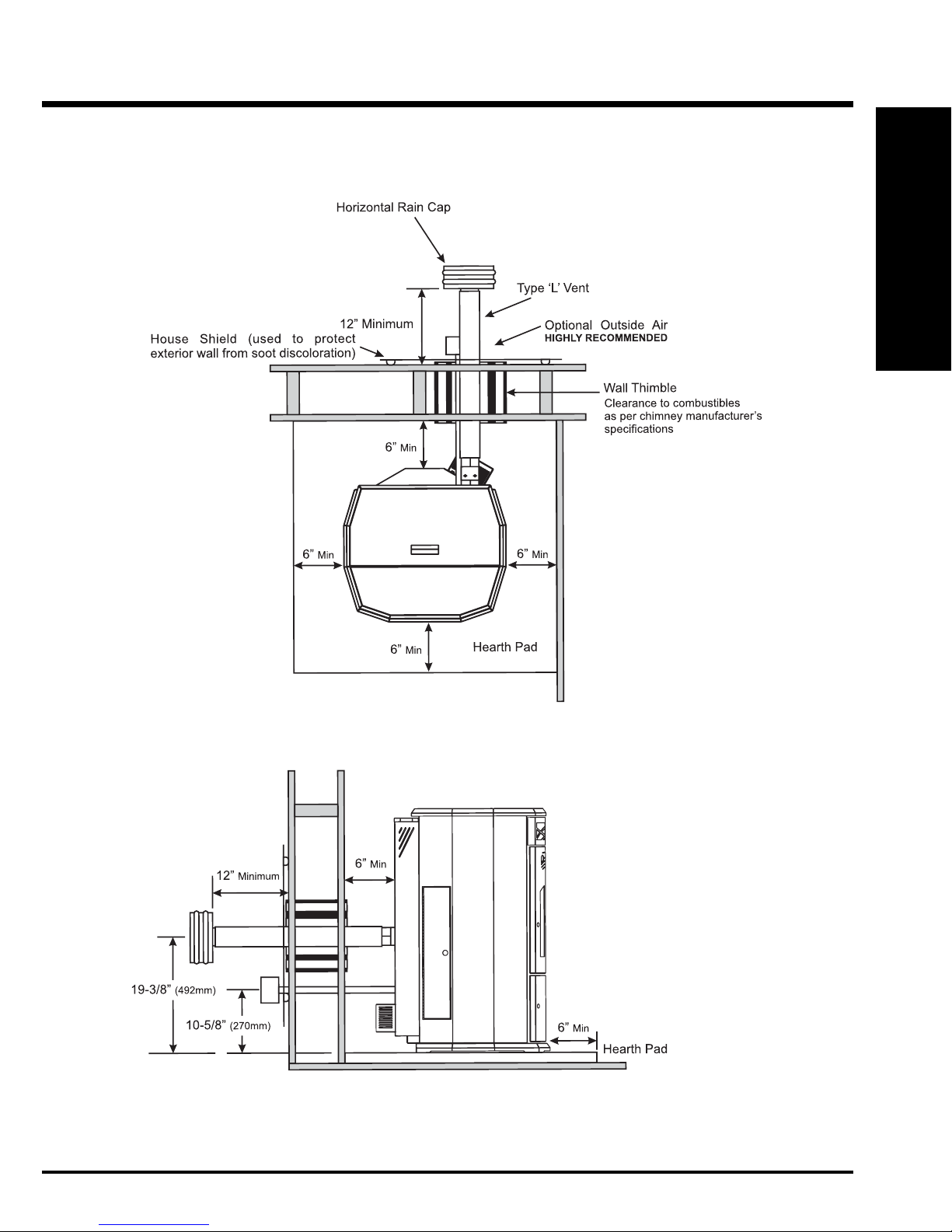
NOTE: REGARDLESS OF THE STOVE CLEARANCE, VENT PIPE MUST ALWAYS
HAVE A 3” CLEARANCE.
CHIMNEY AND CONNECTOR:3” LISTED PELLET VENT ONLY.
FLOOR PROTECTOR MUST BE 3/8” MINIMUM THICKNESS NON-COMBUSTIBLE
MATERIAL OR EQUIVALENT, EXTENDING BENEATH HEATER AND TO THE
FRONT/SIDES/REAR AS INDICATED.
**SIDE WALL TO UNIT : 6 in. / 152 mm
MAX. ALCOVE DEPTH : 30 in. / 762 mm
BACK WALL TO UNIT : 6 in. / 152 mm
CORNER TO UNIT : 8 1/2 in. / 216 mm
**Unit to sidewall requires 8” clearance for access to controls.
NOTE: PEUT IMPORTE L’ESPACE LIBRE DU POÊLE, LE TUYAU DE VENTILATION
DOIT TOUJOURS AVOIR 3” D’ESPACE LIBRE
CHEMINÉE ET CONNECCTEUR : VENTILATION DE GRANULE DE BOIS CATALOGUÉ
DE 3” SEULMENT.
LE PROTECTEUR DE PLANCHER DOIT ÊTRE DE3/8” D’ÉPAISSEUR MINIMUM DE
MATÉRIEL NON-COMBUSTIBLE OU L’ÉQUILVALENT , S’ÉTENDANT EN DESSOUS DE
LA FOURNAISE ET AU DEVANT/CÔTÉS/ARRIÈRE COMME INDIQUÉ.
**MUR DU CÔTÉ À L’APPAREIL : 6 pouces / 152 mm
MUR ARRIERE À L’APPAREIL : 6 pouces / 152 mm
PROFONDEUR MAXIMUM DE L’ALCOVE : 30 pouces / 762 mm
COIN À L’APPAREIL : 8 1/2 pouces / 216 mm
**De l’appareil au mur exige 8” d’espace libre d’accès aux contrôles.
U.S. ENVIRONMENTAL PROTECTION AGENCY
Certified to comply with July 1990 particulate emission standards.
Distributed by: FPI Fireplace Products International Ltd., Delta, BC, Canada
DATE OF MANUFACTURE / DATE DU MANUFACTURIER
2006
2007 2008 JAN FEB MAR APR MAY JUN JUL AUG SEP OCT NOV DEC
AGENCE DE PROTECTION ENVIRONNEMENTALE DES ETATS-UNIS
Certifie d’etre conforme avec les standards d’emission de Juillet 1990
HOT WHILE IN OPERATION. DO
NOT TOUCH. CONTACT MAY
CAUSE SKIN BURNS. KEEP CHILDREN, CLOTHING AND
FURNITURE AWAY. SEE NAMEPLATE AND
INSTRUCTIONS. DO NOT OVERFIRE. IF HEATER OF
CHIMNEY CONNECTOR GLOWS, YOU ARE OVERFIRING.
INSPECT AND CLEAN CHIMNEY AND CONNECTOR
FREQUENTLY. UNDER CERTAIN CONDITIONS OF USE, FLYASH BUILDUP
MAY OCCUR RAPIDLY. MOVING PARTS MAY CAUSE INJURY.
WARNING:
RISK OF SMOKEAND FLAME SPILLAGE. KEEP VIEWING
ANDASH REMOVALDOORS TIGHTLY CLOSED DURING OPERATION.
CAUTION:
CAUTION:
OPERATE THIS UNIT ONLY WITH THE FUEL HOPPER
LID CLOSED. FAILURE TO DO SO MAY RESULT IN EMISSIONS OF
PRODUCTS OF COMBUSTION FROM THE HOPPER UNDER CERTAIN
CONDITIONS. MAINTAIN HOPPER SEAL IN GOOD CONDITION. DO NOT
OVERFILLTHE HOPPER.
CHAUD LORSQU’EN OPÉRATION. NE TOUCHEZ PAS.
TOUT CONTACT PEUT CAUSER DES BRÛLURES ÀLA
PEAU. GARDEZ LES ENFANTS, LES VÊTEMENTS, LES MEUBLES À UNE
DISTANCE CONSIDÊRABLE. LISEZ L’ÉTIQUETTE ET LES
INSTRUCTIONS. NE PAS SURCHAUFFEZ. SI LA FOURNAISE OU LE
TUYAU DE CHEMINÉE ROUGISSENT, C’EST QUE VOUS SURCHAUFFEZ.
INSPECTEZ ET NETTOYEZ LA CHEMINÉE ET LE TUYAU FRÉQUEMMENT.
SOUS CERTAINES CONDITIONS D’USAGE, LE RÉSIDU DE CENDRE
PEUT SE FAIRE RAPIDEMENT. TOUTE PIECE MOBILE PEUVENT CAUSER
DES BLESSURES.
ATTENTION:
IL Y A RISQUE DE FUMÉE ET DE FLAMME.
GARDEZ LA PORTE DE VUE ET CELLE DES CENDRES FERMÉES
HERMÉTIQUEMENT DURANT L’OPERATION.
AVIS:
OPÉREZ CETAPPAREILAVEC LE COUVERCLE DE LA TRÉMIE
FERMÉ. SINON IL PEUT EN RÉSULTER DES ÉMISSIONS DES PRODUITS
DE COMBUSTION DE LA TRÉMIE SOUS CERTAINES CONDITIONS.
MAINTENEZ LE COUVERCLE DE LA TRÉMIE EN BONNE CONDITION. NE
REMPLISSEZ PAS LA TRÉMIE TROP PLEINE.
CAUTION: Special methods are required when
passing chimney through a wall or ceiling.
Follow the pipe manufacturer's instructions and
local building codes for the clearance to
combustibles required for the installation of the
vent pipe being used. Do not pass chimney
connector through a combustible surface. Do
not connect this unit to a chimney flue serving
another appliance.
WARNING: (MOBILE HOME) An outside air
inlet must be provided for combustion and be
unrestricted while unit is in use.
NOTE: Outside air is required.
AVIS:Des méthodes spéciales sont exigées
lorsqu’une cheminée passe à travers un mur ou
un plafond. Suivez les instructions du
manufacturier du tuyau et les codes locaux de
construction pour l’espace libre des
combustibles exigé pour l’installation du tuyau
connecteur de cheminée à travers une surface
combustible. Ne connectez pas cet appareil à
un tuyau de cheminee servant un autre
appareil.
ATTENTION: (MAISON MOBILE) Un tuyau
extérieur d’air doit être fourni pour la
combustion et doit être sans restriction lorsque
l’appareil est en usage.
NOTE: A besoin d’air de l’extérieur
286
286
Report No./Rapport Nu.: 120-S-01-2
STOVE STOVE
STOVE
BACKWALL
SEE
NOTE
SIDEWALL
3” 6”
8”** **6”
30”
MAX.
SEE
NOTE
8½”
3”
SIDEWALL
ADJACENT WALL
FLOOR PROTECTOR
FRONT
6”
6”
6”
6”
AVIS: