
1-800-345-8207
Sect on 6 - P p ng
6.1 Piping Instructions
- Compressed air contains liquid water and is saturated with water vapor, which can
freeze when surrounding temperatures are lower than 32oF (0oC). Component
selection to minimize the effects of water vapor must be considered.
WARNING
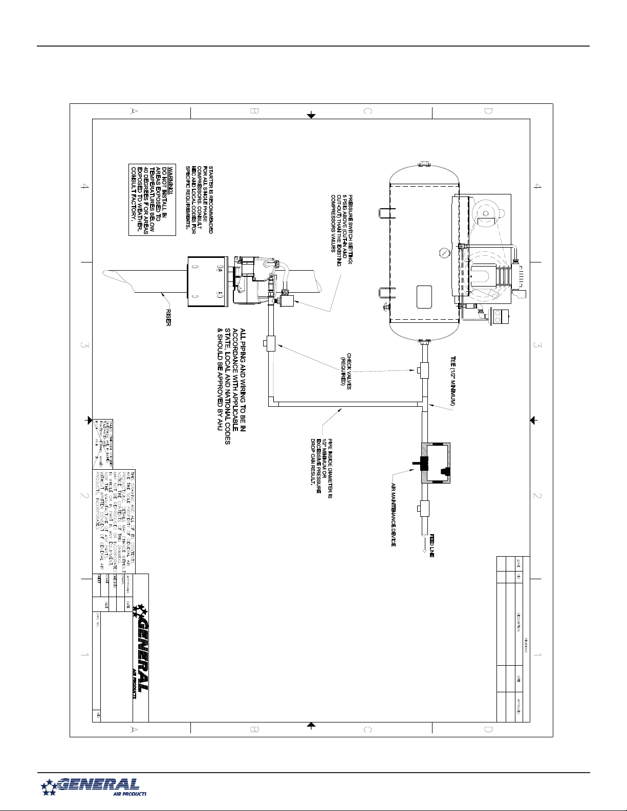
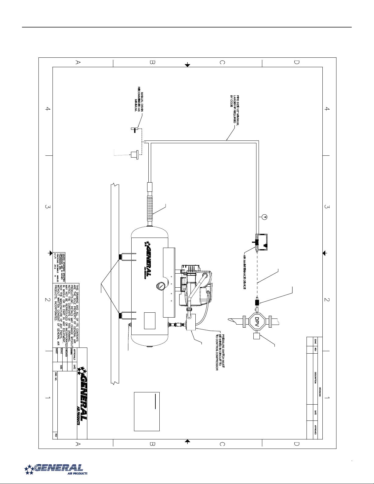
Piping between the compressor, accessory items and the sprinkler system must be at least ½" internal diameter to
minimize pressure drop from the compressor to system. Larger pipe size may be required by code and may be
substituted with no adverse effects.
- Smaller line size must not be used and will restrict the compressor flow, lowering
capacity and causing the compressor/motor to work harder, which shortens
compressor/motor life. All piping connected to the compressor must be fully supported
and not transfer any loads to the compressor.
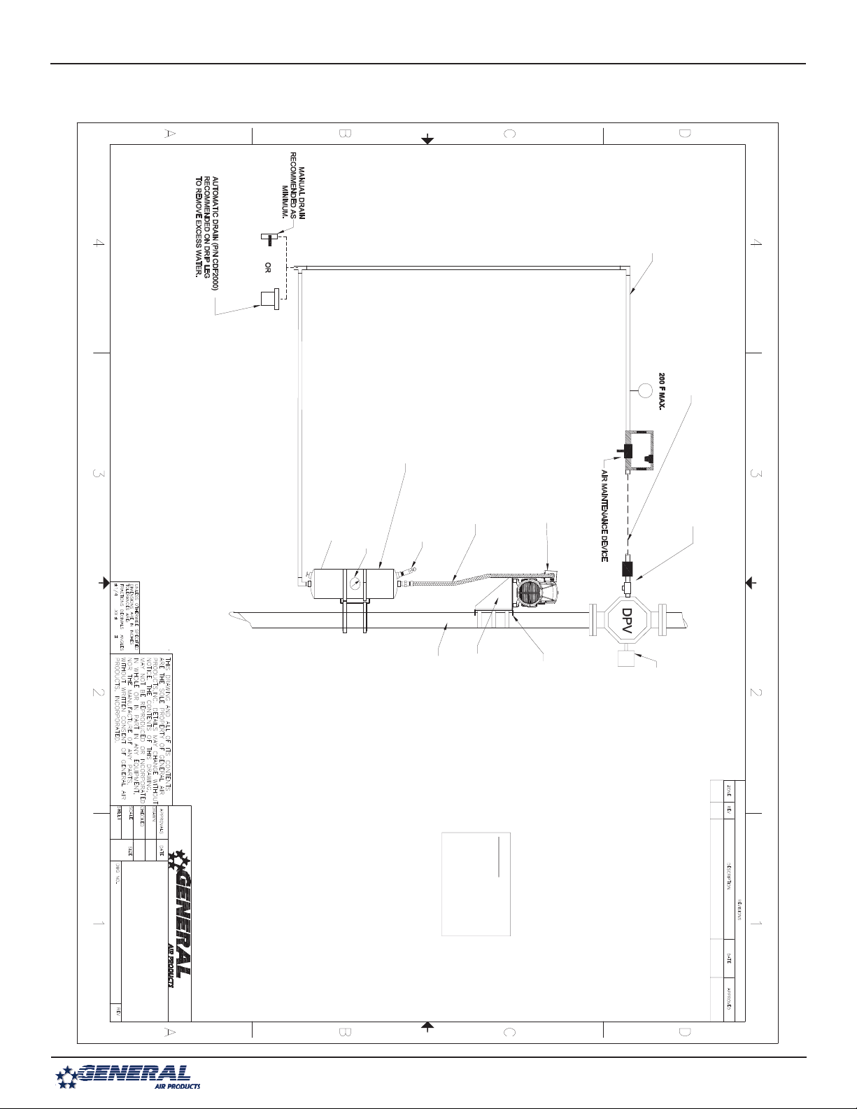
If an AMD-1 is used, allow sufficient distance between the compressor and AMD-1 to ensure that the maximum
temperature at the AMD-1 is 200oF or less.
- When an AMD is used with riser mounted units, a riser mounted tank kit (p/n OLR-TK)
is recommended to prevent short cycling the compressor.
All oil-less compressors include a relief valve. For riser mounted models, the relief valve is installed on the compressor.
For tank mounted models, an ASME Code relief valve is mounted on the compressor tank. This valve will open at a
preset value above the pressure switch setting to prevent excess tank pressure in the event of switch failure.
- Do not attempt to change the safety relief valve setting.
A manual drain is provided on the bottom of each tank mounted compressor. Moisture accumulated in the tank, must be
drained weekly. An automatic drain, P/N DVA-2T, is recommended in areas of high humidity.
The compressor outlet piping should contain an accessible drain. As a minimum a manual drain may be used, but an
automatic drain is recommended to remove excess water.
- Accumulation of condensed water in the system can cause corrosion of components
and reduction of system capacity.
- Warranty is void if a separate check valve is not installed to prevent water backflow to
compressor.
WARNING
NOTICE
NOTICE
NOTICE
NOTICE
Sect on 5 - Lubr cat on
This compressor is designed for non-lubricated service. Bearings are permanently
lubricated. Do not lubricate any part of the compressor or motor.
NOTICE