
4
responsibility for equipment installed in violation of any code
or regulation. The mechanical installation of the packaged
roof top units consists of making final connections between
the unit and building services; supply and return duct con-
nections; and drain connections (if required). The internal
systemsof theunitare completelyfactory-installedand tested
prior to shipment.
Units are generally installed on a steel roof mounting curb
assembly which has been shipped to the job site for installa-
tion on the roof structure prior to the arrival of the unit. The
model number shown on the unit’s identification plate identi-
fies the various components of the unit such as refrigeration
tonnage, heating input and voltage.
Carefully inspect the unit for damage including damage to
the cabinetry. Any bolts or screws which may have loosened
in transit must be re-tightened. In the event of damage, the
receiver should:
1. Make notation on delivery receipt of any visible
damage to shipment or container.
2. Notify carrier promptly and request an inspection.
3. In case of concealed damage, carrier should be
notified as soon as possible-preferably within 5 days.
4. File theclaimwiththefollowingsupportingdocuments:
a. Original Bill of Lading, certified copy, or indemnity
bond.
b. Original paid freight bill or indemnity in lieu thereof.
c. Original invoice or certified copy thereof, showing
trade and other discounts or reductions.
d. Copy of the inspection report issued by carrier
representative at the time damage is reported to the
carrier. The carrier is responsible for making prompt
inspection of damage and for a thorough
investigation of each claim. The distributor or
manufacturer will not accept claims from dealers for
transportation damage.
NOTE: When inspecting the unit for transportation damage,
remove all packaging materials. Recycle or dispose of the
packaging material according to local codes.
PRE-INSTALLATION CHECKS
Carefully read all instructions for the installation prior to in-
stalling unit. Ensure each step or procedure is understood
and any special considerations are taken into account be-
fore starting installation. Assemble all tools, hardware and
suppliesneeded tocomplete theinstallation.Some itemsmay
need to be purchased locally.
UNIT LOCATION
WARNING
TO PREVENT POSSIBLE EQUIPMENT DAMAGE, PROPERTY DAMAGE, PERSONAL
INJURY OR DEATH, THE FOLLOWING BULLET POINTS MUST BE OBSERVED
WHEN INSTALLING THE UNIT.
IMPORTANT NOTE: Remove wood shipping rails prior to
installation of the unit.
ALL INSTALLATIONS:
NOTE: Appliance is shipped from factory for vertical duct
application.
Proper installation of the unit ensures trouble-free operation.
Improper installation can result in problems ranging from
noisy operation to property or equipment damages, danger-
ous conditions that could result in injury or personal property
damage and that are not covered by the warranty. Give this
bookletto theuser andexplainit’sprovisions.Theuser should
retain these instructions for future reference.
•For proper flame pattern within the heat exchanger
and proper condensate drainage, the unit must be
mounted level.
•The flue outlet must be at least 12 inches from any
opening through which flue gases could enter a
building, and at least three feet above any forced air
inlet located within ten feet. The economizer/manual
fresh air intake/motorized fresh air intake and
combustion air inlet mounted on the unit are not
affected by this restriction.
•To avoid possible corrosion of the heat exchanger,
do not locate the unit in an area where the outdoor air
(i.e. combustion air for the unit) will be frequently
contaminated by compounds containing chlorine or
fluorine.Commonsourcesofsuch compoundsinclude
swimmingpool chemicalsandchlorinebleaches,paint
stripper, adhesives, paints,varnishes, sealers, waxes
(which are not yet dried) and solvents used during
constructionand remodeling.Variouscommercialand
industrial processes may also be sources of chlorine/
fluorine compounds.
•To avoid possible illness or death of the building
occupants, do NOT locate outside air intake device
(economizer, manual fresh airintake,motorized fresh
air intake) too close to an exhaust outlet, gas vent
termination, or plumbing vent outlet. For specific
distances required, consult local codes.
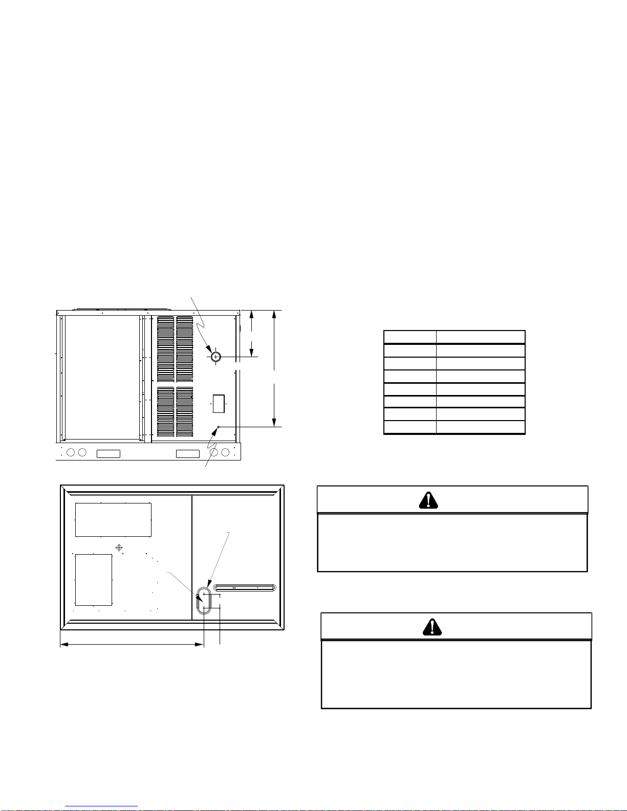
•Allow minimum clearances from the enclosure for fire
protection,proper operation, and serviceaccess(see
unit clearances). These clearances must be
permanently maintained.
•The combustion air inlet and flue outlet on the unit
must never be obstructed. If used, do not allow the
economizer/manualfresh airdamper/motorized fresh
air damper to become blocked by snow or debris. In
some climates or locations, it may be necessary to
elevate the unit to avoid these problems.
•Whenthe unitisheating, thetemperature of thereturn
air entering the unit must be between 50° F and 100°
F.
GROUND LEVEL INSTALLATIONS ONLY:
•When the unit is installed on the ground adjacent to
the building, a level concrete (or equal) base is
recommended. Prepare a base that is 3” larger than
the package unit footprint and a minimum of 3” thick.