1. Safe Installation Requirements
Installation or repairs made by unqualified persons can
result in hazards to you and others. Installation MUST
conform with local codes or, in the absence of local
codes, with codes of all governmental authorities
havingjurisdiction.
The information contained in this manual is intended
for use by a qualified service technician who is
experienced in such work, who is familiar with all
precautions and safety procedures required in such
work and is equipped with the proper tools and test
instruments.
Failure to carefully read and follow all instructions in
this manual can result in furnace malfunction, death,
personal injury and/or property damage.
NOTE: This furnace is design certified by the Canadian Stan-
dards Association (CSA) for installation in the United States and
Canada. Refer to the appropriate codes, along with Figure 1 or
Figure 2 and this manual, for proper installation.
• Use only the Type of gas approved for this furnace (see
Rating Plate on unit). Overfiring will result in failure of
heat exchanger and cause dangerous operation. (Fur-
naces can be converted to L.E gas with approved kit.)
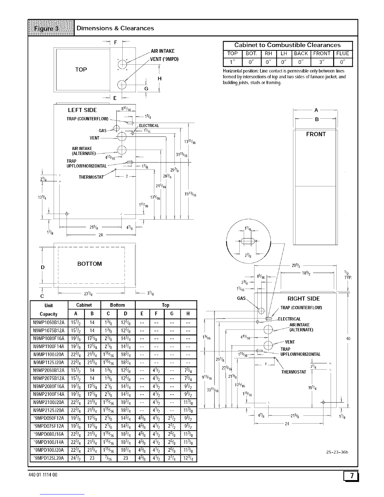
• Install this furnace only in a location and position as speci-
fied in "lnstallation"pg 5 of these instructions.
• Provide adequate combustion and ventilation air to the
furnace as specified in "Combustion and Ventilation Air"
on pg 8 of these instructions.
• Combustion products must be discharged outdoors. Con-
nect this furnace to an approved vent system only, as spe-
cified in "Combustion and Ventilation Air"on pg 8 of these
instructions.
• Never test for gas leaks with an open flame. Use a com-
mercially available soap solution made specifically for the
detection of leaks to check all connections, as specified in
"Gas Supply and Piping"on pg 32 of these instructions.
• Always install furnace to operate within the furnace's in-
tended temperature-rise range with a duct system which
has an external static pressure within the allowable rat-
ings, as specified in "Technical Support Specifications"
pgs 49 - 51 of these instructions.
• When a furnace is installed so that supply ducts carry air
circulated by the furnace to areas outside the space con-
taining the furnace, the return air shall also be handled by
duct(s) sealed to the furnace casing and terminating out-
side the space containing the furnace.
• A gas-fired furnace for installation in a residential garage
must be installed as specified in "Installation Require-
ments"pg 7 of these instructions.
• This furnace is not to be used for temporary heating of
buildings or structures under construction.
• This furnace is NOT approved for installation in mo-
bile homes, trailers or recreation vehicles.
• Seal around supply and return air ducts.
• Install correct filter type and size.
• Unit MUST be installed so electrical components are pro-
tected from direct contact with water.
NOTE: It is the personal responsibility and obligation of the end
user to contact a qualifted installer to ensure that the installation is
adequate and conforms to governing codes and ordinances.
Safety Rules
Your unit is built to provide many years of safe and dependable
service provided it is properly installed and maintained. However,
abuse and/or improper use can shorten the life of the unit and
create hazards for you, the owner.
A. The U.S. Consumer Product Safety Commission recom-
mends that users of gas-burning appliances install carbon
monoxide detectors. There can be various sources of car-
bon monoxide in a building or dwelling. The sources could
be gas-fired clothes dryers, gas cooking stoves, water
heaters, furnaces, gas-fired fireplaces, wood fireplaces,
and several other items. Carbon monoxide can cause seri-
ous bodily injury and/or death. Therefore, to help alert
people of potentially dangerous carbon monoxide levels,
you should have carbon monoxide detectors listed by a na-
tionally recognized agency (e.g. Underwriters Laborato-
ries or CSA International) installed and maintained in the
building or dwelling (see Note below).
Carbon monoxide or "CO" is a colorless and odorless gas
produced when fuel is not burned completely or when the
flame does not receive sufficient oxygen.
B. There can be numerous sources of fire or smoke in a build-
ing or dwelling. Fire or smoke can cause serious bodily inju-
ry, death, and/or property damage. Therefore, in order to
alert people of potentially dangerous fire or smoke, you
should have fire and smoke detectors listed by Underwrit-
ers Laboratories installed and maintained in the building or
dwelling (see Note below).
Note: The manufacturer of your furnace does not test any de-
tectors and makes no representations regarding any brand
or type of detector.
C. To ensure safe and efficient operation of your unit, you
should do the the following:
1. Thoroughly read this manual and labels on the unit.
This will help you understand how your unit operates and
the hazards involved with gas and electricity.
2. Do not use this unit if any part has been under water.
Immediately call a qualified service technician to inspect
the unit and to replace any part of the control system and
any gas control which has been under water.
3. Never obstruct the vent grilles, or any ducts that pro-
vide air to the unit. Air must be provided for proper com-
bustion and ventilation of flue gases.
Frozen Water Pipe Hazard
FROZEN AND BURST WATER PIPE HAZARD
Furnace may shut down. Do not leave your home
unattended for long periods during freezing weather
without turning off water supply and draining water
pipes or otherwise protecting against the risk of frozen
pipes.
Failure to do so may result in burst water pipes, serious
property damage and/or personal injury.
Your furnace is designed solely to provide a safe and comfortable
living environment. The furnace is NOT designed to ensure that
water pipes will not freeze. It is equipped with several safety de-
vices that are designed to turn the furnace off and prevent it from
restarting in the event of various potentially unsafe conditions.
E_ 44001 111400