
3inniton.es
Sácale todo el partido a tu campana Inniton Español
Consejos de cómo sacar el máximo rendimiento a tu nueva campana
El funcionamiento de una campana extractora Inniton es muy sencillo gracias a la tecnología que
hemos creado para facilitarte el día a día. Sigue estos simples consejos y disfruta de una cocina sin
malos humos.
Enciéndela unos minutos antes de empezar a cocinar, un pequeño gesto que favorece que el
ambiente esté limpio de impurezas. No la apagues justo después de cocinar, déjala funcionando unos
minuto más hasta que complete su función de depurar los vapores de cocción.
Protege la supercie de acero inoxidable de forma sencilla
Para conservar el aspecto original de tu nueva campana de cocina Inniton de acero inoxidable es
aconsejable tratarla con un paño limpio impregnado con algún producto especíco que evite huellas y
marcas. Hay aceites para bebés y productos profesionales que tratan el acero inoxidable evitando que
se adhiera polvo, pelusas y suciedad en general.
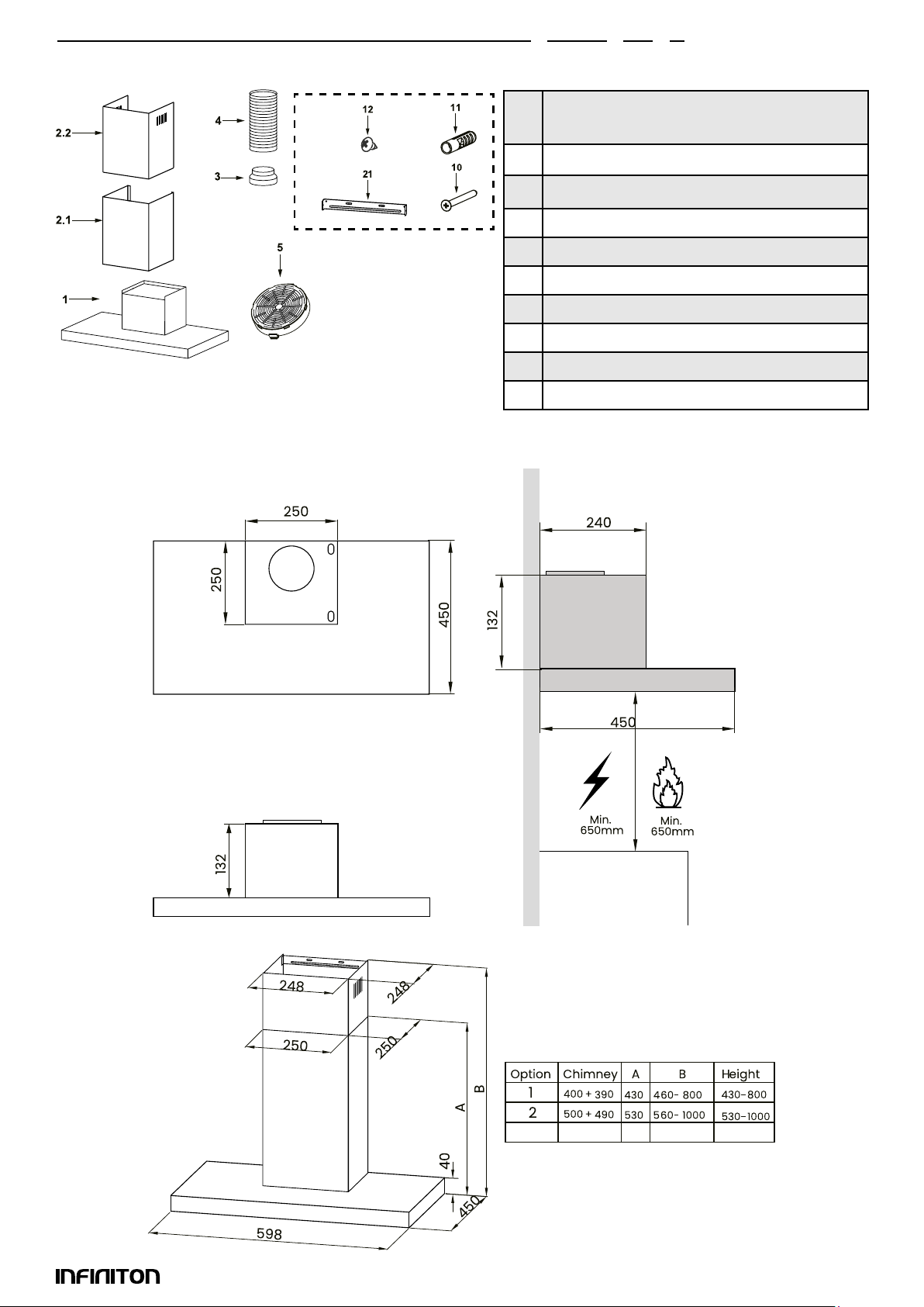
¿Qué distancia es aconsejable entre la placa de cocción y la campana?
Siempre dependerá de cada modelo, aunque la distancia mínima entre la zona de cocción y de
extracción por norma general será de 55 cm para las placas vitrocerámicas o de inducción. Si la placa
es de gas, la distancia aconsejable será algo superior, de 65 cm.
En los módulos de integración, esa distancia mínima deberá ser siempre de 50 cm para las placas
eléctricas y de 65 cm para las de gas.
En los modelos de campanas extraplanas la distancia podrá verse reducida hasta 43 cm siempre que
se use una placa vitrocerámica o de inducción.
Evita olores
Nuestro equipo de ingenieros recomienda utilizar la función de marcha prolongada, si la campana no
dispone de esta función, podrás dejarla funcionando entre 5 y 10 minutos manualmente para que se
absorban el resto de los vapores que se desprenden en la cocción.
Evitar los olores mientras la campana está funcionando
Cuando esto ocurre es que probablemente su ltro esté saturado y no puede absorber más grasa, si
esto sucede la solución es sencilla: límpialo y en caso de que esté en mal estado, deberás sustituirlo.
Los ltros antigrasa deben limpiarse una vea al mes, puede hacerlo a mano o en tu lavavajillas. En este
último caso, procura hacerlo a una temperatura baja. Coloca los ltros de tu campana extractora con
cuidado en las rejillas y no junto a otras piezas de vajilla. En caso de hacerlo a mano, te aconsejamos
que los dejes en remojo en agua caliente con jabón durante un par de horas y a continuación, cepillar
los ltros, lavarlos de nuevo y dejarlos escurrir.
¿Cómo limpiar los ltros metálicos de una campana de extracción?
Los ltros puedes limpiarlos a mano o en el lavavajillas. Consejos para lavarlos a mano: deja los ltros
en remojo en agua caliente con jabón, límpialos y acláralos bien a fondo, después solo deberás
escurrirlos bien. Para hacerlo en el lavavajillas debes tener cuidado de no lavarlos junto a la vajilla o
cubertería si tiene exceso de grasa. Trátalos previamente con un desengrasante concentrado que
elimine la grasa más resistente.