
Johnson Controls Unitary Products 5020803-UIM-C-0715
SINGLE PACKAGE
HEAT PUMP/ELECTRIC
MODELS: PHE4 Series
(2-5 Ton)
LIST OF SECTIONS
GENERAL INFORMATION . . . . . . . . . . . . . . . . . . . . . . . . . . . . . . . . 1
SAFETY . . . . . . . . . . . . . . . . . . . . . . . . . . . . . . . . . . . . . . . . . . . . . . . 1
MODEL NUMBER NOMENCLATURE . . . . . . . . . . . . . . . . . . . . . . . 2
INSTALLATION . . . . . . . . . . . . . . . . . . . . . . . . . . . . . . . . . . . . . . . . . 2
AIRFLOW PERFORMANCE . . . . . . . . . . . . . . . . . . . . . . . . . . . . . . 14
OPERATION . . . . . . . . . . . . . . . . . . . . . . . . . . . . . . . . . . . . . . . . . . 16
MAINTENANCE . . . . . . . . . . . . . . . . . . . . . . . . . . . . . . . . . . . . . . . .19
TYPICAL WIRING DIAGRAMS . . . . . . . . . . . . . . . . . . . . . . . . . . . .20
START UP SHEET . . . . . . . . . . . . . . . . . . . . . . . . . . . . . . . . . . . . . .23
LIST OF FIGURES
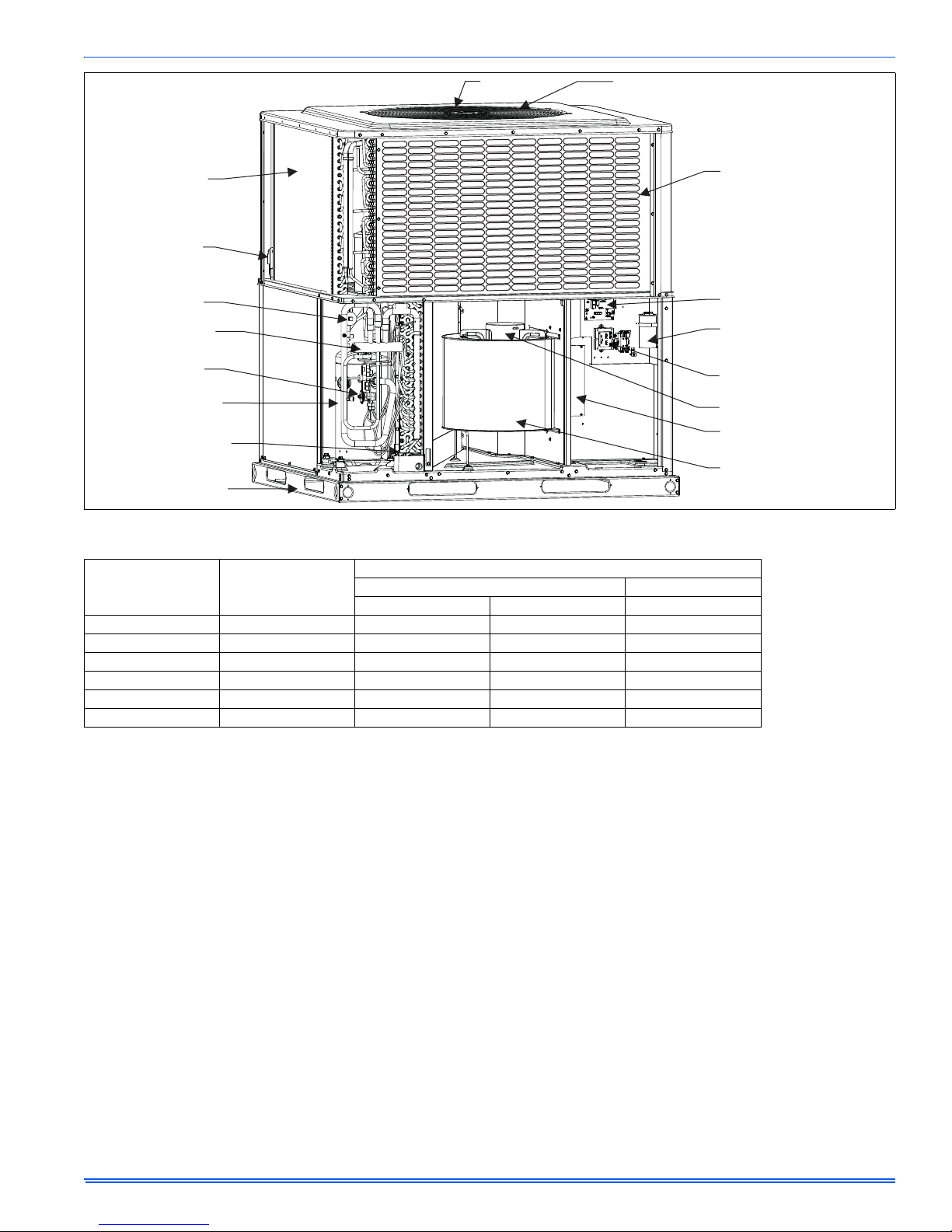
Component Location . . . . . . . . . . . . . . . . . . . . . . . . . . . . . . . . . . . . . 3
Unit 4 Point Load Weight . . . . . . . . . . . . . . . . . . . . . . . . . . . . . . . . . . 4
Unit Dimensions . . . . . . . . . . . . . . . . . . . . . . . . . . . . . . . . . . . . . . . . . 5
Bottom Duct Dimensions (inches) . . . . . . . . . . . . . . . . . . . . . . . . . . . 6
Rear Duct Dimensions (inches) . . . . . . . . . . . . . . . . . . . . . . . . . . . . . 6
Typical Field Control Wiring Diagram For Heat Pump Models . . . . . . 7
Typical Field Power Wiring Diagram . . . . . . . . . . . . . . . . . . . . . . . . . 7
Single Point Wiring Kits . . . . . . . . . . . . . . . . . . . . . . . . . . . . . . . . . .12
Demand Defrost Control . . . . . . . . . . . . . . . . . . . . . . . . . . . . . . . . . .17
Measuring External Static Pressure . . . . . . . . . . . . . . . . . . . . . . . . .18
Connection Wiring Diagram . . . . . . . . . . . . . . . . . . . . . . . . . . . . . . .20
Ladder Wiring Diagram . . . . . . . . . . . . . . . . . . . . . . . . . . . . . . . . . . .21
R-410A Quick Reference Guide . . . . . . . . . . . . . . . . . . . . . . . . . . . .22
LIST OF TABLES
Unit Limitations . . . . . . . . . . . . . . . . . . . . . . . . . . . . . . . . . . . . . . . . . . 3
Weights and Dimensions . . . . . . . . . . . . . . . . . . . . . . . . . . . . . . . . . . 4
Unit Dimensions . . . . . . . . . . . . . . . . . . . . . . . . . . . . . . . . . . . . . . . . . 5
Unit Clearances . . . . . . . . . . . . . . . . . . . . . . . . . . . . . . . . . . . . . . . . . 5
Electrical Data - 208/230-1-60 - Single Source Power
Single Point Connection Kit Required . . . . . . . . . . . . . . . . . . . . . . . . 8
Electrical Data for 208-1-60 Multi Source Power . . . . . . . . . . . . . . . . 9
Electrical Data for 230-1-60 Multi Source Power . . . . . . . . . . . . . . . 10
Physical Data . . . . . . . . . . . . . . . . . . . . . . . . . . . . . . . . . . . . . . . . . . 13
Airflow - Side Duct Application . . . . . . . . . . . . . . . . . . . . . . . . . . . . .14
Airflow - Bottom Duct Application . . . . . . . . . . . . . . . . . . . . . . . . . . .15
Electric Heat Minimum Supply Air . . . . . . . . . . . . . . . . . . . . . . . . . .15
Electric Heat Multipliers . . . . . . . . . . . . . . . . . . . . . . . . . . . . . . . . . .15
Additional Static Resistance . . . . . . . . . . . . . . . . . . . . . . . . . . . . . . .16
Demand Defrost Selection . . . . . . . . . . . . . . . . . . . . . . . . . . . . . . . .17
Test Pins . . . . . . . . . . . . . . . . . . . . . . . . . . . . . . . . . . . . . . . . . . . . . .17
Fault Codes . . . . . . . . . . . . . . . . . . . . . . . . . . . . . . . . . . . . . . . . . . .17
Thermostat Signals . . . . . . . . . . . . . . . . . . . . . . . . . . . . . . . . . . . . . .18
SECTION I: GENERAL INFORMATION
PHE units are factory assembled heat pumps designed for outdoor
installation on a roof top or a slab. Field-installed optional electric heater
accessories are available to provide supplemental electric heat com-
bined with electric cooling and heating.
The units are completely assembled on rigid, removable base rails. All
piping, refrigerant charge, and electrical wiring is factory installed and
tested. The units require only electric power condensate drain and duct
connections at the point of installation.
SECTION II: SAFETY
This is a safety alert symbol. When you see this symbol on
labels or in manuals, be alert to the potential for personal
injury.
Understand and pay particular attention to the signal words DANGER,
WARNING, or CAUTION.
DANGER indicates an imminently hazardous situation, which, if not
avoided, will result in death or serious injury.
WARNING indicates a potentially hazardous situation, which, if not
avoided, could result in death or serious injury.
CAUTION indicates a potentially hazardous situation, which, if not
avoided may result in minor or moderate injury. It is also used to
alert against unsafe practices and hazards involving only property dam-
age.
WARNING
Improper installation may create a condition where the operation of
the product could cause personal injury or property damage.
Improper installation, adjustment, alteration, service or maintenance
can cause injury or property damage. Failure to carefully read and
follow all instructions in this manual can result in furnace mal-
function, death, personal injury and/or property damage. Only a
qualified contractor, installer or service agency should install this
product.
CAUTION
This product must be installed in strict compliance with the installa-
tion instructions and any applicable local, state, and national codes
including, but not limited to building, electrical, and mechanical
codes.