1) Check that the wind-vane and fan of the wind sensor can freely rotate by moving the vane gently and also blowing into
the fan to emulate wind speed and direction
2) Holding the rain sensor in both hands with the longest side facing you, tilt the unit from side to side and hear the rain
counter flip which emulates rainfall
3) The base station will start to receive the 433MHz data transmitted from the sensors. Data such as rainfall will not be
updated as regularly as the outdoor temperature since it does not rain constantly all the time. Therefore these readings
may take up to two minutes before being shown on the LCD.
4) Now using the DISPLAY key on the base station, toggle between different weather modes on the LCD to check that the
weather readings can be received for the relevant sections, for example outdoor temperature and humidity and etc.
Note: Should any outdoor data not be received from the sensors (when “- - -“ is displayed), check all cables are correctly
inserted and/ or the batteries or AC cord are plugged in, press and hold the PLUS(+) key for 2 seconds to hear a beep and
the base station will synchronize to the sensors transmitting signal. Wind speeds that read zero does not mean reception
failure, it simply means that there was no wind at the time of reading the data.
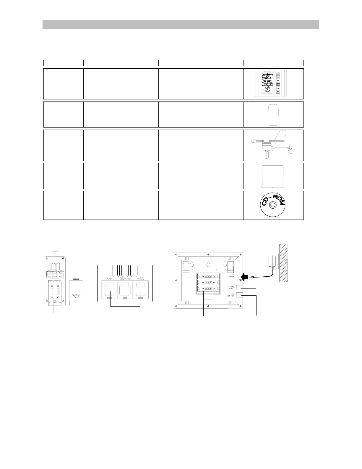
Mounting the units:
Users must take their surroundings into consideration before deciding which method is best suited for them. Connection by
cable is advantageous in that data from the sensors to the base station is interference free. Using 433MHz wireless
transmission gives users little restriction on placement as that all units can be positioned virtually anywhere to within a 100ft
radius of the base station. You must decide which method is best suited to you. For cable connecting, please ensure that
the 10 meters cable included in this set meets with your distance requirements (see accessories in the main user manual for
adding extension cables).
To change from 433MHz to cable connection (or vice versa) simply connect (or disconnect) the 32ft cable from the base
station to the sensor. The base station will automatically detect the connection and read the weather data. If the data
cannot be received then press and hold the PLUS(+) key for 2 seconds to synchronize the base station with the sensor.
Important: Ensure all signals including the radio controlled time can be received and/or all cable distances meet with your
requirements at the point of fixing particularly before you start drilling any mounting holes.
Wind sensor
Secure the main unit to the shaft of the mast holder using the single screw provided with the front of the sensor (marked E)
facing in the East-West direction otherwise wind direction will not be accurate. Now fix the entire unit to a suitable mast
using the 2 two U-bolts, 4 washers and nuts found in this set.
Note: For best results mount the wind sensor onto a mast to allow the wind to freely travel from all directions to enable an
accurate reading (ideal mast size should be from Ø6.3” – Ø1.3”). Ensure that the 10 meter cable of the wind sensor meets
your distance requirements.
Rain sensor
The rain sensor should be mounted horizontally about 2-3ft off from the ground in an open area away from trees or other
coverings to allow rain to fall naturally for an accurate reading.
Note: For best results ensure the base is horizontal to allow maximum drainage of any collected rain
Thermo-hygro Sensor
To wall mount the thermo-hygro sensor, fix the wall holder onto the desired wall (2 screws are supplied), plug the sensor
firmly into the wall holder and then carefully replace the rain cover back over the thermo-hygro sensor.
Note: After mounting the units, should the weather data not be received then press and hold the PLUS(+) key for 2 seconds
to synchronize the base station with the sensor.
Weather station for use with your PC
Use your PC to read the latest weather data collected by the weather station. Just simply install the software from the
enclosed CD-ROM onto your PC. For full details see the “Heavy Weather “ PC software instructions in the CD-ROM
(English version only).
System Requirements:
The minimum system requirement for use of “Heavy Weather” PC software is:
• Operating system: Windows 98 or above
• Processor: Pentium 166 MHz or above processor
• RAM: 32MB or above
• Hard-disc: 20MB free space
• CD-ROM drive