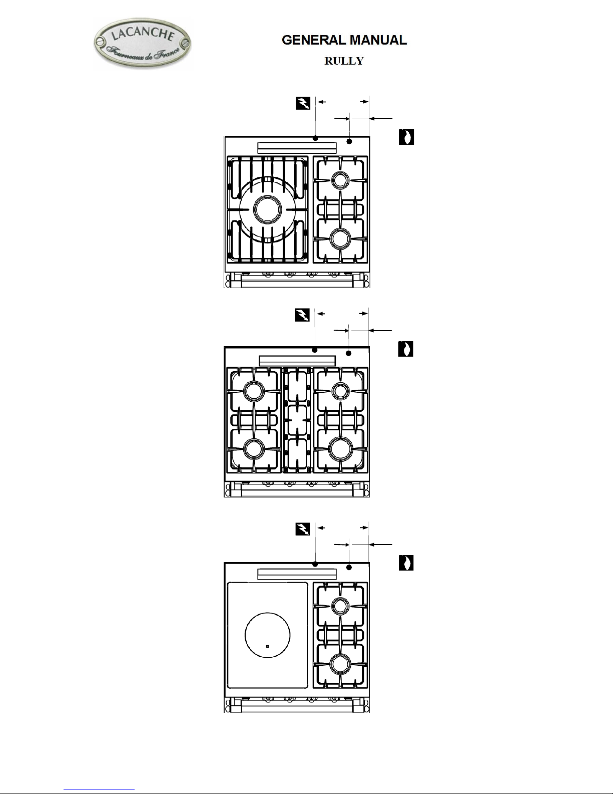
Layout:
3- or 4-burner cook’s stove above a 68 litre/2.40 ft3oven and a 35 litre/1.24 ft3oven (fig.1 & 2)..
Description:
Enamelled steel or stainless body panels AISI 430. Pressing cooking surface (stainless steel AISI 304) (Figures 3, 4 and 5).
3- or 4- burners of different size and power individually controlled by a thermocouple safety valve. Electrical ignition.
TRADITION” model equipped with a 385 x 510 mm (15 5/32’’ x 20 5/64’’) heating plate (Figure 5).
Electric grill oven:
Enamelled sheet metal. Dimensions W x D x H: 400 (1547/64’’) x 440 (175/16’’) x 145 (545/64’’), 35 litres/1.24 ft3, 1 shelf
level.Thermostatically controlled heating elements, safety cut-out by safety thermostat.
Oven: 1700 W, 2850 Watt electric grill.
Rating: 2850 W – Power supply: 240 Volts 60Hz.
Multifunction electric oven:
Dimensions W x D x H: 535 (215/8’’) x 420 (1627/64’’) x 265 (1027/64’’); 68 litres/ 2.40 ft3, 3 shelf level with 70 mm spacing
Electric grill with a rating of 2850 W
Function static electric oven:
One 1700 W element at the base and a peripheral 1200 W element in the roof which operate simultaneously.
Thermostatically controlled roof and base heating elements, safety cut-out by safety thermostat.
Rating: 2900 W – Power supply: 240 Volts 60Hz.
Function ventilated electric oven:
Heating provided by one circular 2650 W element and one peripheral of 1200 W element..
Thermostatically controlled heating elements, safety cut-out by safety thermostat.
Rating: 2650 W – Power supply: 240 Volts 60Hz.
Accessories
Per oven: one roasting pan, one shelf
Shipment-Packaging
Unpack and check the appliance is in good condition. In case damage, note any reservations on the delivery note and
confirm them within 48 hours by registered letter with confirmation of delivery to the carrier.
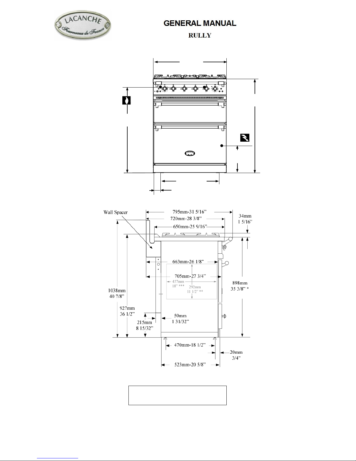
Gas connection:
1/2” ID NPT (Sch 40) inlet, on male coupling (Figures 1, 2, 3, 4, 5). Sealant on all pipe joints must be resistive to LP gas.
If used, a flex gas line for the gas supply must be metal of at least 1/2” ID NPT approved by an approved certifying agency
(A.G.A., C.G.A,. etc.) in compliance with ANSI Z21.41 and Z21.69. Never use a hose made of rubber or other synthetic
material.
Gas supplying:
Appliance gas supplying can be switched, please refer to rating plate and marking at the rear of the appliance.
Electrical connection:
On terminal block at the rear of the appliance. Use flexible cord in accordance with standard N.E.C., AINSI/NEMA 70-
1996 or latest edition (not cord provided by factory) (Figures 1, 2, 3, 4, and 5).
Page 5 of 38 – US –