
7
dc2448adf
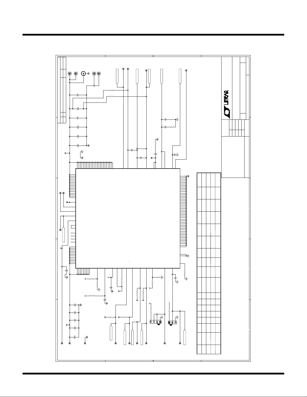
DEMO MANUAL
DC2448A-D
ITEM QTY REFERENCE PART DESCRIPTION MANUFACTURER/PART NUMBER
Required Circuit Components
1 4 C1, C14, C19, C24 CAP., 22µF, X7R, 10V, 10%, 1206 MURATA, GRM31CR71A226KE15L
2 4 C2, C15, C20, C25 CAP., 4.7µF, X5R, 25V, 20%, 0805 MURATA, GRM21BR61E475MA12L
3 1 C8 CAP., 100pF, X7R, 50V, 10%, 0603 AVX, 06035C101KAT2A
4 2 C9, C10 CAP., 0.47µF, X7R, 10V, 10%, 0603 AVX, 0603ZC474KAT2A
MURATA, GRM188R71A474KA61D
5 2 C29, C30 CAP
., 10µF, X5R, 6.3V, 10%, 0805 MURATA, GRM21BR60J106KE19L
6 21 C31, C32, CO1, CO2, CO3, CO4, CO7,
CO8, CO9, CO10, CO11, CO14, CO15,
CO16, CO17, CO18, CO21, CO22, CO23,
CO24, CO25
CAP., 100µF, X5R, 6.3V, 20%, 1210 MURATA, GRM32ER60J107ME20L
7 1 CIN1 CAP., 150µF, ALUM., 35V, 20%, 10x10.5mm,
SMD, HVH SERIES
SUN ELECTRONIC INDUSTRIES CORP,
35HVH150M
8 16 CIN2, CIN3, CIN4, CIN5, CIN6, CIN7,
CIN8, CIN9, CIN10, CIN11, CIN12,
CIN13, CIN14, CIN15, CIN16, CIN17
CAP., 22µF, X5R, 25V, 10%, 1210 AVX, 12103D226KAT2A
MURATA, GRM32ER61E226KE15L
9 8 CO5, CO6, CO12, CO13, CO19, CO20,
CO26, CO27
CAP., 470µF, TANT. POLY., 4V, 20%, 7343, D3L PANASONIC, 4TPE470MCL
10 1 R14 RES., 10k, 1%, 1/10W, 0603 KOA SPEER, RK73H1JTTD1002F
PANASONIC, ERJ3EKF1002V
VISHAY, CRCW060310K0FKEA
11 1 R20 RES., 4.99k, 1%, 1/10W, 0603 NIC, NRC06F4991TRF
VISHAY, CRCW06034K99FKEA
12 4 R22, R51, R60, R70 RES., 34.8k, 1%, 1/10W, 0603 VISHAY, CRCW060334K8FKEA
YAGEO, RC0603FR-0734K8L
13 3 U1, U2, U3, U4 IC, HIGH EFFICIENCY 40A µMODULE LINEAR TECHNOLOGY, LTM4636EY#PBF
Additional Demo Board Circuit Components
1 4 C3, C11, C12, C34 CAP., 0.01µF, X7R, 100V, 10%, 0603 AVX, 06031C103KAT2A
2 4 C6, C17, C22, C27 CAP., 2200pF, X7R, 50V, 10%, 0603 AVX, 06035C222KAT2A
3 1 C13 CAP., 0.1µF, X7R, 25V, 10%, 0603 AVX, 06033C104KAT2A
4 1 C33 CAP., 1µF, X7R, 16V, 10%, 0603 AVX, 0603YC105KAT2A
NIC, NMC0603X7R105K16TRPF
TDK, C1608X7R1C105K080AC
5 1 C35 CAP., 22pF, C0G, 50V, 5%, 0603 MURATA, GRM1885C1H220JA01J
6 1 D2 DIODE, TVS, 12V, 600W, SMB/DO-214AA FAIRCHILD SEMI, SMBJ12A
7 2 D3, D4 LED, GREEN, WATERCLEAR, 0603 WURTH ELEKTRONIK, 150060GS75000
8 2 D5, D6 LED, SUPER RED, WATERCLEAR, 0603 WURTH ELEKTRONIK, 150060SS75000
9 3 Q1, Q2, Q3 XSTR., MOSFET, N-CH, 40V, TO-252 VISHAY, SUD50N04-8M8P-4GE3
10 Q4 XSTR., MOSFET, N-CH, 30V, 100A, LFPAK,
SO8(SOT669)
NXP SEMICONDUCTORS, PSMN2R0-
30YLE, 115
11 14 R2, R10, R17, R19, R45, R47, R50, R54,
R56, R59, R62, R65, R68, R69
RES., 0Ω, 1/10W, 0603 NIC, NRC06ZOTRF
VISHAY, CRCW06030000Z0EA
12 8 R4, R5, R12, R15, R28, R31, R35, R36 RES., 10k, 5%, 1/10W, 0603, AEC-Q200 PANASONIC, ERJ3GEYJ103V
VISHAY, CRCW060310K0JNEA
parts List