The design is powerful to combine and distribute audio/ video security
Camera sources with this unique unit in your site-place.
AVD-800P REAR PANEL FEATURES AND CONNECTIONS
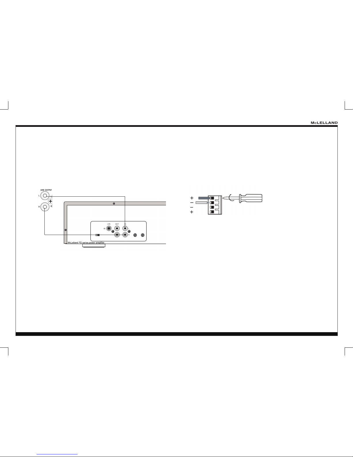
1. Preamp Line Out (1-8): L+R stereo RCA Jacks for connecting Zone Audio Output to an external
amplier. For use with applications where either more power is required for Zone (see Figure 1)
2. Zone Speaker Output (1-8): Use the included 4-conductor plug-in connector, (8 included) to connect
speaker wires to the AVD-800P (see Figure 2)
3. Inter Data Loop: This RS-485 data controller can loop control up to 16 AVD-800P units of expand to
128 places (see Figure 3)
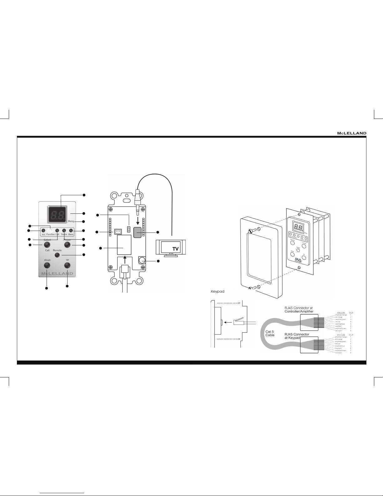
4. Control Pad: which connected with the ASC-1 system controller; it can control the Eight zone’s
keypads.
5. Call LED: The Call LED Jack (D-SUB 9 Pin) on the rear panel can connect with Call LED Display Box,
when user prints anyone of the zone “Call” key press, the corresponding zone LED will be illuminant and
active sounder.
6. Voltage Select: Can be switched between AC 115V 60 Hz / 230V 50 Hz.
7. AC Power Input: Standard IEC 3-Conductor AC Line Cord Receptacle for plug-in of a 3-conductot
power line cord.
8. SYS Trigger: The System Trigger Jack will be showing the H (DC 12V) output when the all 8 zone
sources were powered on or at least one zone is powered on.
The System Trigger Jack will be showing the L (DC 0V) output when the all 8 zone sources were
powered off or at least on zone is powered off
9. External Mute: When the extra DC 3-12V input used by this Jack, it will be show the Mute condition
with all zones of AVD-800P
10. IR Remote Emitter (1-8): Those 3.5mm Mono Mini Phone Jacks are use for plug the supplied IR
emitters into the appropriate IR Emitter jacks to individually control the 8 common source components.
(see Figure 4)
11. AGC/Address Select: Using the Address & AGC (Auto Gain Control), no need to regulate the
volume of each source, the volume of output will automatic to be ranged at the same level. (see Figure 5)
12. Keypad Output (1-8): Each Zone has one RJ-45 jack for keypad interface. Connect the zone CAT5
cable to the Keypad Output Terminal n the AVD-800P keypad rear panel. (see Figure 6 & 7)
13. Zone Audio Input: Stereo RCA Jacks for stereo line level audio input from source. (see Figure 8)
14. Zone Audio/Video Input: RCA Jacks for composite video input from source components. (see
Figure 9)
15. Video Camera Input: Which designed used the UTP camera as mainstream do the bidirectional
electric transfers by CAT5 cables/connectors, it will be had no use for another power and transfer could
be controller remotely.
16. Input Source (Signal) Loop In/Out: Re-In/Output 10 Audio/Video sources to other AVD-800P with
IDC Flat Cable.
12
543
6
10
9 8 7
1112
131415
16
1. Front Panel.
2. Master Power On/Off Switch: Turns AC power On/Off to the entire unit.
3. Zone LED Indicators: Eight indicators, one for each Zone
4. Microphone Input: Use this jack to connect a mircophone to the amplier.
5. Mic Level Control: Use this VR to adjust the microphone volume without changing the overall mix
6. Call: The Call function can be turned on with this button.
7. Call On: This LED lights to indicate when the Call function has be turn on.
27 6 5 4
1
3
AVD-800P FRONT PANEL FEATURES AND CONNECTIONS