Mercury Security MUX8 Manuale utente

www.mercury-security.com
2355 MIRA MAR AVE. LONG BEACH, CA 90815-1755, (562)986-9105 FAX (562) 986-9205
Mercury Security © 2013 MUX8 DOC 10107-0016 REV 2.01 Page 1
MUX8 8/1 RS-485 Multiplexer
Installation and Specifications:
1. General:
The Multiplexer allows a controller to expand a single communication port to 8 2-wire RS-485 channels,
thus making it convenient to implement star wiring topology. All nine 2-wire channels on the multiplexer
are universal with regard to master/slave devices.
The electrical interface for port 1 is jumper selectable as RS-232 or RS-485.
Ports 2, 4, 6 and 8 may be individually configured as receive-only channel. By pairing a receive-only
channel with another channel, a 4-wire RS-485 channel may be formed.
Baud rate dependent turn around delay is set by DIP switches. The typical turnaround time is set to
approximately 10 bit time (see DIP switch table 2-1). To avoid collision, a device must wait for this time
before it can begin a new transmission.
TR+
TXD
RXD
TR-
GND
TB2
PORT 1
JP6
JP1
485
232
232
485
JP2
JP7
JP5
JP11 JP12
JP4
JP10
JP8
JP3
JP14
JP9
JP13
JP16
JP15
JP17
S1
U2
J1
A 1 2 3 4 5 6 7 8 9
PORT 2
PORT 3
PORT 4
PORT 7
PORT 8
PORT 9 PORT 6 PORT 5
TR+
TR-
GND
TR-
GND
TR+
TR-
GND
TR+
TR-
GND
TR+
TR-
GND
TR+
TR-
GND
TR+
TR-
GND
TR+
TR-
GND
TR+
TB3
TB4
TB5
TB6
TB7
TB8
TB9
TB10
TB1
GND
NC
+DC
1 2 3 4
ON
U9 U12
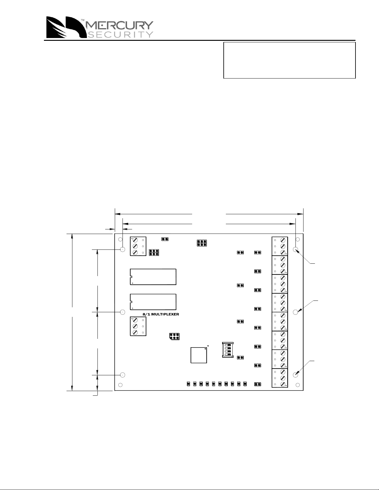
5.50 [139.70]
6.00 [152.40]
2.00 [50.80]
2.00 [50.80]
5.00 [127.00]
CHASSIS
GROUND
CHASSIS
GROUND
Ø0.15 [Ø3.81]
6 PLACES
0.50 [12.70]
0.25 [6.35]
This device complies with part 15 of the FCC Rules. Operation
is subject to the following two conditions: (1) This device may
not cause harmful interference, and (2) this device must
accept any interference received, including interference that
may cause undesired operation.

Mercury Security © 2013 MUX8 DOC 10107-0016 REV 2.01 Page 2
2. Port Configuration:
Figures1-1 and 1-2 show the typical usage for 2-wire and 4-wire RS-485. To set a port as receive-only,
remove the corresponding jumper, see table 2-2.
Figure 1-1
Figure 1-2
3. DIP Switch and Jumper Settings:
DIP switch settings:
S4
S3
S2
S1
SELECTION (TURN AROUND DELAY, APPROXIMATE)
OFF
OFF
OFF
OFF
300 BPS (35 ms)
OFF
OFF
OFF
ON
1200 BPS (9.58 ms)
OFF
OFF
ON
OFF
2400 BPS (4.79 ms)
OFF
OFF
ON
ON
4800 BPS (2.50 ms)
OFF
ON
OFF
OFF
9600 BPS (1.25 ms)
OFF
ON
OFF
ON
19200 BPS / 38400 BPS NORMAL (625 us)
OFF
ON
ON
OFF
38400 BPS FAST TURN (365 us)
OFF
ON
ON
ON
38400 BPS FAST TURN (365 us)
Table 2-1
8/1 MUX
SCP
2-WIRE
2-WIRE
2-WIRE
2-WIRE
4-WIRE
MR52 MR16IN
MR50
MR16OUT OTHER
MR50 MR50
2-WIRE 4-WIRE
SET TO RECEIVE ONLY

Mercury Security © 2013 MUX8 DOC 10107-0016 REV 2.01 Page 3
Jumper settings:
JUMPERS
SET AT
SELECTED
JP1,JP5,JP6,JP7
232
PORT 1 IS RS-232
485
PORT 1 IS RS-485
JP11
OFF
PORT 2 IS RECEIVE ONLY FOR 4-WIRE RS-485
ON
PORT 2 IS 2-WIRE RS-485
JP4
OFF
PORT 4 IS RECEIVE ONLY FOR 4-WIRE RS-485
ON
PORT 4 IS 2-WIRE RS-485
JP10
OFF
PORT 6 IS RECEIVE ONLY FOR 4-WIRE RS-485
ON
PORT 6 IS 2-WIRE RS-485
JP16
OFF
PORT 8 IS RECEIVE ONLY FOR 4-WIRE RS-485
ON
PORT 8 IS 2-WIRE RS-485
JP2
ON/OFF
PORT 1 RS-485 TERMINATION –DO NOT USE
JP12
ON/OFF
PORT 2 RS-485 TERMINATION
JP14
ON/OFF
PORT 3 RS-485 TERMINATION
JP3
ON/OFF
PORT 4 RS-485 TERMINATION
JP8
ON/OFF
PORT 5 RS-485 TERMINATION
JP9
ON/OFF
PORT 6 RS-485 TERMINATION
JP13
ON/OFF
PORT 7 RS-485 TERMINATION
JP15
ON/OFF
PORT 8 RS-485 TERMINATION
JP17
ON/OFF
PORT 9 RS-485 TERMINATION
Table 2-2
IMPORTANT NOTE Install the termination jumper ONLY on the panel at each end of the RS-485 bus.
Failure to do so will compromise the proper operation of the communication channel. Port 1: It is
recommended that the termination jumper (J2) not be installed and remove all other termination
jumpers on the units connected to this communication bus.
4. Specifications:
The multiplexer is for use in low voltage, class 2 circuits only.
Primary power:
DC input: 12 to 24 Vdc ± 10 %, 200 mA maximum
Interfaces:
Port 1: RS-232/RS-485, selectable
Port 3,5,7,9 RS-485, Transmit/Receive
Port 2,4,6,8 RS-485, Transmit/Receive, or Receive Only
Wire requirement:
Power: 1 twisted pair, 18 AWG
RS-485: 24 AWG, 4,000 feet (1,200 m) maximum, twisted pair(s) with shield.
RS-232: 24 AWG, 50 feet (15 m) maximum
Environmental:
Temperature: 0 to 70 °C, operating
-55 to +85 °C, storage
Humidity: 0 to 95 % RHNC
Mechanical:
Dimension: 5 in. (127 mm) L x 6 in. (15 2mm) W x 1 in. (25 mm) H
Weight: 4 oz (180 g) nominal

Mercury Security © 2013 MUX8 DOC 10107-0016 REV 2.01 Page 4
Warranty
Mercury Security warrants the product is free from defects in material and workmanship under normal
use and service with proper maintenance for one year from the date of factory shipment. Mercury
Security assumes no responsibility for products damaged by improper handling or installation. This
warranty is limited to the repair or replacement of the defective unit.
There are no expressed warranties other than set forth herein. Mercury Security does not make, nor
intends, nor does it authorize any agent or representative to make any other warranties, or implied
warranties, and expressly excludes and disclaims all implied warranties of merchantability or fitness for
a particular purpose.
Returns must be accompanied by a Return Material Authorization (RMA) number obtained from
customer service, and prepaid postage and insurance.
Liability
The Interface should only be used to control exits from areas where an alternative method for exit is
available. This product is not intended for, nor is rated for operation in life-critical control applications.
Mercury Security is not liable under any circumstances for loss or damage caused by or partially caused
by the misapplication or malfunction of the product. Mercury Security’s liability does not extend beyond
the purchase price of the product.
Indice

















