
GENERAL INSTRUCTIONS
This installation guide provides you with easy to follow illustrations
and instructions to assemble your MHP Gas Barbecue Grill.
Before you start assembling and using your MHP Gas Barbe-
cue Grill we recommend that you read through all precau-
tions, safe guards and instructions to avoid any personal
injury or property damage.
Check Local Codes. Contact your local LP dealer or Natural Gas
company for recommended installation procedures and regula-
tions. If there are no local codes, installation must conform to the
latest National Fuel Gas Code: ANSI Z 223.1. For Canada, instal-
lation must comply with local codes and/or Standard CAN/CGA-B-
149-1 for natural gas installation and CAN/CGA- B-149-2 for pro-
pane installation.
For LP Gas Models the supplied Regulator must be used. Any
replacement pressure regulator or hose assembly must meet or
exceed the specifications of MHP. Refer to the parts list and con-
tact the dealer where your grill was purchased.
Only Worthington, Manchester, or Wolfdale brand cylinders should
be used with this appliance.
For Natural Gas Models the grill is designed to operate at a pres-
sure of 7” water column (W.C.) (1.75 kPa). Check your gas utility
for local pressure. Pressures other than approximately 7” W.C.
could affect the performance of your grill.
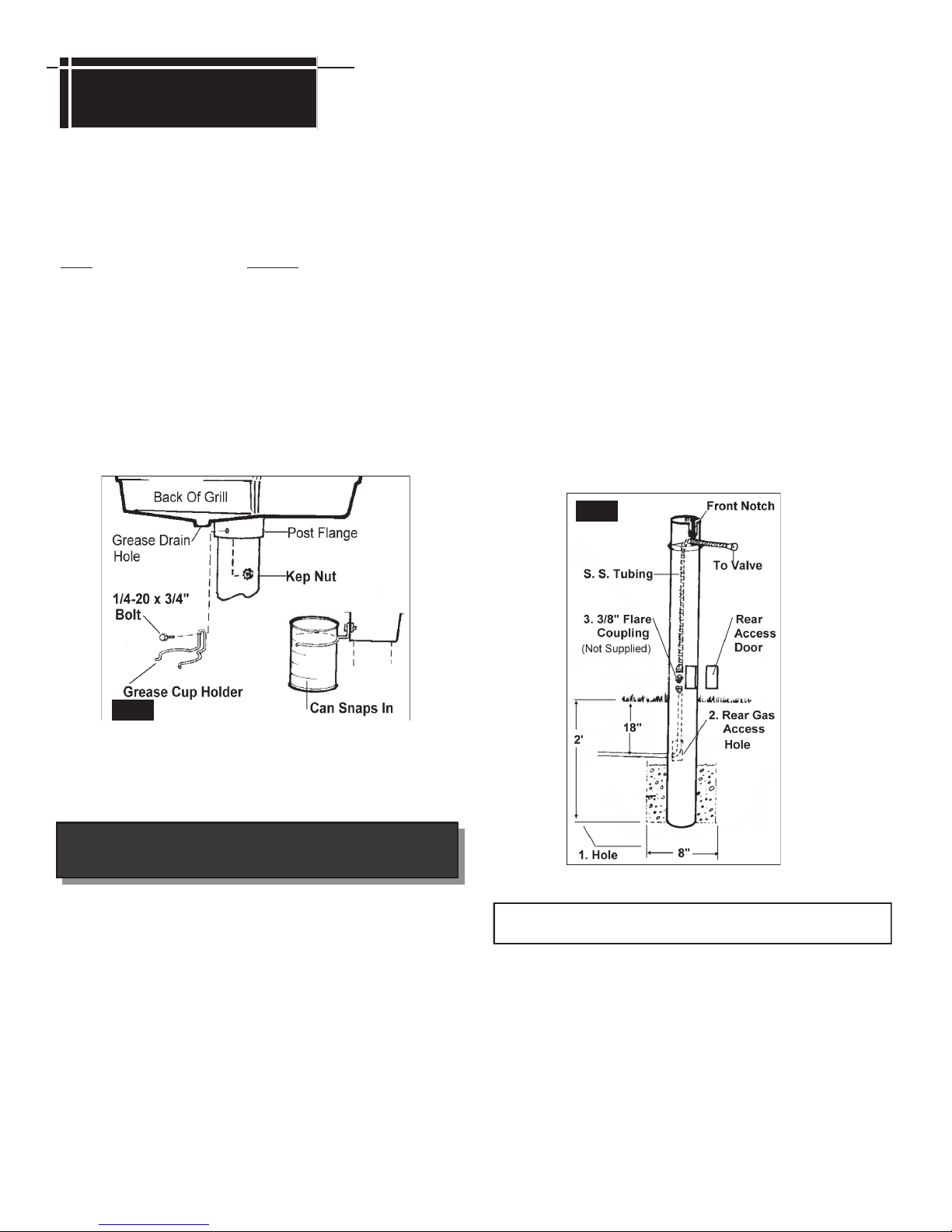
ASSEMBLY INSTRUCTIONS
There are 9 steps to assembling your MHP Gas Barbecue Grill:
The mounting, LP tank mounting, control panel, gas supply con-
nection, grill lid, lid handle, side shelves, and rock grate, cooking
grid and warming rack.
The grill itself is partially assembled with the Burner, Venturis,
Ignitor Collector Box and the Regulator installed.
OPERATING SAFEGUARDS
Do not install your MHP Gas Barbecue Grill in or on
recreational vehicles and/or boats.
Never use your MHP Gas Barbecue Grill near combusti-
ble surfaces, including roof overhangs, roofs, vinyl sid-
ing and window shutters.
Use this barbecue outdoors in a well-ventilated area.
Do not use your MHP Gas Barbecue Grill in a shed, ga-
rage, building, breezeway or any other confined area.
Do not use any kind of combustible material on or near
the top, bottom, back or sides of the grill. Maintain at
least an 18 inch clearance.
Leak test all gas supply line connections.
Do not let children operate a gas grill.
Keep the area around the grill clear of combustible va-
pors or liquids such as gasoline.
When operating the grill do not leave unattended. Keep
children and pets away.
Keep fuel supply hose and electrical supply cord away
from any heated surface.
General Instructions
SAFETY
YOUR GRILL IS DESIGNED FOR OUTDOOR USE ONLY.
It should also not be used in an enclosed area such as a shed or garage
because combustion uses available oxygen and discharges carbon mon-
oxide.
The grill must be located no closer than 18" from any combustible surface
behind or to the sides. Grill should not be located under overhead unpro-
tected combustible surfaces.
Keep the area around the grill clear of combustible materials, flammable
vapors or liquids such as gasoline.
Do not obstruct the flow of combustion and ventilation air.
5
Phillips and Straight
Screw Driver
7/16 Socket or Nut
Driver
7/16 Wrench
TOOLS NEEDED FOR ASSEMBLY
STORAGE
Turn gas OFF at the LP cylinder (or at the shut OFF valve in the case
of Natural Gas) when the MHP Gas Barbecue Grill is not in use.
Do not store spare LP cylinders under the MHP Gas Barbecue Grill.
Store disconnected LP cylinders outdoors in a well-ventilated area, do
not store in shed, building, garage or in any enclosed area.
Place dust cap on cylinder valve outlet whenever the cylinder is not in
use. Only install the type of dust cap on the cylinder valve outlet that
is provided with the cylinder valve. Other types of caps or plugs may
result in leakage of propane.