CAA470A-EI02
PRINTED IN CANADA 07/2004
Introduction
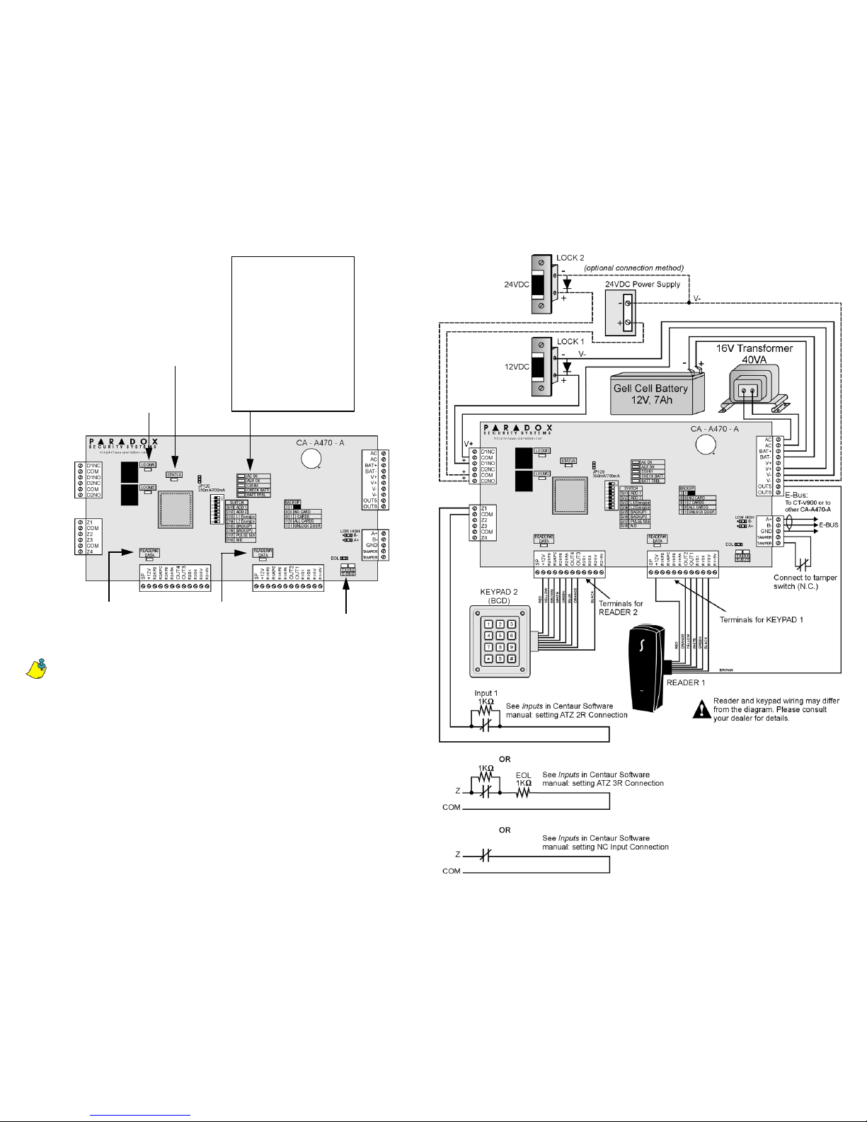
Connected to the CT-V900 controller’s expansion bus, the
2-Door Expansion Module (CA-A470-A) supports two
readers, two BCD keypads, four zone inputs, 6 outputs
and two locking devices.
Specifications
DIP Switches
In order for new DIP switch settings to take effect,
the 2-Door Expansion Module’s power must be
disconnected and then reconnected.
Assign Address (1 and 2)
DIP switches 1 and 2 determine the 2-Door
Expansion Module’s address in the network,
regardless of the order that they are connected
to the controller. Centaur recognizes the doors
according to the DIP switch settings as shown in
Figure 1.
Figure 1: Setting the network address
Lock State during Communication Failure
DIP switches 3 and 4 determine the state of
Lock #1 and Lock #2 ONLY during a
communication failure between the 2-Door
Expansion Module and the controller (CT-V900-
A). Normally, the lock outputs follow the Lock
Control for the CT-V900-A. Therefore, the DIP
switches should have the same setting as the Lock
Control for the corresponding doors in Centaur.
De-energized: no power in normal state; requires
power to activate.
Energized: power in normal state; remove power
to activate.
Access during Communication Failure (5 and 6)
DIP switches 5 and 6 determine the access to
the protected doors during a communication
failure.
Activate Output on Communication Failure (7)
DIP switch 7 determines if OUT5 and OUT6 will
pulse during a communication failure. When DIP
switch 7 placed in the ON position, the outputs on
the device(s) connected to the OUT5 and OUT6
terminals will pulse. For example, the LED on
the reader can pulse to advise users that a
communication failure has occurred.
DIP Switch (8)
For future use.
EOL Jumper
Place the EOL jumper ON if the 2-Door Expansion Module
is at the beginning (Start Point) or at the end (End Point) of
the E-bus Network (see Figure 2). Otherwise, place the
EOL jumper OFF.
Figure 2: Setting the Jumpers
High/Low Bias Jumpers
Place the A+ and B- jumpers on LOW only if the 2-Door
Expansion Module is at the beginning (Start Point) of the
E-bus Network. Otherwise, place the A+ and B- jumpers
on HIGH (see Figure 2 and Figure 3).
Figure 3: Setting the A+ and B- jumpers
350mA/700mA Battery Charging Jumper
The 350mA/700mA Jumper allows you to select the
charging current for the backup battery of the 2-Door
Expansion Module. Charging the battery at 350mA takes
longer, but consumes less power. Charging the battery at
700mA takes less time, but consumes more power.
Figure 4: Setting the 350mA/700mA jumper
Programming in Centaur
Using the Centaur Access Control Software, program the
inputs, outputs, readers, and keypads connected to the 2-
Door Expansion Module. The options are explained in the
Centaur Access Control Software Reference Manual.
Centaur will identify the 2-Door Expansion Module by its
address (see DIP Switches 1 to 4) and will recognize the
devices as follows:
Doors cannot be defined as Door Type Elevator
(Door Properties window, General tab, Door
Type: Elevator) and the module does not support
Interlock Inputs (Door Properties window, Inputs
and Outputs tab, Interlock Input).
Other modules in the system cannot activate the 2-
Door Expansion Module’s outputs.
The 2-Door Expansion Module does not support
Zone Doubling (see Figure 6).
CA-A470-A Specifications:
Readers: connect 2 per module
Keypads: connect 2 per module
Inputs: 4 standard without ATZ, 1 tamper
Outputs: 6 (open collector)
Lock Outputs: 2 lock outputs (Form C relays)
each: 15A @ 16VDC (resistive)
AC Power: 16VAC, 40VA max.
Frequency: 50Hz/60Hz
Aux. Current: 500mA (max.)
Battery: 12VDC, 7Ah
low battery = 10.2VDC
low battery restore = 12.2VDC
low battery cut-off = 8.5VDC
Communication: expansion bus (E-Bus), RS-485, Plug
and Play, 3 modules per CT-V900
Operating temp.: 5oC to 55oC (41oF to 133oF)
2-Door Expansion Module
CA-A470-A
Instructions
780 Industriel Blvd., Saint-Eustache (Quebec) J7R 5V3 CANADA
Tel.: (450) 491-7444 Fax: (450) 491-2313
www.paradox.ca
Lock #1 = DIP switch 3
Lock #2 = DIP switch 4
OFF
= De-energized:
During a communication failure, the normal state of
the lock output is De-energized. When Lock #1 or
Lock #2 is activated, power is
applied
to the
corresponding lock output to unlock the door.
Activation depends on the setting of the DIP switches
5 & 6 (Access during Communication Failure).
ON
= Energized:
During a communication failure, the normal state of
the lock output is Energized. When Lock #1 or Lock
#2 is activated, power is
removed
from the
corresponding lock output to unlock the door.
Activation depends on the setting of the DIP switches
5 & 6 (Access during Communication Failure).
Switch Setting During a Communication Failure:
5 = off (0)
6 = off (0)
“No Card”
Access is denied to all cards and doors
are locked until communication is restored.
5 = on (1)
6 = off (0)
“2 Cards”
Access is granted only when 2 cards of
a valid format are presented to the reader.
5 = off (0)
6 = on (1)
“All Cards”
Access is granted when any card with
a valid format is presented to the reader.
5 = on (1)
6 = on (1)
“Unlock Door”
Doors are unlocked until communication
is restored.
Address 1 Address 2 Address 3
Doors
Keypad/Reader 1 Door 3 Door 5 Door 7
Keypad/Reader 2 Door 4 Door 6 Door 8
Inputs
Z1 Input 17 Input 21 Input 25
Z2 Input 18 Input 22 Input 26
Z3 Input 19 Input 23 Input 27
Z4 Input 20 Input 24 Input 28
Outputs
OUT1 Output 7 Output 13 Output 19
OUT2 Output 8 Output 14 Output 20
OUT3 Output 9 Output 15 Output 21
OUT4 Output 10 Output 16 Output 22
OUT5 Output 11 Output 17 Output 23
OUT6 Output 12 Output 18 Output 24
Jumpers set to low Jumpers set to high
A+ B-
LOW
HIGH
LOW
HIGH
A+ B-
Jumper set
as 350mA Jumper set
as 700mA