3
5678
F
E
D
C
B
A
5678
GM-8437ZT/WL
CONTENTS
SAFETY INFORMATION............................................2
1. SPECIFICATIONS.......................................................3
2. EXPLODED VIEWS AND PARTS LIST ......................4
2.1 EXTERIOR............................................................4
3. BLOCK DIAGRAM AND SCHEMATIC DIAGRAM ....6
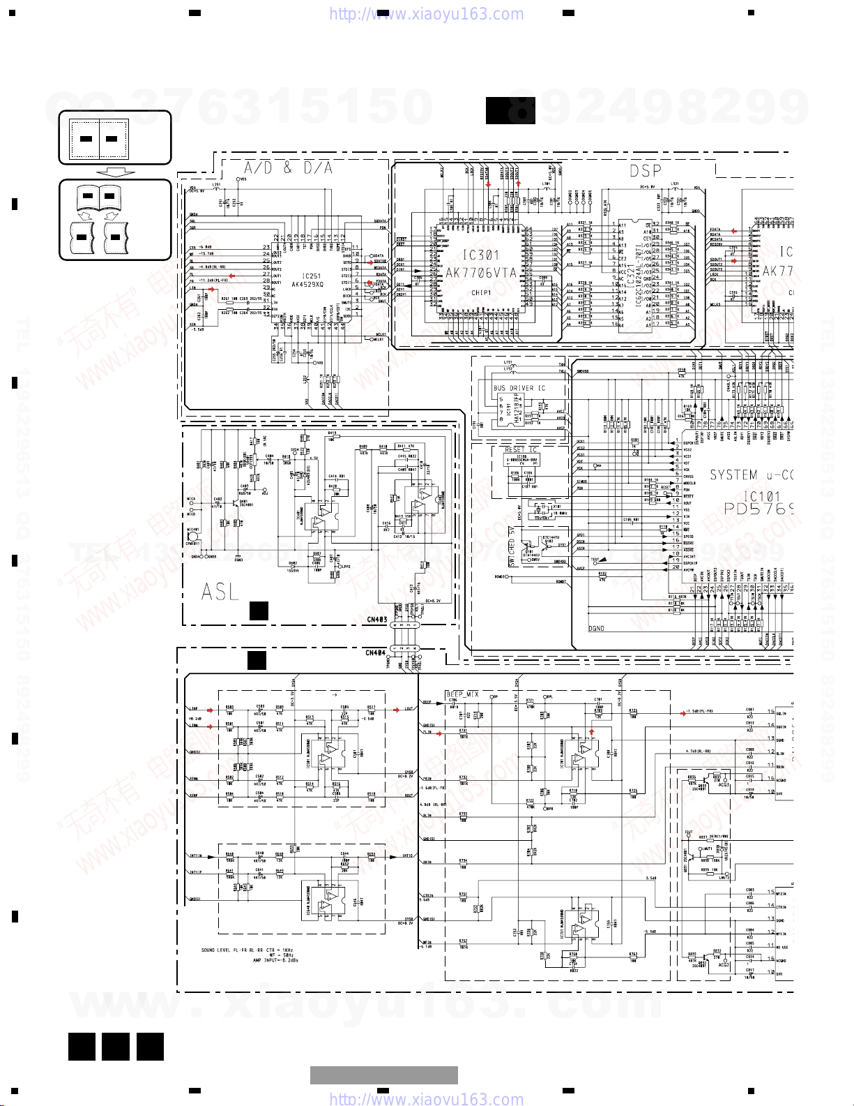
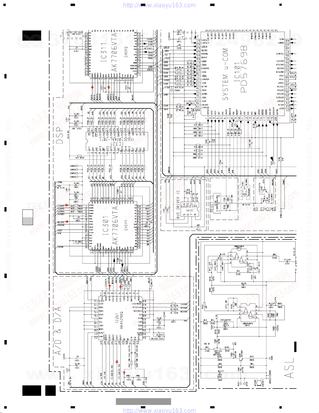
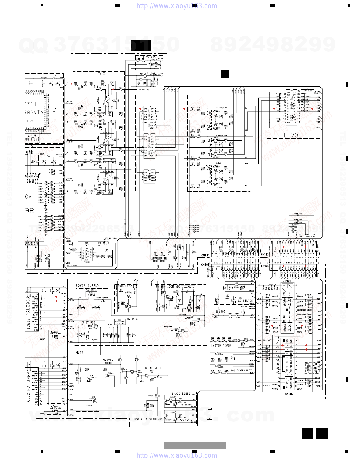
3.1 BLOCK DIAGRAM ...............................................6
3.2 SCHEMATIC DIAGRAM(GUIDE PAGE) ..............8
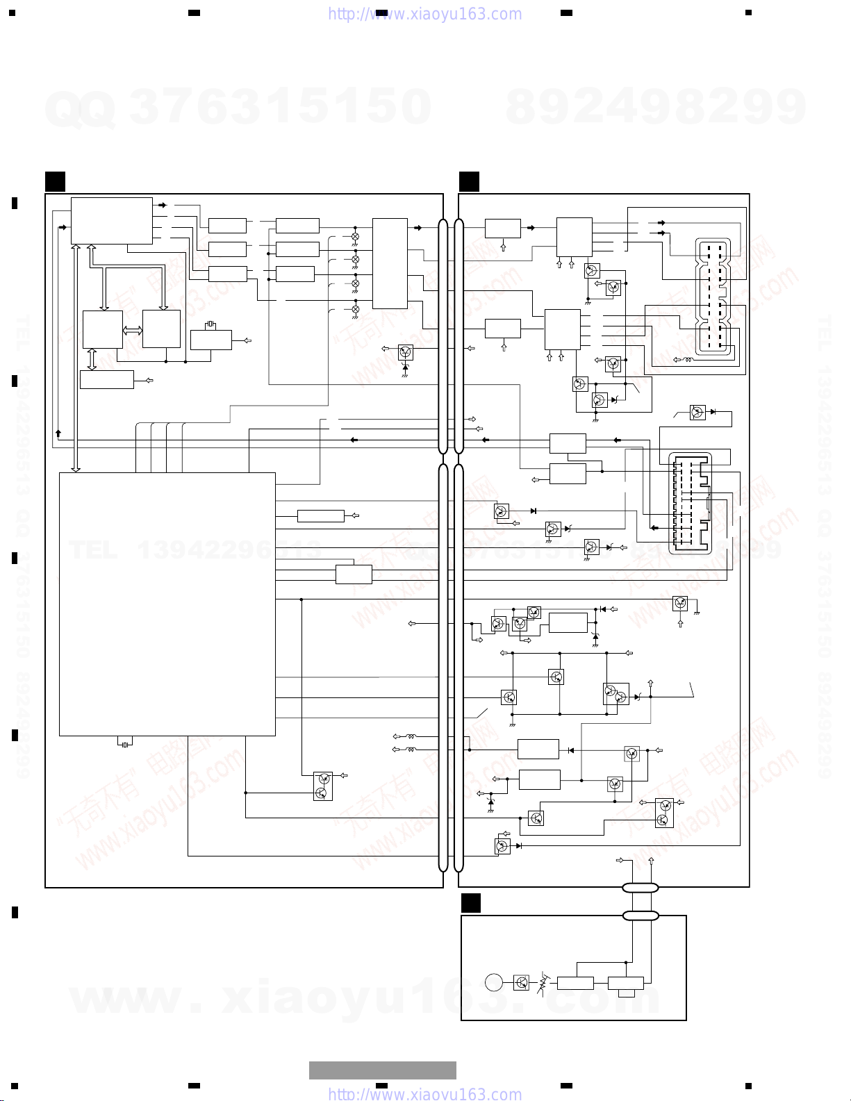
4. PCB CONNECTION DIAGRAM................................14
4.1 DSP UNIT...........................................................14
4.2 AMP ASSY.........................................................18
4.3 ASL UNIT...........................................................22
5. ELECTRICAL PARTS LIST........................................23
6. ADJUSTMENT.........................................................28
7. GENERAL INFORMATION.......................................30
7.1 DIAGNOSIS .......................................................30
7.1.1 DISASSEMBLY.........................................30
7.1.2 CONNECTOR FUNCTION DESCRIPTION ......32
7.1.3 THE METHOD OF DISTINGUISHING DEFECTIVE
DSP IC(IC301 OR IC311) DURING DSP ERROR .....33
7.2 IC ........................................................................35
7.3 EXPLANATION...................................................40
7.3.1 SYSTEM BLOCK DIAGRAM.....................40
7.3.2 OPERATIONAL FLOW CHART .................41
8. OPERATIONS...........................................................41
1. SPECIFICATIONS
Power source . . . . . . . . . . . . .13.2±0.1V(10.5-16.0V)
Grounding . . . . . . . . . . . . . . . .Negative type
Backup current . . . . . . . . . . . .0.3mA or less
Dimensions . . . . . . . . . . . . . . .235mm(W)x51mm(H)x128mm(D)
Weight . . . . . . . . . . . . . . . . . . .1348g
Maximum output power . . . .22W or more(Front)
11W or more(Center)
22W or more(Rear)
35W or more(Woofer)