
i91626
TABLE OF CONTENTS
Page
SAFETY PRECAUTIONS 1...................................................
DESCRIPTION 2............................................................
UNPACKING 2..........................................................
INSTALLATION 3............................................................
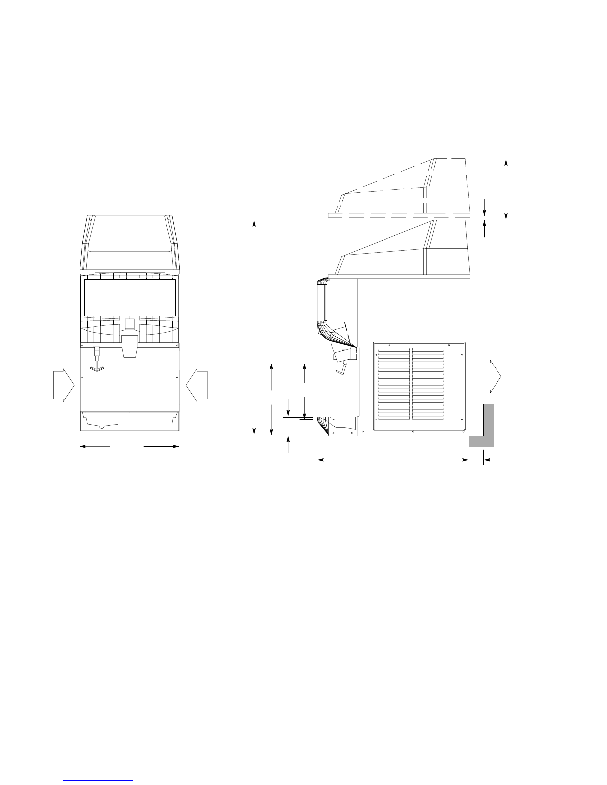
LOCATION 3............................................................
PLUMBING 3...........................................................
ELECTRICAL 3.........................................................
BEVERAGE SYSTEM 7..................................................
INSTALLATION 7......................................................
START UP 7............................................................
OPERATING INSTRUCTIONS 9...............................................
MAINTENANCE 13...........................................................
CLEANING INSTRUCTIONS 13...........................................
ICEMAKER SECTION 13.................................................
DISPENSER SECTION 14...............................................
BEVERAGE SYSTEM 14..................................................
MAINTENANCE AND ADJUSTMENTS 16.......................................
THERMOSTAT ALTITUDE ADJUSTMENT 16................................
BIN STAT 16............................................................
ICE PRODUCTION ADJUSTMENT 16......................................
CLEARING EVAPORATOR FREEZE-UP 16.................................
SERVICE PROCEDURES 17..............................................
HIGH PRESSURE CONTROL 17..........................................
BIN THERMOSTAT 17...................................................
CONDENSER (AIR COOLED) 18.........................................
TROUBLESHOOTING GUIDE 23...............................................
WARRANTY 37..............................................................
LIST OF FIGURES
FIGURE 1. SID 350 / 35S 4...............................................
FIGURE 2. SID 350 / 35S-B 5.............................................
FIGURE 3. MOUNTING TEMPLATE SID 350A/35, SID 350W/35,
SID 350A/35S-B, SID 350W / 35S-B 6......................................
FIGURE 4. BEVERAGE SYSTEM SCHEMATIC “-B”MODELS 8..............
FIGURE 5. SID 350/35 115/1/ 60 HZ SCHEMATIC 10.........................
FIGURE 6. SID 350/35 115/1/60 HZ WIRING 11.............................
FIGURE 7. REFRIGERATION SCHEMATIC 12...............................
FIGURE 8. SERVICE PARTS LIST CONDENSING UNIT 34...................
FIGURE 9. CABINET ASSEMBLY EXPLODED VIEW AND SERVICE PARTS 35.
FIGURE 10. SOLENOID ASSEMBLY - EXPLODED VIEW & PARTS LIST 36.....