
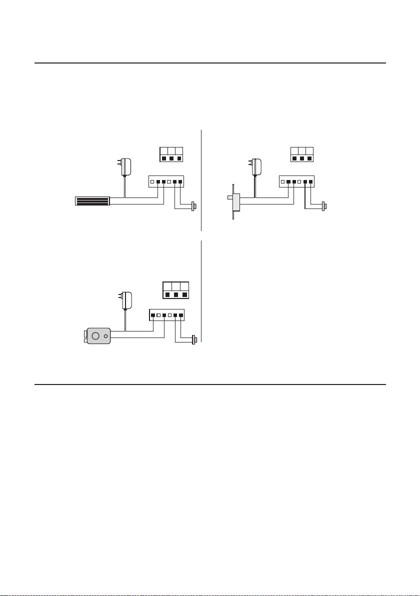
Make a master card
Set the DIP switch to 100, then long-press the switch for 2 seconds
to hear the beep sound every second, which enter the recording
management card mode, swipe a new IC card, and the master card
will be successfully make after a long beep sound
Delete a IC card or key tag
Set the DIP switch to 010, then long-press the switch for 2 seconds
to hear a beep sound. Swipe a user card or key tag to be cleared
within 10 seconds. If you hear three short beeps, the clearing is
successful.
Format all the IC cards or key tags
Set the DIP switch to 001, then press the switch for 2 seconds, and
then hear a beep sound to start formatting. After 5 seconds, you
will hear a beep sound again, all master cards and user cards are
cleared, and formatting is completed.
Add or delete a user card
Swipe the master card, will hear a beep every second, and swipe a
new user card within 60 seconds, hear a long beep again and enter
successfully ; then swipe an old user card, hear a short beep three
times, delete it successfully, and finally swipe the master card to
exit. It can support up to 2990 user cards.
Using IC card encryption mode (password fixed)
The DIP switch is set to 000. Press the DIP switch for 2 seconds
and then touch it lightly. After hearing a sound, the setting is
completed.Use IC card encryption mode, then when swiping a card
to unlock, IC card to have the corresponding password.This
function is used to prevent others from copying IC CARDS.
Use IC card without encryption mode
The DIP switch is set to 111. Press the DIP switch for 2 seconds
and then touch the switch. After hearing a sound, the setting is
completed.Use IC card not to encrypt mode, then when swiping a
card to unlock, as long as the corresponding IC card number can
unlock. After others can copy IC card by used copy card to unlock.
-3-