
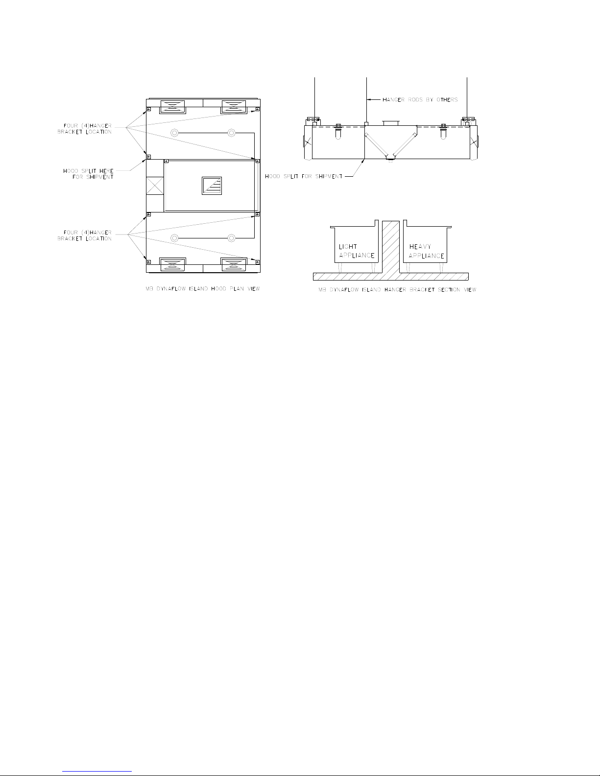
3
Heated and/or cooled fresh air ducting is connected to the supply duct collar(s) on the top, front of the hood. The fresh air
enters the fire damper in each supply duct connection and then discharges into the Dynaflow plenum. Within the plenum
the fresh air is routed to three (3) regions within the boundaries of the appliances.
Three Fresh Air Boundary Regions
1. Appliance Region: Fresh air discharges down through a full length S/S perforated panel, creating an air curtain
around the perimeter of the hood within the boundary of the kitchen appliances for excellent smoke capture with
maximum grease extraction and to reduce each appliance net exhaust requirement.
2. Chef Region: Fresh air discharges down through a full length S/S perforated panel towards the chef for a more
comfortable work environment in front of the hood.
3. Kitchen Ambient Region: The horizontal fresh air discharges through a s/s perforated panel out the front of the hood
into the kitchen to provide the exact amount of air to balance the kitchen and ensure optimum capture
BLADE FULL CLOSED
HOOD CANOPY
END VIEW
BLADE FULL OPEN
HOOD CANOPY
END VIEW
BLADE HALF OPEN
HOOD CANOPY
END VIEW
3
12 21
3
21
3
1 Appliance Region Chef Region2 Kitchen Ambient Region3
Internal Blade (IB)
Comfort Tuning Blade(CTB)
The internal blade (IB) is adjusted to direct fresh air between the Kitchen Ambient (3) Region, the Appliance (1) Region,
and Chef (2) Region. The Comfort Tuning Blade (CTB) is adjusted to direct fresh air between the Appliance (1) Region
and the Chef (2) Region. The complete kitchen ventilation system is always balanced. The IB and CTB are adjustable
every 24” (610mm) along the length of the Dynaflow hood to match the appliances underneath. Dynaflow operates with
the lowest minimum exhaust. After your kitchen is complete, appliances can be Relocated, Added, or Removed from
under the hood while maintaining maximum capture and chef comfort within the commercial kitchen.
Standard Dynaflow MB hood Specification
The unit casing shall be a minimum 18 GA. stainless steel, with No. 4 finish on all exposed surfaces. The hood shall include UL/ULC
listed grease filters mounted in an integral stainless steel rack inclined at 45 degrees. The filter rack shall include a full length stainless
steel grease gutter and grease cup.
The optional exhaust fire damper shall be an arrangement "D", butterfly type, constructed of stainless steel with blade and edge seals.
The fire damper shall be activated by a fusible link and dead weight arrangement.
The Dynaflow plenum provides all the fresh air required for the commercial kitchen. The fresh air is routed to three (3) regions within
the boundaries of the appliances. Each region includes an aerodynamically designed s/s perforated discharge panel.
The first (1) region discharges through a full length s/s panel located at the bottom of the Dynaflow plenum. Fresh air is directed through
the Comfort Tuning Blade (CTB) towards the appliances providing maximum exhaust air reduction. The second (2) Region discharges
through a full length s/s angular panel located at the bottom front of the Dynaflow plenum. The fresh air is directed towards the chef to
provide a more comfortable work environment in front of the hood. The third (3) region provides horizontal discharge of fresh air
through a s/s perforated panel out the front of the hood into the kitchen. The third region provides the exact amount of fresh air to
balance the kitchen and ensure optimum capture.
The s/s front discharge shall include multiple s/s perforated panels for the full length of the hood. A manually operated Internal Blade
(IB) damper shall be located behind each front s/s discharge panel. The CTB and IB dampers are field adjustable through the lower s/s
discharge panel. The hood shall have ______ incandescent/fluorescent/recessed/incandescent/LED lights evenly spaced along the length
of the hood. Optional Sideflow right and/or left MJ blower assemblies are available.
Fresh Air Regions
i
ure 3