
Startco Engineering Ltd. Page 1
SE-330AU Neutral-Earthing-Resistor Monitor Rev. 0
Pub. SE-330AU-M, May 16, 2007
1. GENERAL
1.1 MODERN RESISTANCE-EARTHED SYSTEMS
A high-resistance-earthed system uses a neutral-
earthing resistor (NER) with a low let-through current to
limit earth-fault current. High-resistance earthing is
gaining popularity because an earth-fault flash hazard
exists in low-resistance or solid-earthed systems and an
earth-fault can result in substantial point-of-fault damage.
High-resistance earthing eliminates these problems and
modern earth-fault protection operates reliably at these
levels. Furthermore, the probability of an arc-flash
incident is significantly reduced in a high-resistance NER
system.
NER selection depends on system charging current.
System charging current is the capacitive current that
flows to earth when a bolted earth fault occurs. This
current can be calculated or measured. For small systems,
the magnitude of charging current is typically ½ A per
1,000 kVA on low-voltage systems and 1 A per
1,000 kVA on medium-voltage systems.
Choose an NER with a let-through current larger than
the system charging current. Set the pick-up current of
earth-fault devices at or below 10% of the NER let-
through current for systems up to 1.1 KV and 20% of the
NER let through current for systems above 1.1 KV.
Use earth-fault devices with a definite-time characteristic
to achieve time coordination. Use the same pick-up current
for all earth-fault devices—this value must be larger than
the charging current of the largest feeder. Select an NER
with a let-through current between five and ten times the
pick-up current of the earth-fault devices.
Do not use an earthing transformer with a low-voltage
resistor:
•The combined cost of a transformer and a low-
voltage resistor is more than the cost of a resistor
rated for line-to-neutral voltage.
•A transformer saturated by an earth fault through a
rectifier can make earth-fault protection inoperative.
•Transformer inrush current up to twelve times rated
current can cause an earth-fault voltage larger than
expected.
•A parallel transformer winding makes it difficult to
monitor NER continuity.
•A transformer can provide the inductance necessary
to cause ferroresonance if the NER opens.
Following these guidelines will reduce the flash hazard,
reduce point-of-fault damage, achieve reliable earth-fault
protection, and ensure a stable system not subject to
ferroresonance.
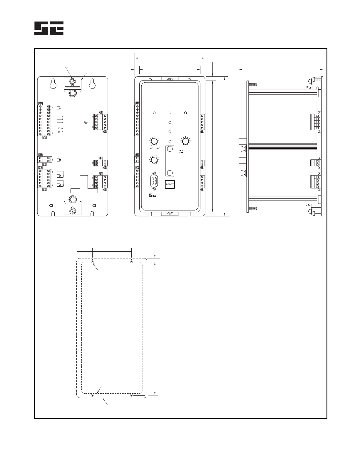
1.2 SE-330AU NER MONITORING
The SE-330AU is a microprocessor-based neutral-
earthing-resistor monitor that detects NER failures and
earth faults in resistance-earthed systems. The SE-330AU
measures NER resistance, NER current, and transformer
or generator neutral-to-earth voltage. The components
required to monitor an NER are an SE-330AU, an ER-series
sensing resistor, and a current transformer (CT).
The SE-330AU continuously measures NER resistance
in an unfaulted system, and it will trip on resistor fault if
NER resistance varies from its calibrated value. When an
earth fault occurs, voltage is present on the neutral and
NER current will flow if the NER is healthy. The
SE-330AU will trip on earth fault if fault current exceeds
the EF TRIP LEVEL setting for an interval greater than
the EF TRIP TIME setting. However, if the NER fails
open during an earth fault, it is possible for fault
resistance to satisfy the NER resistance measurement. To
detect this double-fault condition, the SE-330AU
measures neutral voltage. If neutral voltage exceeds the
VNTRIP LEVEL setting, and if NER current is less than
5% of the CT rating, the SE-330AU will trip on resistor
fault. If the resistor-fault circuit is tripped and the neutral
voltage exceeds the VNTRIP LEVEL setting for an
interval greater than the EF TRIP TIME setting, the earth-
fault circuit will also trip.
Earth-fault current is sensed by a sensitive CT (EFCT-x
or SE-CS30-x). The trip level of the earth-fault circuit is
adjustable from 0.125 to 5 A for the EFCT-x and 0.75 to
30 A for the SE-CS30-x. Trip time is adjustable from 0.1
to 0.5 seconds. Open-CT detection is provided with a
fixed 2-second time delay.
The SE-330AU has four output relays. Relay K1 is the
trip relay. Relays K2 and K3 provide earth-fault and
resistor-fault indication. K4 is a solid-state relay that
provides UNIT HEALTHY indication. Relay K1
operates in the fail-safe mode for undervoltage
applications.
Additional features include LED trip indication, trip
memory, front-panel and remote reset, 4–20-mA analog
output, RS-232 local communications, and optional
network communications.
The SE-330AU is compatible with lockout earth-fault
protection devicesthe on line phase-to-earth resistance
added by coupling components must be above the
SE-330AU NER-failure-detection resistance.
2. OPERATION
2.1 SETTINGS
2.1.1 EF TRIP TIME
EF TRIP TIME (definite time) is adjustable from
0.1 to 0.5 seconds. Time-coordinated earth-fault protection
requires this setting to be longer than the trip times of
downstream earth-fault devices.