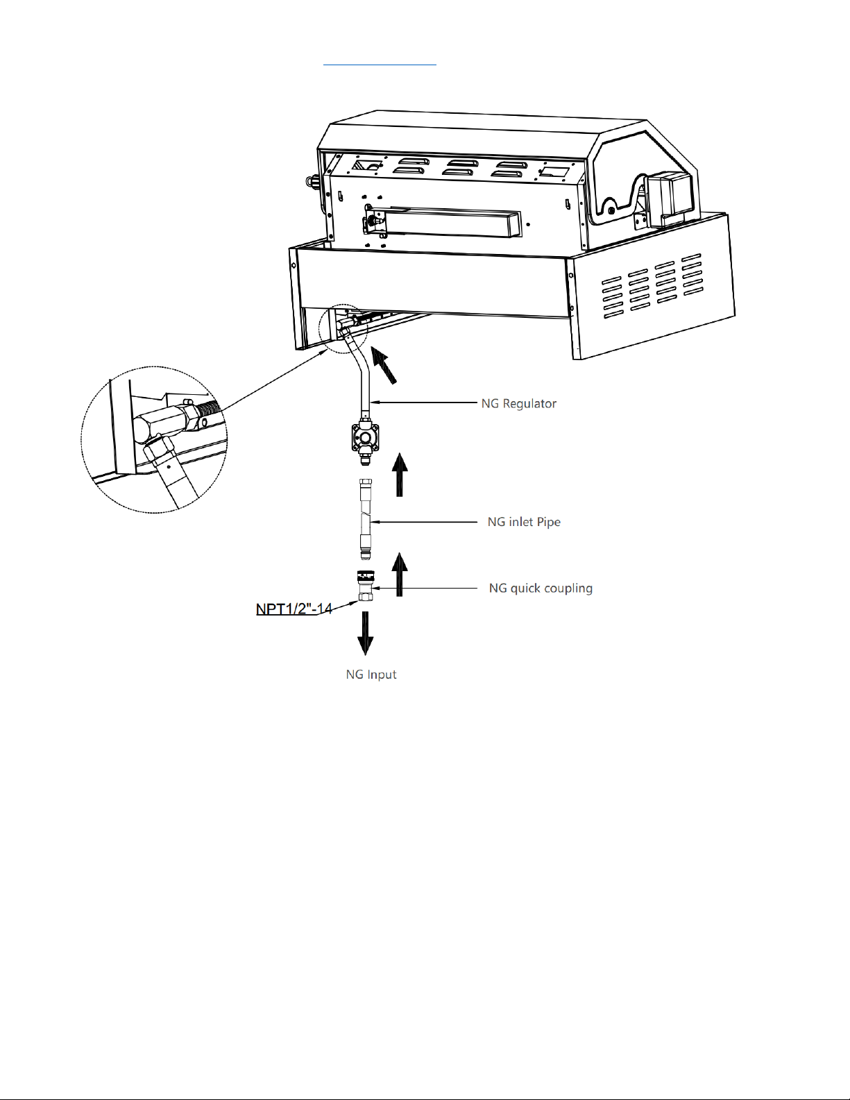
Step 4
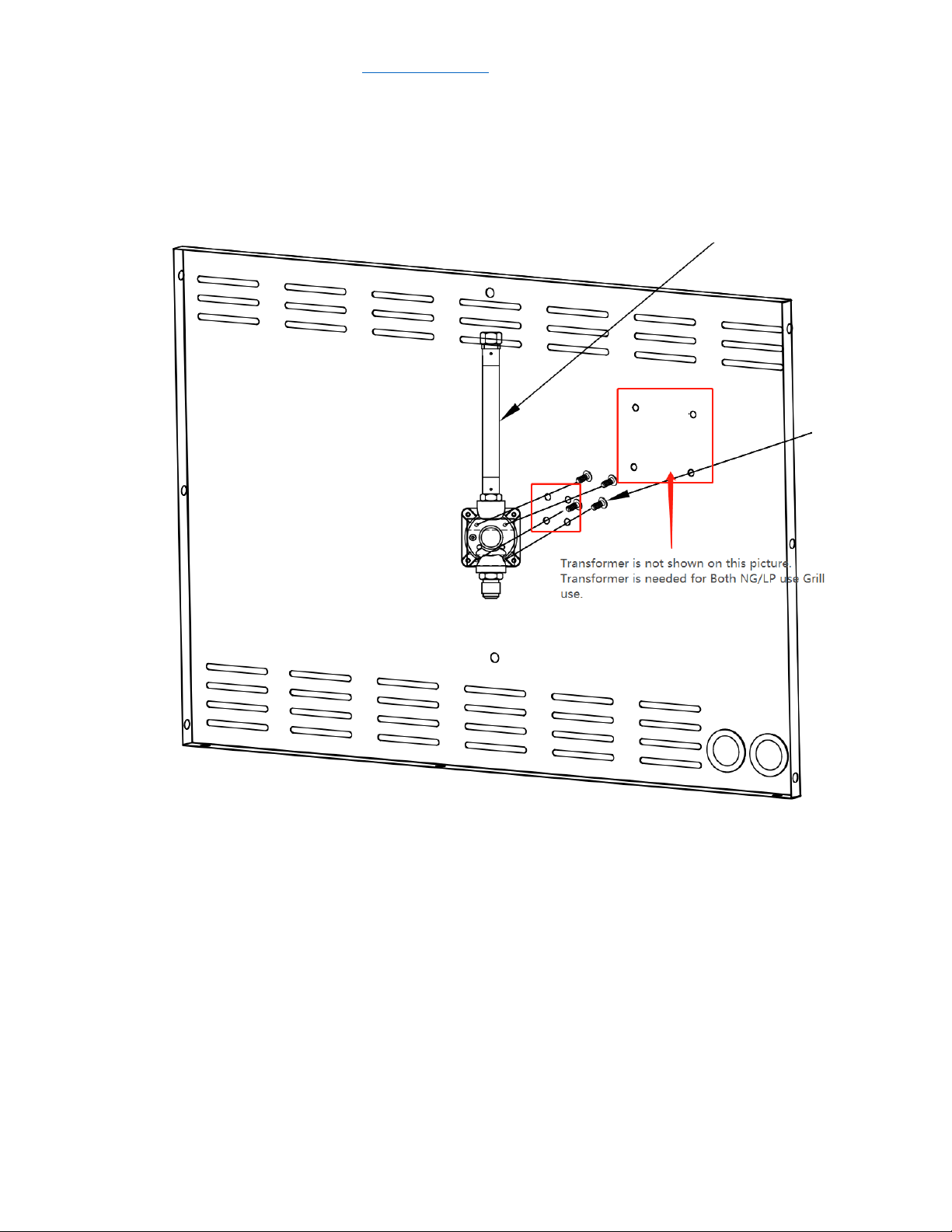
1. Regulator Installation: Use 4 pcs 5/32"*8 Philip's flat head screw to install NG regulator part to the back
panel of the cabinet;
2. Use Wrench to connect BBQ manifold with NG regulator;
3. Use Wrench to connect NG gas inlet pipe with NG regulator; Connect NG quick coupling to NG pipeline,
then connect NG inlet pipe with NG quick coupling.
4. NG gas inlet must be PNT 1/2”. Each connection needs to be tightened with wrench and do bubble test.
Please follow below procedures for small bubble test.
- Mix a small amount of dish soap into a large container of water;
- Make sure the gas is on;
- Using a cloth or sponge, wipe down the suspected area;
- If you see bubbles forming, that means you have a leak. Please disconnected the gas and check the
condition of the connection. INSTALLATION AND SERVICES MUST BE PERFORMED BY A QUALIFIED
INSTALLER.