
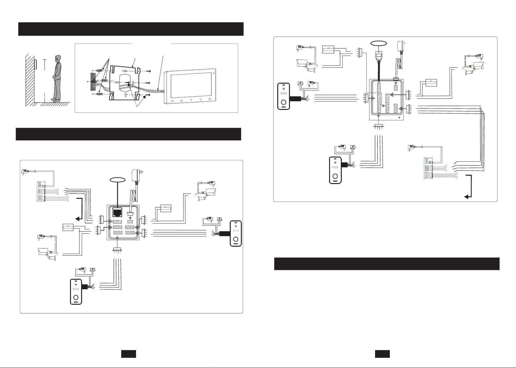
Description On The Indoor Monitor
1
2
34567
8
9
TF
10
11
12
Speaker
TFT display &
Touch screen 1. View visitor’s image displayed on the TFT screen.
2. Touch screen function.
Microphone
Sound from outdoor camera.
Transmit the voice to outdoor camera
Name Descriptions
Power LED
Network LED
8
USB Port To connect the USB mouse to the device.
TF card slot
TF card interface, the SD card maximum supports 128GB. If the SD card is
less than 64GB, the file system must be FAT32; and if the SD card is more
than 64GB, its file system must be exFAT. The card should be formatted
before using. And suggest that it’s better to use a TF card more than class 10
onto the device.
9
Monitoring, press the button to watch the outdoor doorbell and CCTV
camera images.
Transfer call, press the button transfer call to another indoor monitor.
1. Talk, press the button to activate conversation mode.
2. In standby mode, press this button to intercom call to another indoor
monitor.
Unlock, release the door lock.
Hang up, press this button to end conversation mode.
10
11
12
Transfer call
Monitoring
Talk
Unlock
Hang up
13
13 Power switch To turn on/turn off the monitor.
Note:
The back-light of each button will be on when user presses any button or some visitor calls on the
outdoor doorbell. The back-light of each button will be off if user doesn’t do any operate on the
device in 10 seconds.
Model: MZ-IP-V103W
Speaker
TFT display &
Touch screen 1. View visitor’s image displayed on the TFT screen.
2. Touch screen function.
Microphone
Sound from outdoor camera.
Transmit the voice to outdoor camera
Name Descriptions
8
USB Port To connect the USB mouse to the device.
TF card slot
TF card interface, the SD card maximum supports 128GB. If the SD card is
less than 64GB, the file system must be FAT32; and if the SD card is more
than 64GB, its file system must be exFAT. The card should be formatted
before using. And suggest that it’s better to use a TF card more than class 10
onto the device.
9
Monitoring, press the button to watch the outdoor doorbell and CCTV
camera images.
1. Talk, press the button to activate conversation mode.
2. In standby mode, press this button to intercom call to another indoor
monitor.
3. Transfer call, press and hold the button for about 3 seconds to transfer
call to another indoor monitor.
4. Hang up, press this button to end conversation mode.
Unlock, release the door lock.
Power switch To turn on/turn off the device.
13
45
6
7
8
9
2
USB
Model: MZ-IP-V142B
GB-8
GB-7