
4.0 Features Overview
Due to the dynamic nature of the product design, the information contained in this document is subject to change without notice. Viking Electronics, and its affiliates and/or subsidiaries
assume no responsibility for errors and omissions contained in this information. Revisions of this document or new editions of it may be issued to incorporate such changes.
See the Product Manual for complete installation and programming instructions.
Questions? Call Viking Product Support: 715-386-8666
K-1270-IP Quick Start Guide ZF303875 REV A
• Make sure the port is not in trunk mode
• Make sure port is capable of 100mbps full duplex
• Disable Spanning Tree Protocol (STP) or enable Portfast
3.0 Network Port Settings
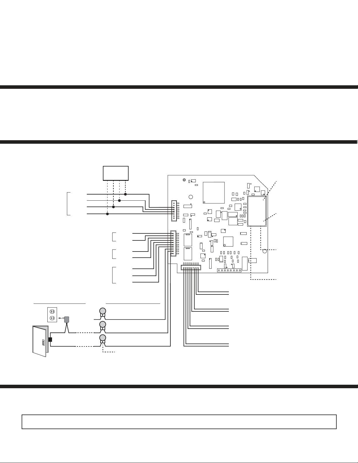
MAC:
18E80FXXXXXX
asdesaxtff
N.C.
- Black
+ Red
Green
Green
N.O.
COM.
N.C. (Gray)
N.O. (Yellow)
COM. (Blue)
Relay 1 Output Contacts
(2A@30VDC/ 250VAC max)
Relay 2 Output Contacts
(2A@30VDC/ 250VAC max)
Request for Exit
(REX) Input
3 Gel-Filled Butt
Connectors (included)
+ Red
- Black
Black
Black
- Black
+ Red
Speaker
LED
Microphone
Call Switch
MAC Address Label: The
MAC address is aunique
12 digit number used by
routers to send network
traffic to the correct IP
address.
PoE LAN Port 10/100,
PoE Class 2 (<6.5 Watts):
Connect to your LAN via
RJ45 plug and CAT5 or
greater twisted pair wire.
Yellow Network Status
LED: Lights steady to
indicate power and data
link. Blinks to indicate
network activity.
Green Unit Status LED
Rear (PCB) View of K-1270-IP
White
White
(Power typically not
required for gate controllers)
Doorstrike /
Magnetic Lock
120V AC
Connect to Optional
Doorstrike, Mag Lock,
Gate Controller, etc.
(not
connected)
12 VDC Power Output for
VE-LIGHT, etc.
(12VDC @ 50mA max)
Brown
Violet
White
- Black
+ Red
Green
White
Proximity Card
Reader (26 Bit
Wiegand Input)
Optional: Connect to an additional
Long Range RFID Receiver with 26
Bit Wiegand Output (Viking Model
PRX-3 or LRR-4 See DOD# 228
OR 226)
Optional
Long Range
RFID Receiver
Note: The gel-filled (water-tight) butt connectors are designed for insulation displacement on 19-26 gauge wire with a
maximum insulation of 0.082 inches. Cut off stripped wire ends before terminating.
2.0 Power Source
Select PoE Switch or PoE Injector that meets the following requirements:
1. IEEE 802.3af / 802.3at / 802.3bt compliant
2. Capable of providing at least 4 Watts (class 1)
Note: CAT5e (or higher) cable recommended