4. Maximum Ring Count (1-10 rings: factory default = 7 rings)
(1digit, 0-9) + ##7 ("0"= 10 rings) Example: o set the Maximum Ring Count to 8, come off-hook with the Program
Phone and enter "8##7". Two beeps will confirm a valid entry, three beeps will signify an error. Repeat this proce-
dure for each module.
3. Maximum Entry Phone Time (1-9 minutes: factory default = 2 minutes)
(1digit, 0-9) + ##6 ("0"=disabled) Example: To set the Maximum Entry Phone time limit to 3 minutes, come off-
hook with the Program Phone and enter "3##6". Entering "0##6" or just “##6” will disable the time limit. Two beeps
will confirm a valid entry, three beeps will signify an error. Repeat this procedure for each module.
2. Relay Activation Code (factory default = 6)
(1digit, 0-9) + ##4 Example: To set the door strike relay to activate with the code "0", come off-hook with the
Program Phone and enter "0##4". Two beeps will confirm a valid entry, three beeps will signify an error. Repeat this
procedure for each module.
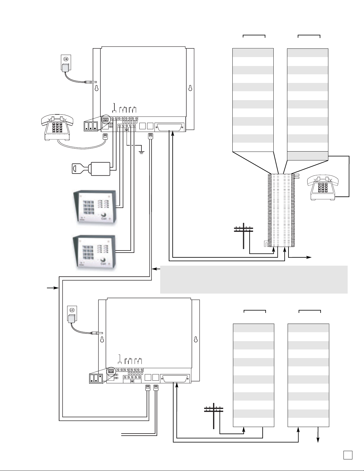
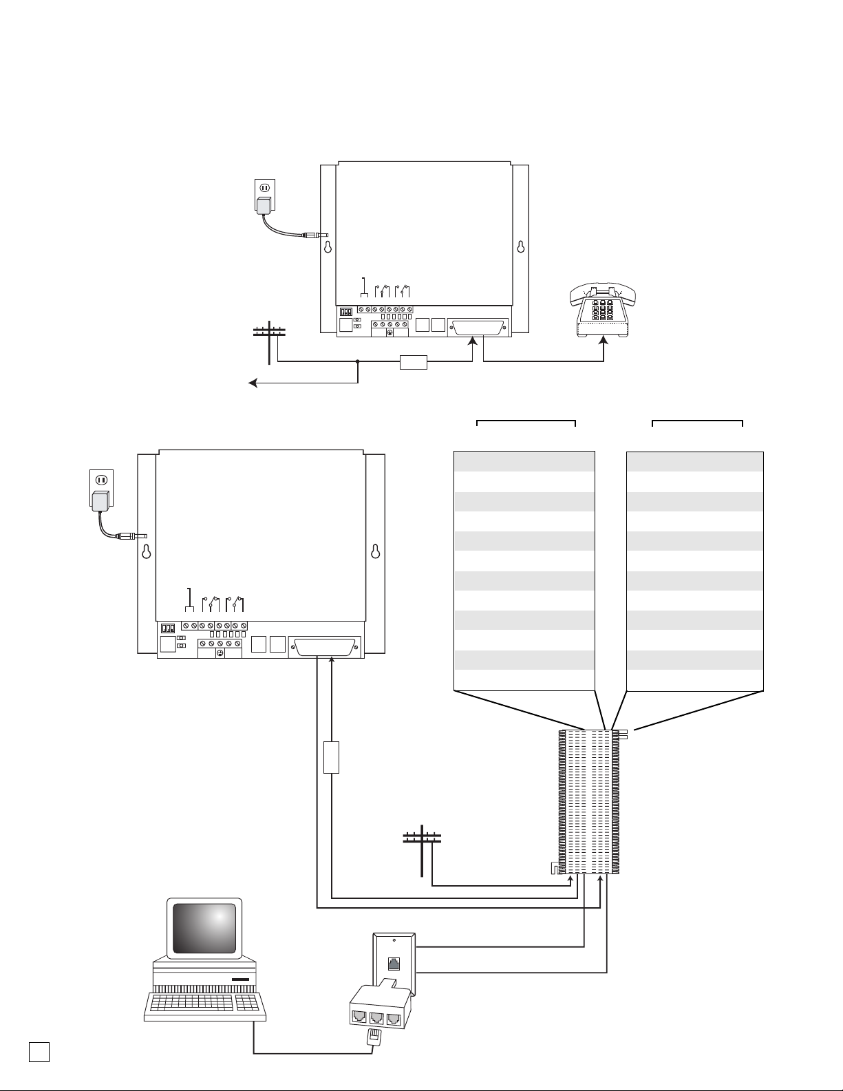
C. Master C-3000 Module Setup
The following setup procedures are performed only on the Master module (ID #1) in the C-3000 system. Come off-hook
with the Program Phone on the Master module, and program the following settings.
4. Clear All Keyless Entry Code Positions and Set Programming Features to Default (optional)
### Example: To clear all Keyless Entry code positions in the entire C-3000 system and return all programming
settings back to factory default, enter "###". Two beeps will confirm a valid entry, three beeps will signify an error.
Note: Be EXTREMELY careful with the use of this feature, as it will immediately erase ALL keyless entry codes in
the system, with no possibility for recovery. It is suggested that this feature be exercised when installing a new C-
3000 system, before any other programming is performed.
2. Set Master Keyless Entry Code (optional)
(4-6 digits, 0-9) + #00 -or- #00 alone to clear this position Example: To set the Master Keyless entry code to
"052069" you would come off-hook with the Program Phone and enter "052069#00.” Entering "#00" without any
leading digits will clear this position. Two beeps will confirm a valid entry, three beeps will signify an error.
Note: The entry codes should all be the same number of digits, either 4, 5 or 6.
3. Set Tenant Keyless Entry Codes (optional)
(4-6 digits, 0-9) + #01-#96 -or- #01-#96 alone to clear that position Example: To set the Tenant Keyless Entry code
for apartment "24" to "052069" you would come off-hook with the Program Phone and enter "052069#24.” Entering
"#01" through "#96" without any leading digits will clear the respective position. Two beeps will confirm a valid entry,
three beeps will signify an error. Note that there are 96 tenant keyless entry codes available regardless of how many
C-3000’s have been installed. For example, in an installation with just one C-3000, the first 12 keyless entry codes
corresponding to memory positions #01-#12 can each be individually assigned to one of the 12 apartments.
However, the remaining 84 keyless codes corresponding to memory position #13-#96 are still available and will be
functional if programmed, allowing for more than one keyless entry code per apartment or keyless codes specifically
assigned for maintenance personnel. It is important to carefully document any codes that are programmed so that
they can be cleared if required. Note: The entry codes should all be the same number of digits, either 4, 5 or 6.
1. Set Number of Modules
(1digit, 1-8) + ##8 Example: If the C-3000 system will consist of (4) modules, you would come off hook with the
programming phone and enter "4##8.” Two beeps will confirm a valid entry, three beeps will signify an error. This
value is factory preset to (1).
D. General C-3000 System Setup
The following procedures are to be performed on each module in the C-3000 system, one module at a time. Note that
while each module needs to be programmed separately, it is standard practice to make all of the following settings iden-
tical, for all modules. All four system setup programmable features are pre-programmed to factory defaults. If these
settings are acceptable, then there is no need for additional programming.
1. Relay Activation Time (.5 - 9 seconds: factory default = 5 seconds)
(1digit, 0-9) + ##3 ("1"=1 second, "0"=.5 second) Example: To set the door strike relay to activate for 8 seconds,
you would come off-hook on the Program Phone and enter "8##3". Two beeps will confirm a valid entry, three beeps
will signify an error. Repeat this process for each module.
6