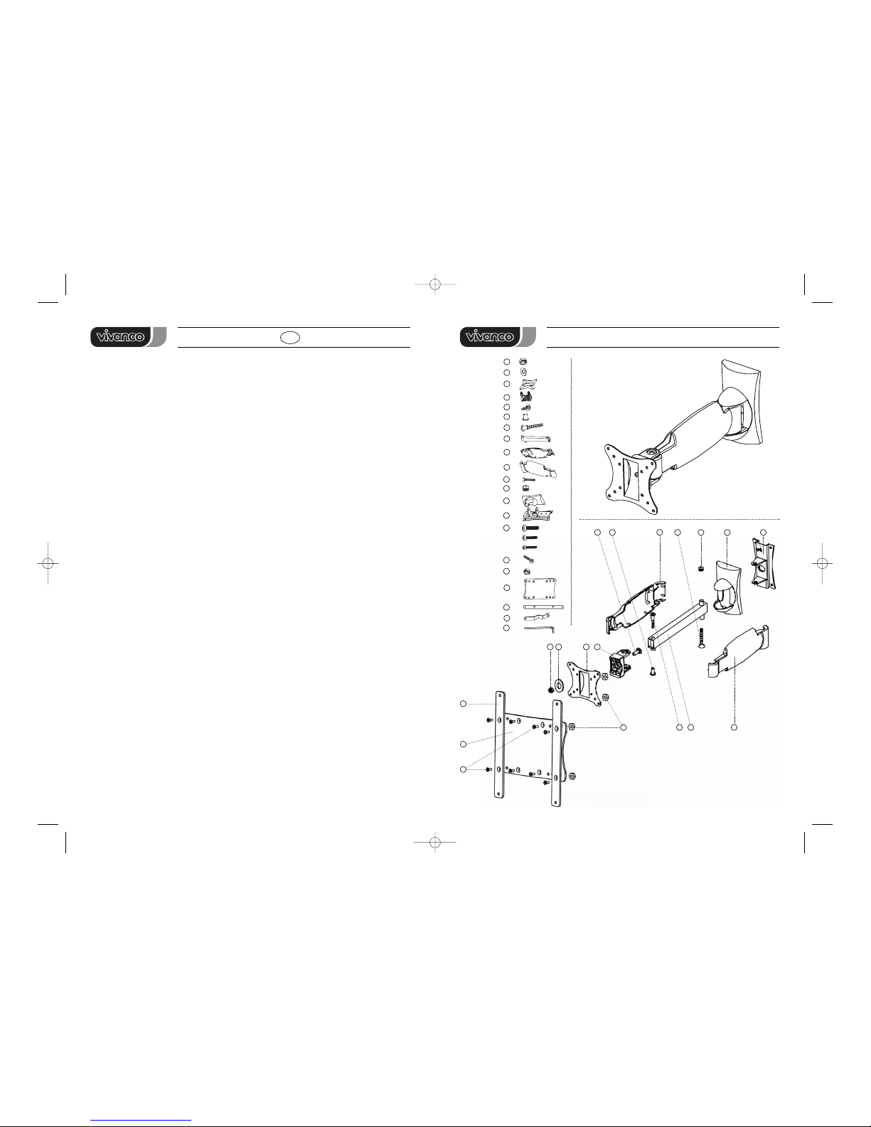
WM 2210 / WM 4020 Instruções de montagem
Suporte de parede para monitores LCD/TFT com diagonais de 10-22” (25-56cm)/10-40” (25-102cm).
Parabéns!
Com a compra do suporte de parede Vivanco fez a escolha certa.
Por favor conserve as instruções para efeitos posteriores.
Os produtos são destinados ao uso doméstico privado.
Uma montagem correcta é condição essencial para uma longa vida útil e uma boa funcionalidade dos
componentes. Siga p. f. as instruções seguintes.
Instruções de seguraça:
• Peso máximo suportado: 10/20 kg.
• O suporte deve ser montado exclusivamente na parede
• Antes iniciar a montagem, observar se o suporte contém algum defeito ou partes danificadas.
• De maneira alguma devem ser montados componentes defeituosos ou danificados.
Instruções de montagem:
• Antes da montagem: verificar onde se encontra a tomada eléctrica mais próxima.
• O material de fixação tem de ser adaptado às características da parede (material, espessura, estado), para
que se possa garantir a capacidade máxima de carga do suporte de parede. Por este motivo, o seu suporte
de parede é fornecido sem material de fixação. É favor consultar o comércio da especialidade, indicando
todos os dados mais importantes.
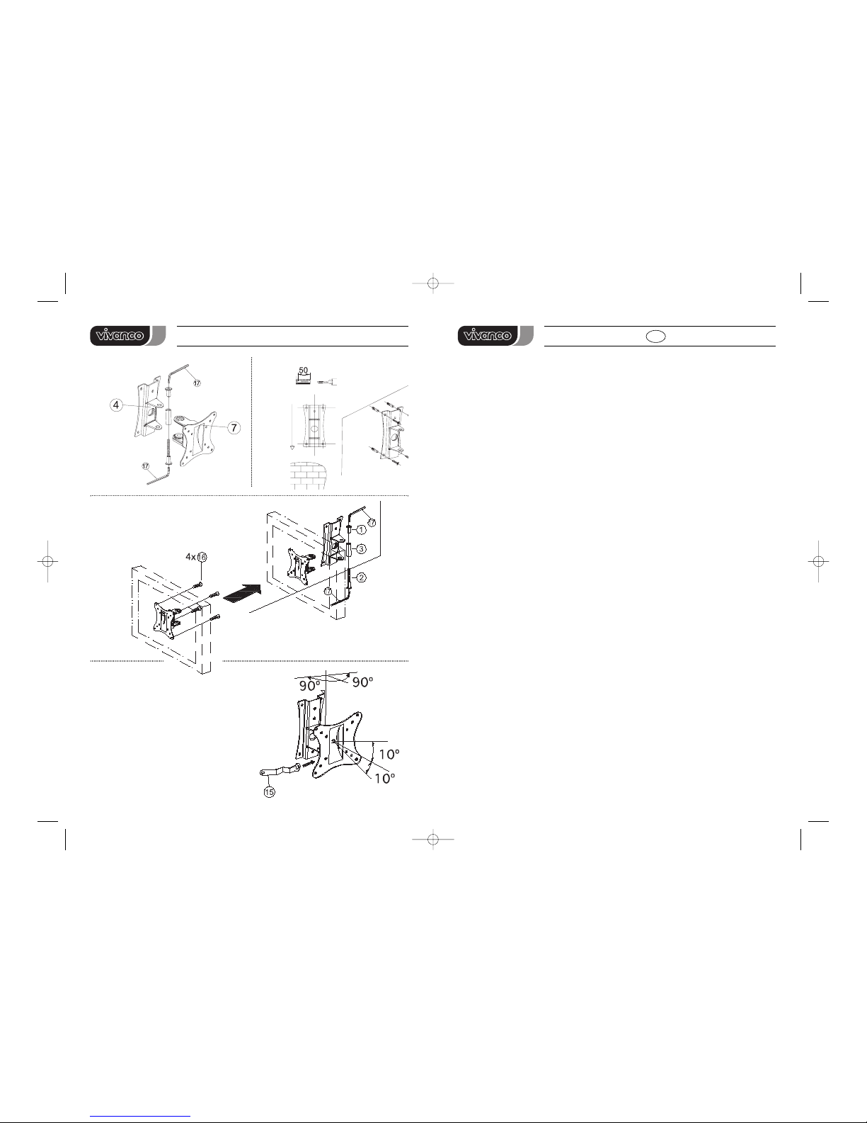
• O centro de gravidade do monitor deve ficar no meio da placa de suporte.
• O suporte deve ser fixado com o auxílio de um nível de bolha de ar, pois uma fixação num plano inclinado
reduz a sua estabilidade.
• Antes de colocar as tampas plásticas (WM 4020), fixar os cabos ligeiramente com fita-cola e verificar a
mobilidade.
• Para possibilitar a montagem dos apoios em diversos modelos de monitor são fornecidos vários parafusos.
Entre outros, são fornecidos em cada kit quatro parafusos de cabeça de cruzeta dos tamanhos M4x10 mm,
M5x10 mm, M6x12 mm (pos. 16). Verifique o tipo de orifícios de montagem instalado no seu monitor e
escolha os parafusos adequados para o aparelho.
• Atenção: certifique-se sempre que os parafusos são fixos em todo o seu comprimento nos orifícios
roscados do monitor e permanecem bem apertados. Caso contrário, terá que controlar se os paraf sos não
entram demasiado para dentro do aparelho, danificando eventualmente os componentes sensíveis do
monitor.
O suporte de parede não requer manutenção. No entanto, recomenda-se controlar de tempos em tempos,
todos os componentes, especialmente as fixações do suporte, verificando se existem partes danificadas.
Atenção: A firma Vivanco não assume qualquer responsabilidade por danos causados em conse-
quência de uma montagem incorrecta e uma utilização imprópria do suporte de parede.
P
WM 2210 / WM 4020
Instrukcja montażu
Uchwyt naścienny do mocowania monitorów LCD/TFT o przekątnej
10-22” (25-56cm)/
10-40” (25-102cm)
.
Serdecznie gratulujemy!
Nabywając uchwyt naścienny Vivanco, dokonali Państwo prawidłowego wyboru.
Prosimy zachowac te instrukcje do pózniejszego uzytku.
Produkty przeznaczone sa do prywatnego uzytku domowego.
Funkcjonalność i trwałość tego produktu zależą jednakże od prawidłowego montażu,
prosimy zatem koniecznie przestrzegać podanych poniżej wskazówek.
Wskazówki dotyczące bezpieczeństwa:
•
Maksymalna obciążalność:
10/20
kg.
•
Uchwyt nadaje sie wylacznie do montowania na scianie.
•
Przed montażem należy koniecznie sprawdzić, czy uchwyt nie jest uszkodzony.
•
Uszkodzonych elementów nie wolno w żadnym wypadku montować!
Wskazówki montażowe:
•
Przed montażem należy sprawdzić, gdzie znajduje się najbliższe gniazdko.
•
Materiał montażowy musi być dostosowany do właściwości ściany (materiał, grubość, stan), aby można było
zagwarantować maks. nośność uchwytu ściennego. Z tego powodu uchwyt ścienny jest dostarczany bez
materiału montażowego. Proszę zasięgnąć rady specjalisty podając mu najważniejsze dane.
•
Punkt ciężkości monitora musi znajdować się dokładnie pośrodku podstawy nośnej
•
Do montażu należy użyć poziomicy, gdyż w przypadku nierówegno umocowania uchwytu jego obciążalność
się zmniejsza.
•
Przed założeniem okryć plastikowych
(WM 4020)
kabel należy lekko umocować przy pomocy taśmy klejącej i
sprawdzić, czy daje się przesunąć.
•
Zestaw zawiera rozmaite śruby przeznaczone do mocowania uchwytu na różnych modelach telewizorów, m.in.
po cztery śruby z łbem krzyżakowym o rozmiarach M4x10 mm, 5x10 mm, M6x12 mm (poz. 16). Proszę
sprawdzić, jakie otwory montażowe posiada Państwa model i wybrać cztery pasujące śruby.
•
Uwaga! Należy koniecznie zwrócić uwagę, aby śruby były głęboko wkręcone w otwory gwintowe zna dujące
się na obudowie telewizora i dobrze dokręcone. Z drugiej strony jednak należy uważać, aby nie wkręcać ich
zbyt głęboko, gdyż mogłyby uszkodzić ważne komponenty znajdujące się wewnątrz telewizora.
Uchwyt ścienny nie wymaga zabiegów konserwacyjnych. Mimo to, radzimy od czasu do czasu przeprowadzić
kontrolę wizualną pod kątem ewentualnych uszkodzeń.
Uwaga! Vivanco nie odpowiada za szkody spowodowane niewłaściwym montażem lub nieprawidłowym
użytkowaniem.
PL