
Part Number 550-110-641/0605
4
PFG SerieS 7 GaS-Fired Water Boiler — Boiler Manual
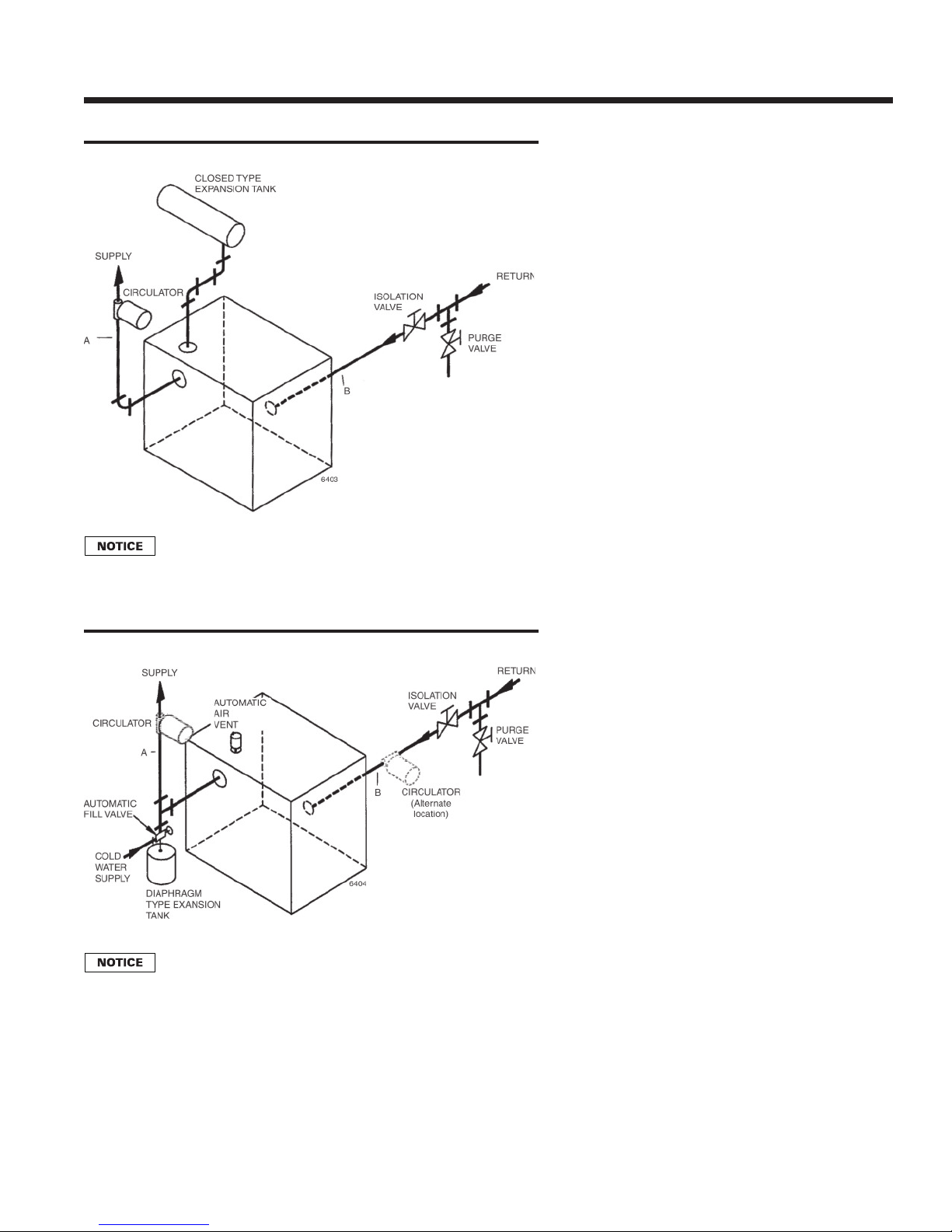
Chimney or vent requirements
(also refer to Breaching erection, Page 12)
Venting must be installed according to Part 7,Venting of
Equipment, of National Fuel Gas Code, ANSI Z223.1-
latest edition and applicable building codes. Canadian
installations must comply with CAN/CSA B149.1 or .2
Installation Codes.
Minimum chimney or vent sizes are on page 22.A chim-
ney or vent without a listed cap should extend at least
3 feet above the highest point where it passes through
a roof of a building and at least 2 feet higher than any
portion of a building within a horizontal distance of 10
feet. A chimney or vent must not extend less than those
distances stated above.
A lined chimney is preferred and must be used when
required by federal, provincial, territorial, state or local
building codes. Vitreous tile linings with joints which
prevent the retention of moisture and linings made
of corrosion-resistant materials are best. Advice for
flue connections and chimney linings can usually be
obtained from the local gas utility. Type “B” double
wall metal vent pipe or single wall vent pipe may be
used as a liner.
Cold masonry chimneys, also known as outside chim-
neys, typically have one or more walls exposed to
outside air.
When any atmospheric gas-fired boiler with automatic
vent damper is vented through this type of chimney, the
potential exists for condensation to occur. Condensation
can damage a masonry chimney.
Weil-McLain recommends the following to prevent
possible damage:
1. Line chimney with corrosion-resistant metal liner such as
AL29-4C® single wall stainless steel or B-vent. Size liner
per National Fuel Code ANSI Z223.1-latest edition.
2. Provide drain trap to remove any condensate.
Inspect existing chimney or vent before
installing boiler. Failure to clean or replace
perforated pipe or tile lining will cause
severe injury or death.
Do not alter boiler draft hood or place
any obstruction or non-approved damper
in the breeching of vent system. CSA
certification becomes void. Flue gas
spillage and carbon monoxide emissions
will occur causing severe personal injury
or death.
Where two or more gas appliances vent into a common
chimney or vent, equivalent area should be at least equal
to the area of the vent outlet on the largest appliance
plus 50 percent of the area of the vent outlet on the ad-
ditional appliance(s).
When removing boiler from
common venting system
Failure to follow all instructions listed
below can cause flue gas spillage and
carbon monoxide emissions, resulting in
severe personal injury, death or substantial
property damage.
At the time of removal of an existing boiler, the following
steps shall be followed with each appliance remaining
connected to the common venting system placed in op-
eration,while the other appliances remaining connected
to the common venting system are not in operation.
a. Seal any unused openings in the common venting sys-
tem.
b. Visually inspect the venting system for proper size and
horizontal pitch and determine there is no blockage or
restriction,leakage, corrosion and other deficiencies which
could cause an unsafe condition.
c. Insofar as is practical,close all building doors and windows
and all doors between the space in which the appliances
remaining connected to the common venting system are
located and other spaces of the building. Turn on clothes
dryers and any appliance not connected to the common
venting system. Turn on any exhaust fans, such as range
hoods and bathroom exhausts, so they will operate at
maximum speed. Do not operate a summer exhaust fan.
Close fireplace dampers.
d. Place in operation the appliance being inspected. Follow
the lighting instructions. Adjust thermostat so appliance
will operate continuously.
e. Test for spillage at the draft hood relief opening after
5 minutes of main burner operation. Use the flame of
a match or candle, or smoke from a cigarette, cigar or
pipe.
f. After it has been determined that each appliance remain-
ing connected to the common venting system properly
vents when tested as outlined above, return doors, win-
dows, exhaust fans, fireplace dampers, and any other gas-
burning appliance to their previous conditions of use.
g. Any improper operation of the common venting system
should be corrected so the installation conforms with the
National Fuel Gas Code,ANSI Z223.1-latest edition.When
resizing any portion of the common venting system, the
common venting system should be resized to approach
the minimum size as determined using the appropriate
tables in Part 11 in the National Fuel Gas Code, ANSI
Z223.1-latest edition.
Canadian installations must comply with CAN/CSA
B149.1 or B149.2 Installation Code.