SERVICE Whirlpool Europe 10.10.1995 / Page 4
Customer Service Doc. No: 4812 712 11084
Spare part list
Model AWG 751
Service No. 853775153000
Version 853775153000
Pos. No. 12NC Code Description
001 0 4819 440 19578 Cabinet
004 0 4819 462 79386 Lid
011 0 4819 462 48157 Foot adjustable
013 0 4819 310 38995 Foot
021 0 4819 453 19373 Front
024 0 4819 440 19611 Panel, rear
025 0 4819 404 78667 Holder
030 0 4819 440 19674 Lid
034 2 4819 492 68458 Fastener
034 3 4819 532 68243 Bushing
040 0 4819 417 19232 Hinge
053 0 4819 440 19566 Plinth
061 0 4819 466 89118 Counter weight top
061 1 4819 466 89078 Counter weight bottom
080 0 4819 492 68215 Spring
081 0 4812 463 48002 Friction plate
083 1 4819 466 88986 Plate tub
084 0 4819 462 48049 Silent block
086 0 4819 401 18607 Clamp bushing
110 0 4819 498 69247 Handle
130 0 4819 401 18538 Hook
130 1 4819 535 38062 Shaft Hooh
131 0 4819 404 48484 Lock plate
141 0 4819 450 69519 Door glass
143 0 4819 532 28159 Front,panel
144 0 4819 532 28161 Frame,door glas
144 1 4819 466 88781 Plate porthole frame
190 0 4819 466 69828 Door bellow
190 1 4819 492 38119 Strap porthole seal
190 2 4819 492 68515 Strap porthole seal
200 0 4819 418 18294 Tub
201 0 4819 418 78808 Bottom tub
201 1 4819 532 28209 Strap Tub
220 0 4819 418 18284 Drum + cross piece assy
271 0 4819 358 18138 Belt
272 0 4819 528 88075 Pulley Drum
292 0 4819 466 69797 Gasket
301 0 4819 453 19602 Control panel
303 0 4819 498 78076 Handle, drawer
331 0 4819 413 78658 Knob,timer
332 0 4819 410 28462 Button
341 0 4819 412 58478 Index,programm
401 0 4819 361 58119 Motor
401 1 4819 310 88529 Brush,carbon not shown
421 0 4819 121 18245 Interf.filter
430 0 4819 360 18189 Pump,draining
432 0 4819 360 78312 Pump body
451 0 4819 259 28801 Heating element
490 0 4819 321 18161 Cable,mains
491 0 4819 290 68166 Connect.block
Pos. No. 12NC Code Description
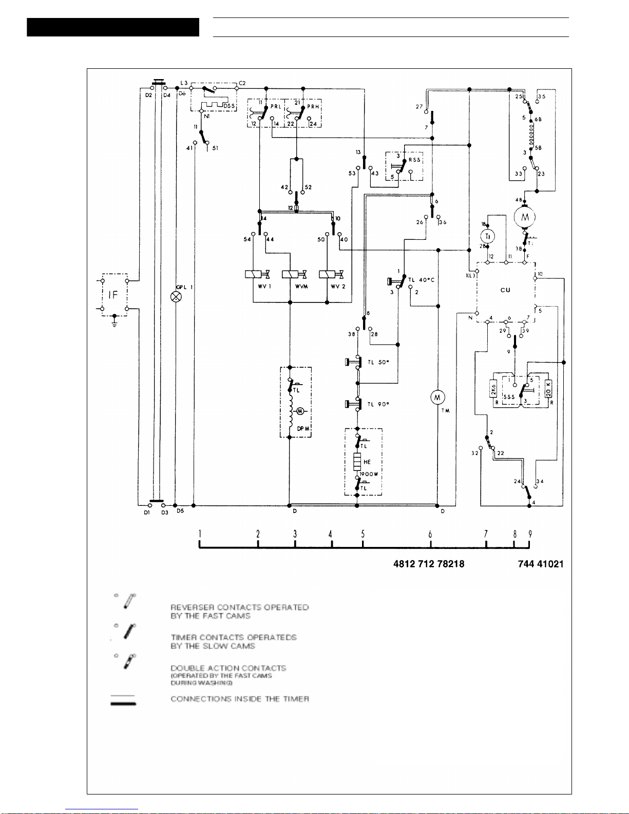
501 0 4819 282 18632 Timer
521 0 4819 214 78443 Unit,electrical A1D22
551 4 4819 271 28776 Thermostat 40 c 40 C
554 0 4819 282 48263 Thermostat
571 0 4819 281 28168 Valve,magnet
572 0 4819 281 28203 Valve,magnet
583 0 4819 271 28856 Pressostat
620 0 4819 276 38281 Switch,pushbut.
630 0 4819 690 18108 Switch, door
653 1 4819 134 28035 Pilot lamp
701 0 4819 530 28768 Hose, inlet warm
701 1 4819 530 28848 Hose, inlet
702 0 4819 530 28766 Hose, inlet inside ww
702 2 4819 530 28793 Hose inside
708 1 4819 530 28868 Drainhose inner
711 0 4819 418 79104 Container
712 0 4819 418 78752 Drawer dispenser
718 1 4819 466 98727 Cover
754 0 4819 526 48255 Drainhose inner Tub/Pump
754 1 4819 360 58533 Flap
760 0 4819 480 58106 Cover,pump
781 0 4819 530 28847 Hose,draining
783 0 4819 530 28808 Hose pressostat
787 0 4819 530 28904 Hose,deaeration
791 0 4819 466 69598 Gasket top
791 1 4819 466 69597 Gasket bottom
794 7 4819 466 69704 Gasket and filter
794 8 4819 310 38057 Gasket
794 9 4819 532 58166 Gasket and Seal
901 0 4819 401 18529 Clamp,hose
901 1 4819 492 68061 Clamp,hose
902 1 4819 401 18384 Holder,hose outside
902 2 4819 404 49832 Holder control unit
910 6 4819 502 38005 Screw
912 2 4819 310 38685 Set screw
914 0 4819 505 18298 Nut
931 0 4819 492 38122 Spring suspension
932 0 4819 492 48144 Spring
941 0 4819 310 38743 Bearing, kit
951 0 4819 310 38157 Bearing, kit
952 0 4819 466 69882 Gasket thermostat
990 0 4819 310 39124 Mounting kit
990 1 4819 310 38684 Fastener counter weight bottom