
© Wikora GmbH Page 2 As of 1/31/2019
Errors excepted.
1 General
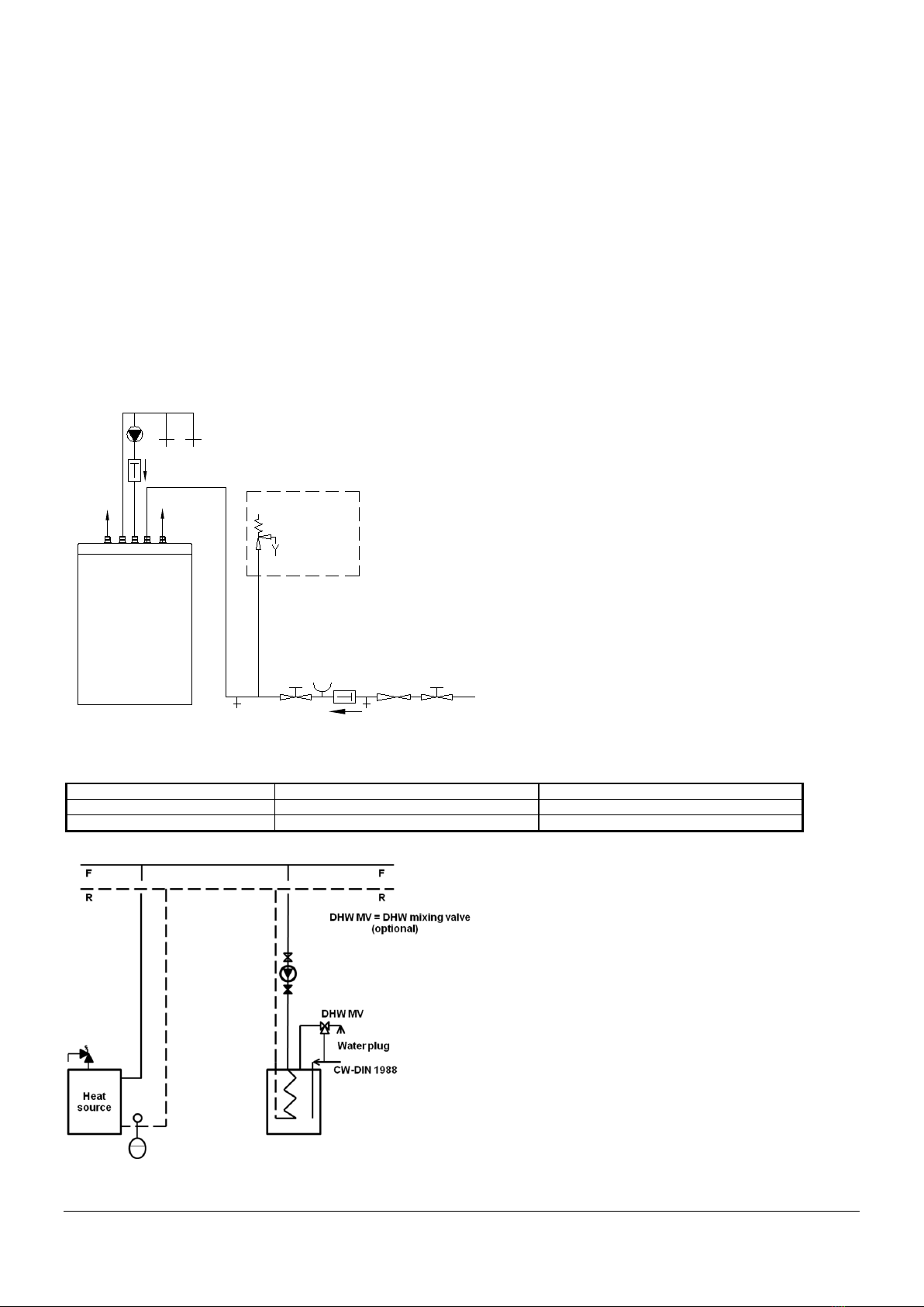
Depending on the type and design, WIKORA tanks are suitable for heating and / or storing DHW and / or heating water. The
heating is achieved indirectly via heat generators, if applicable, from different heat sources. The maximum working pressure
and working temperature can be found in the technical data.
Set-up, installation and commissioning must be undertaken by a qualified specialist, who must observe these instructions.
The site of installation must be frost-protected according to DIN 4753 and should be in direct proximity to the heat
generator.
When setting-up and installing the tank, the following regulations should be considered:
In addition to the technical rules in force DIN 1988, DIN 18160, DIN 4753, DIN 4109, DIN 4708, DIN 4751 section 2-4 energy
conservation law and VDE regulations are to be observed. Moreover, the relevant regulations of the suppliers as well as legal
building regulations are to be considered.
DHW requirements:
•Minimum hardness:
- 2° dh (sum of alkaline earths 0,4 mmol/l)
•Conductivity
- if external current anode is used ≥ 100 µs/cm
- if Mg-anode is used 130 µs/cm – 1500 µs/cm
•pH-value according to Drinking Water Ordinance (6,5-9,5)
Important: The exhaust pipe must be at least as big as the safety valve outlet in width. It may not have more than 2 bends and
should not be longer than 2 m. If for any compelling reasons 3 bends or a length up to 4 m are required, then the entire exhaust
line must be designed one nominal size larger. More than 3 bends, or a length exceeding 4 m is prohibited. The exhaust pipe
must be installed with downward gradient. The drain line behind the funnel must feature at least the double width of the valve
entrance. A sign is to be attached close to the exhaust pipe of the safety valve or on the safety valve itself. „For safety reasons
water may leak from the exhaust pipe during the heating process! Do not lock! "The operability of the safety valve is to be
checked at regular intervals by means of de-ventilation.
2 Transport and installation
In order to prevent damage during transport, the packaging should only be removed at the site of installation. During shipment,
it should be ensured that the tank does not come in contact with any spiky or sharp items, nor is damaged through dropping or
knocks.
During installation, the tank must be disconnected from any humidity carrying components. Moreover, sufficient space for
maintenance and cleaning purposes should be kept free in front of, beside, above and behind the tank.