
English
Installation and operating instructions Wilo-Sub TWI4-6 5
• Shrinkage hoses, or moulded sleeves (for motor
cable extension)
• Pressure vessel, tank
• WILO Fluidcontrol or WILO pressure switching ER
as Plug & Pump package (see separate installation
and operating instructions)
6 Description and function
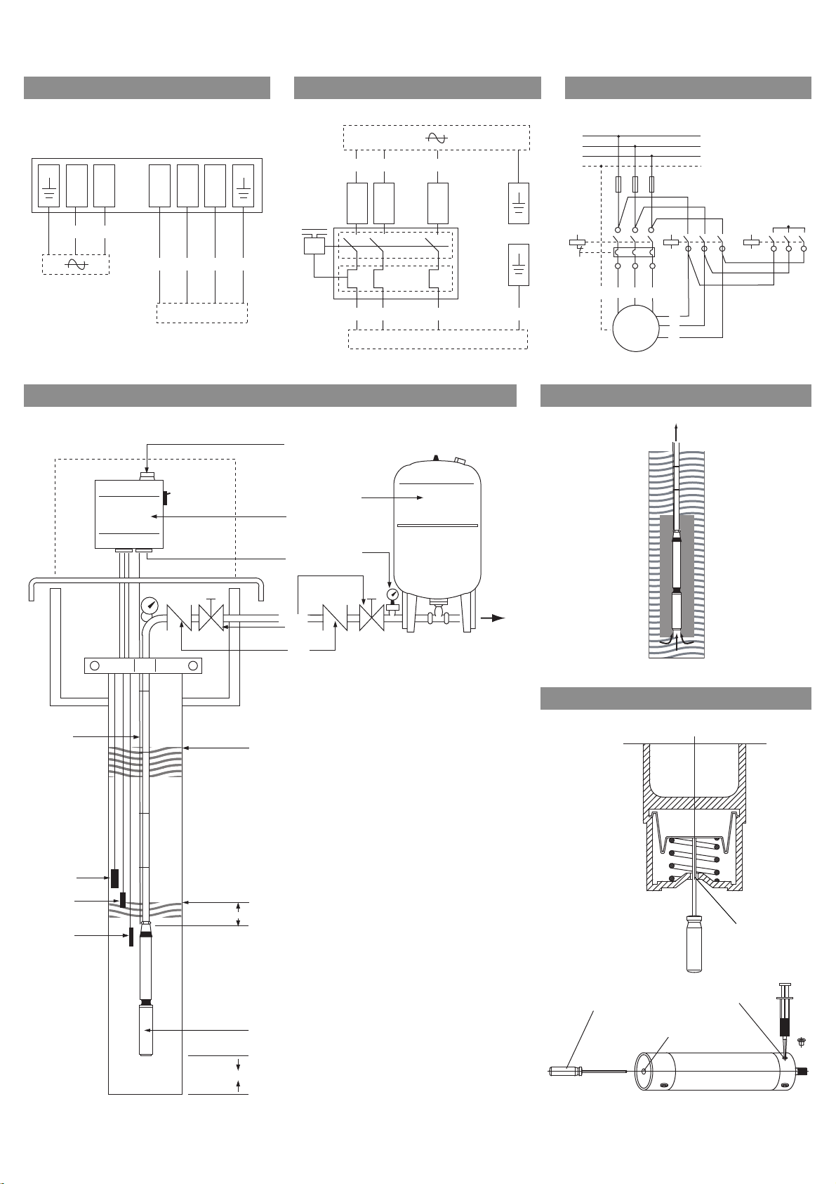
6.1 Description of the pump (Fig. 4)
Fully submersible, multistage submersible pump
with radial or semi-axial impellers. Coupling and
flange usable for motors with pumps, installation
dimensions in compliance with NEMA standards.
Built-in non-return valve in the pump head. Inter-
mediate bearing in each stage, specially designed
to optimise the shaft bearings. Sturdy cable pro-
tection. Optimised hydraulics components for
achieving high efficiency. High resistance against
corrosion and abrasion, thanks to the qualities of
the stainless steel. Easy servicing, thanks to sim-
ple dismantling and installation characteristics of
the unit.
Corrosion-free single-phase or three-phase
motor with enamelled windings in hermetically
cast stator for direct starting with self-lubricating
bearings.
Motor cooling is achieved by transferring lost heat
to the fluid around the outer jacket of the motor.
The minimum flow speed of the fluid along the
motor is 10 cm/sec for a 4" motor is and is
16 cm/sec for a 6" motor.
6.2 Soft starter and frequency converter
As a general rule all motors can, within the limits
described in the following, be operated in combi-
nation with frequency converters and electronic
starters (soft starter).
CAUTION! Danger of material damage!
If these operating requirements are not met, the
service life of the pump will be reduced and can
destroy the motor!
6.2.1 Requirements when using electronic starters
(soft starter)
• The minimum required cooling flow speed must
be ensured at all duty points
(4" motors - 10 cm/sec, 6" motors - 16 cm/sec.)
• The current consumption must remain below the
nominal current (In) level during the entire oper-
ation (see name plate information).
• The ramp time for the start/stop procedures
between 0 and 30 Hz should be set to maximum
1 sec. The ramp time between 30 Hz and the
nominal frequency should be set to maximum
3sec.
• During start-up the voltage must be at least 55 %
of the nominal motor voltage.
• After normal operation has been reached, bridge
the electronic starter (soft starter) in order to
avoid power dissipation during operation.
6.2.2 Requirements when using frequency convert-
ers
• Permanent operation can only be ensured
between 30 Hz and 50 Hz (60 Hz).
• A time of min. 60 seconds between pump stop and
restart is recommended to cool the motor wind-
ing.
• Never exceed the nominal current (see name plate
information).
Maximum voltage peak: 1000 V
Maximum rate of voltage rise: 500 V/μs
• Additional filters are required if the control volt-
age required exceeds 400 V.
• During start-up the voltage must be at least 55 %
of the nominal motor voltage.
7 Installation and electrical connection
DANGER! Risk of fatal injury!
Incorrect installation and incorrect electrical
connection can result in death.
• Installation and electrical work must only be
done by qualified personnel and in accordance
with applicable regulations!
• Accident prevention regulations must be
observed.
7.1 Installation
The pump can be installed vertically or horizon-
tally with a cooling jacket pipe.
CAUTION! Danger of material damage!
Danger of damage due to incorrect handling.
Boreholes or pumping stations must be
arranged/designed according to generally valid
rules of technology.
CAUTION! Danger of material damage!
If installed in a > 4" or 6" borehole (see Fig. 4) or
if installed horizontally in a tank, it is imperative
that a suction shroud is fitted on the pump and
motor in order to ensure sufficient motor cool-
ing
Pos. Description of component
1Wilo-Sub pump DM version
2Submersible electrode ground
3Submersible electrode low water
4Submersible electrode upper level
5Motor connecting cable
6Dynamic level (pump in operation)
7Static level (pump switched-off)
8Switchbox (with dry-running protection system)
9Mains supply
10 Pressure switch with pressure gauge
11 Pressure vessel/tank
12 Shut-off valve
13 Non-return valve