Planning Information
Model W542418(R) Pro Wall Hood
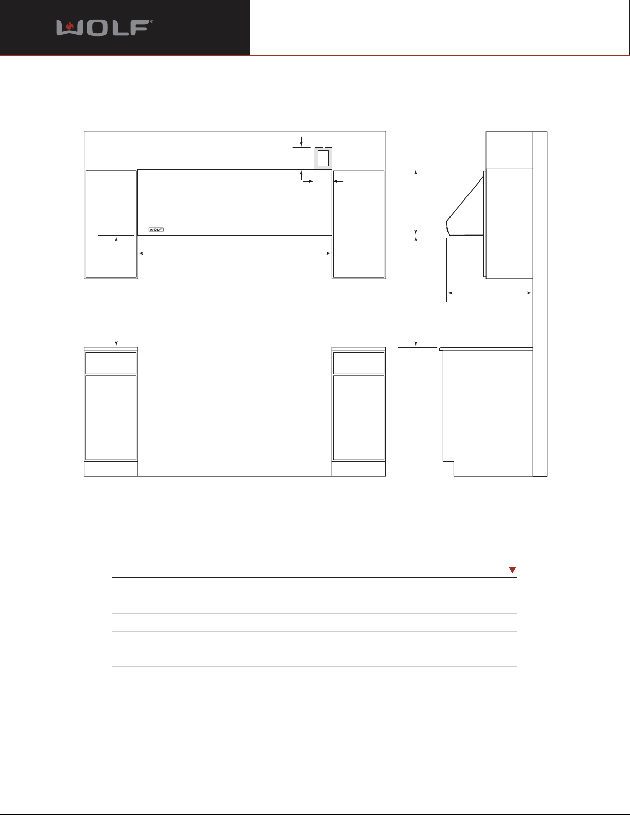
Dimensions in parentheses are in
millimeters unless otherwise specified.
5
INSTALLATION NOTES
Refer to the illustrations and specifications
for overall dimensions and installation specifics.
Wolf Pro wall ventilation hoods are recom-
mended for use with any Wolf cooking appli-
ance, and should be at least as wide as the
cooking surface. It is recommended that the
hood overlap the cooking surface by 3" (76) on
either side.
For optimal performance, a Pro 27" (686)
deep wall hood is recommended for use with
ranges and rangetops that contain a charbroiler
or griddle.
Installation of all Pro wall hoods should be
30" (762) to 36" (914) from the bottom of the
hood to the countertop. Follow the dimensions
shown in the Installation illustration.
Wolf Pro wall hoods are shipped without a
blower assembly. Internal, in-line and remote
blower assemblies are available. Blower options
also vary with the volume of air that needs to be
moved and the length of the duct run. Refer to
the end of this section for Pro ventilation
recommendations and blower options.
IMPORTANT NOTE: Install this ventilation hood
only with a Wolf blower.
Pro wall hoods require a separate, grounded
110/120 V AC, 60 Hz power supply. The service
should have its own 15 amp circuit breaker.
Placement of the electrical supply is not critical,
as long as you provide a minimum of 6" (152)
of 120 V AC, 60 Hz power cable. Locate electri-
cal within the shaded area shown in the Instal-
lation illustration. Note that the location of the
electrical supply will differ between vertical and
horizontal discharge blowers.
You must follow all National Electrical Code
regulations. In addition, be aware of local codes
and ordinances when installing your service.
Refer to the installation instructions shipped
with each Wolf product for detailed specifica-
tions. This information can also be found on
our website, wolfappliance.com.