6
- Automatic Electric “On” switch: Turn the knob corresponding to the selected burner in an anticlockwise direction so that the knob is
at MAXIMUM (this corresponds to a large flame) and then press in the knob. Let it go as soon as the burner is alight.
- “On “ switch for burners with safety device ( thermocouples ): Turn the knob corresponding to the selected burner in an
anticlockwise direction so that the knob is at MAXIMUM (this corresponds to a large flame) and then use one of the lighting devices
described above. When the burner is lit keep the knob pressed in for about 10 seconds in order to allow the flame to heat up the
thermocouple. If the burner goes out when letting the knob go, repeat the operation all over again.
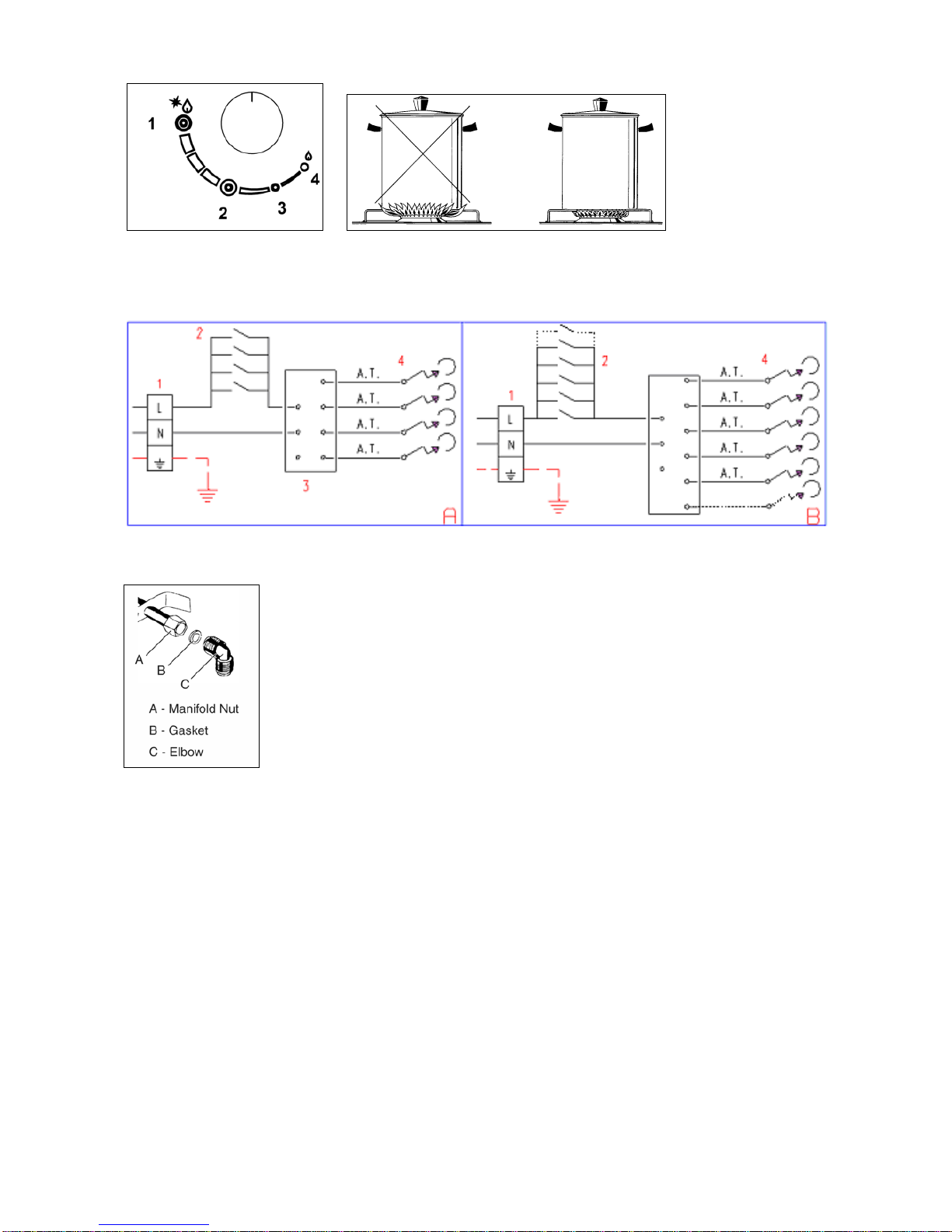
Use of the Dual burner (Fig.14)
This model controls both the central and the external crown of the burner with just one valve.
To ignite the central crown and the external crown of the burner, press and turn the knob to the maximum delivery position 1
and hold it down until ignition; in this position both the internal and the external flame are at maximum.
Turn the knob to position 2 to have the external crown at minimum and the internal crown at maximum flame
Turn the knob to position 3 to have the internal crown at maximum and the external crown off
Turn the knob to position 4 to have the internal crown at minimum and the external crown off.
If the flame does not light after the first attempt, wait 5 minutes for the gas to dissipate before attempting to re-light the burner.
N.B.: You are advised not to try and light a burner if its flame divider is not correctly in place.
Advice for the best use of the burners:
- Use suitable pans for each burner ( see tab. n° 4 and Fig. 15).
- When boiling point is reached turn the knob on to MINIMUM.
- Always use pans with a lid.
TABLE N°4: Recommended pan diameters.
BURNER PAN DIAMETERS recommended (cm.)
Auxiliary 12 - 14
Semi-rapid 14 - 26
Rapid 18 - 26
Dual 22 - 26
ATTENTION: use containers with a flat bottom
ATTENTION: If there is no electric current you can light the burners with matches.
Lighting the burners with safety thermocouples can only be carried out when the knob is on MAXIMUM (large flame) .When
cooking food with oil or fat which can easily set alight, the user must not leave the appliance.
Do not use sprays near the appliance when it is in use. When using the burners make sure that the pan handles are in the
correct position. Keep children away. If the hob has a lid, before closing it, make sure that the surrounding work surface is
cleaned of any food that has been left there.
NOTE: The use of a gas cooking appliance produces heat and humidity in the place where it is installed. Therefore you need to
ensure that the place is well ventilated, keeping clear the natural ventilation openings (Fig. 4 ) and using the mechanical
ventilation device/ flue or electric fan ( Fig. 5A and 5B ). Intensive or prolonged use of the appliance may require additional
ventilation such as by opening a window or an increased ventilation efficiency obtained by increasing the power of the
mechanical ventilators if it is present.
ABNORMAL OPERATION
Any of the following are considered to be abnormal operation and may require servicing:
• Yellow tipping of the burner flame. • Burners failing to remain alight.
• Sooting up of cooking utensils. • Burners extinguished by cupboard doors.
• Burners not igniting properly. • Gas valves, which are difficult to turn.
In case the appliance fails to operate correctly, contact Bertazzoni.
CLEANING OF THE APPLIANCE
Before carrying out any cleaning operation disconnect the appliance from the electric mains and turn off the main tap which
supplies the appliance with gas.
Cleaning the worktop: Periodically the burner heads, enamelled steel grills, enamelled lids and flame dividers must be cleaned with
warm soapy water, rinsed and dried well.
Any liquid which overflows from the pan must always be removed with a cloth.
If opening or closing any tap is difficult do not force it but ask for an urgent check from the technical assistant.
Cleaning of the enamelled parts: To maintain the features of the enamelled parts they must be cleaned frequently with soapy water.
Never use abrasive powders. Avoid leaving acid or alkaline substances on the enamelled parts (vinegar, lemon juice, salt, tomato juice
etc.) and washing the enamelled parts when they are still warm.
Cleaning of the stainless steel parts: Clean the parts with soapy water and then dry them with a soft cloth. The shininess is
maintained by periodically cleaning with the special products normally available on the market. Never use abrasive powders.
Cleaning of the burner flame dividers: as they are not fixed, the flame dividers can be cleaned by simply removing them and cleaning
with soapy water. After drying them well and checking that the holes are not blocked, put them back into their correct position.
SERVICE & MAINTENANCE INSTRUCTIONS
Service and maintenance only to be carried out by an authorised person
Routine maintenance
Have the condition and efficiency of the gas pipe and the pressure regulator (if installed) checked periodically. If anomalies are found,
do not repair components but have the faulty component replaced. To ensure good performance and safety, the gas regulator taps must
be greased periodically.
Periodic lubrication of the taps and any other appliance service must only be carried out by Authorised Personnel.