
www.blaubergventilatoren.de
3
Box & Box-R
BLAUBERG Company is happy to oer your attention a new high-quality
inline centrifugal Blauberg Box & Box-R fans.
INTRODUCTION
The present service instruction contains technical description, technical data
sheets, operation and mounting guidelines, safety precautions and warnings
for safe and correct operation of the fan.
GENERAL
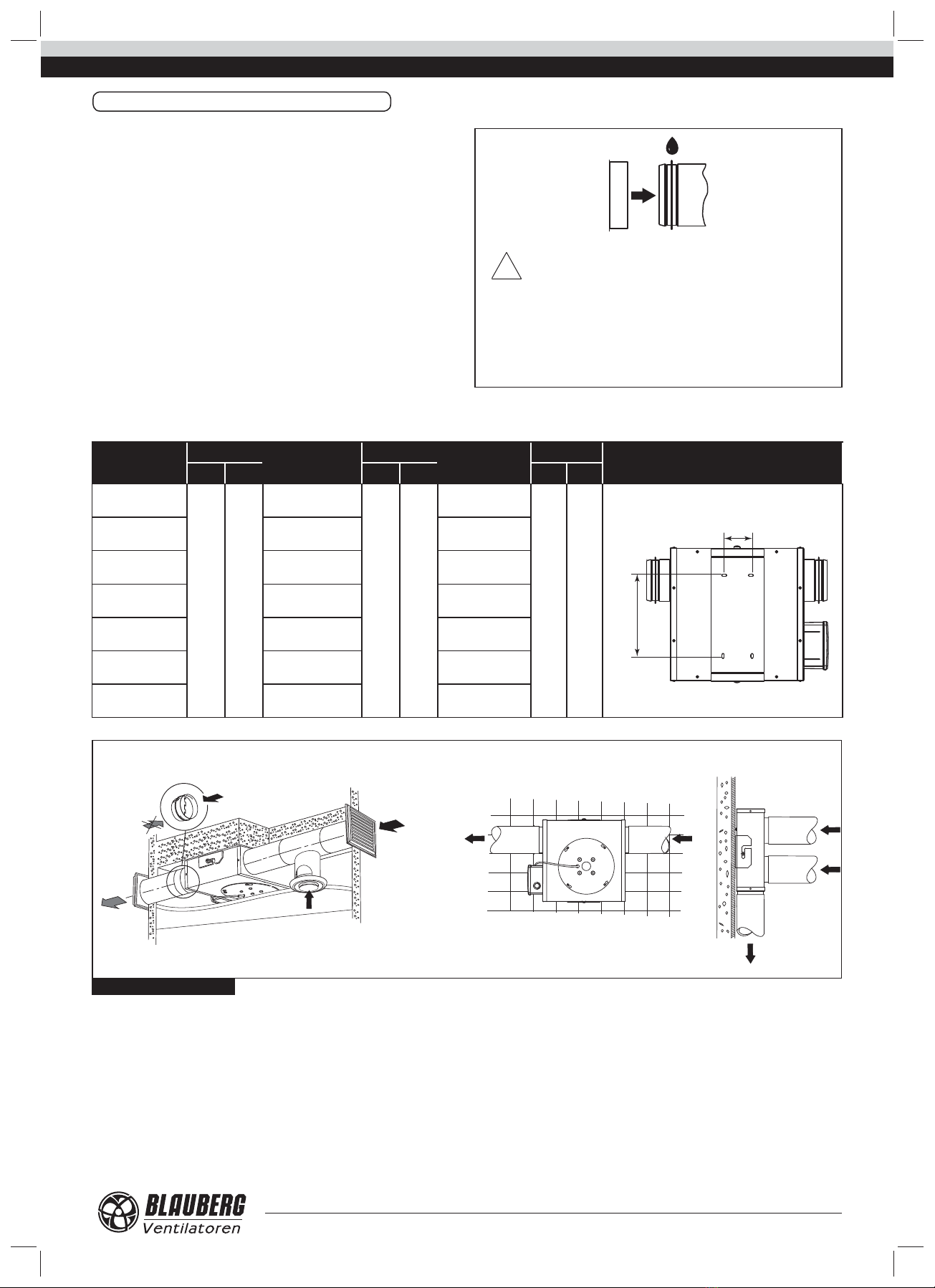
The inline centrifugal fans are designed for supply and exhaust ventilation of
small domestic, public and production facilities with limited mounting space.
The fans are compatible with round Ø 100, 125, 150 and 160 mm air ducts
and are designed for ceiling or wall mounting.
The fan is rated for continuous operation always connected to power mains.
Transported medium must not contain any ammable or explosive mixtures,
chemical vapours, coarse dust, soot, fat particles or pathogen favourable
environment, poisonous, sticky and brous substances.
The fans are allowed for operation only after nal mounting, that includes
installation of protecting devices in compliance with DIN EN ISO 13875 (DIN
EN ISO 12100) as well as other construction safety equipment.
The fan design is regularly improved, so some models can slightly dier from
those ones described in this service instruction.
SAFETY RULES
The fan complies with the requirements according to the EU norms and
directives, to the relevant EU-Low Voltage Equipment Directives, EU-
Directives on Electromagnetic Compatibility.
All operations related to the fan electrical connections, servicing and repair
works are allowed only after the fan disconnection from power mains.
All mounting and servicing operations are allowed for duly qualied
electricians with valid electrical work permit for electric operations at the
units up to 1000 V after careful study of the present user's manual.
The fan must be grounded!
Please follow the safety regulations and working instructions (DIN EN 50 110,
IEC 364).
Make sure the impeller and the casing are not damaged before connecting
the fan to power mains. The casing internals must be free of any foreign
objects which can damage the impeller blades.
Disconnect the fan from power mains prior to any operations related to the
fan servicing and repair works.
Take measures to prevent contact with the fan to avoid physical damages
during the fan step and start-up.
Misuse of the product or any unauthorized modication are not allowed.
The fan is designed for connection to AC single-phase power mains, see
"Technical Data". The fan is rated for permanent operation during non-stop
power supply.
Take steps to prevent ingress of smoke, carbon monoxide and other
combustion products into the room through open chimney ues or other
re-protection devices. Sucient air supply must be provided for proper
combustion and exhaust of gases through the chimney of fuel burning
equipment to prevent back drafting. The maximum permitted pressure
dierence per living units is 4 Pa.
The air must not contain any dust or other solid impurities, sticky substances
or brous materials.
The fan is not designed for use in an inammable and explosive medium.
The transported medium must not have an aggressive eect on steel at the
temperature stated in the table 1 of the section “Technical data”.
Do not close or block the fan intake or exhaust vent not to disturb the normal
air passage. Do not sit on the fan and do not put objects on the fan.
Follow the manual guidelines to ensure trouble-free operation and long
service life of the product.
Hazardous parts access and water ingress protection standard IPX4.
STORAGE AND TRANSPORTATION RULES
Store the delivered product in the manufacturer's original packing box in a dry
ventilated premise with the ambient temperature from +5°C up to + 40°C.
Store the fan in an environment with minimized risk of mechanical damages,
temperature and humidity uctuations. Store the fan inside a room or under
a shelter.
Transport of the product is allowed by any vehicle in the manufacturer's
original packing box. Use hoist machinery for handling and transportation to
prevent possible mechanical damages of the product. Full the requirements
for transportation of the specied cargo type during cargo-handling
operations.
Do not expose the product to extremely low or high temperatures.
MANUFACTURER'S WARRANTY
The fan complies with the requirements according to the EU norms and
directives, to the relevant EU-Low Voltage Equipment Directives, EU-
Directives on Electromagnetic Compatibility.
We hereby declare that the following product complies with the essential
protection requirements of Electromagnetic Council Directive 2004/108/
EC, 89/336/EEC and Low Voltage Directive 2006/95/EC, 73/23/EEC and
CE-marking Directive 93/68/EEC on the approximation of the laws of the
Member States relating to electromagnetic compatibility. This certicate
is issued following test carried out on samples of the product referred to
above. Assessment of compliance of the product with the requirements
relating to electromagnetic compatibility was based on the following
standards.
The manufacturer hereby warrants normal operation of the fan over the
period of 2 years from the retail sale date provided observance of the
installation and operation regulations.
In case of failure due to faulty equipment during the warranty period the
consumer has the right to exchange it.
If case of no conrmation of the sale date, the warranty term shall be
calculated from the manufacturing date.
The replacement is oered by the Seller.
The MANUFACTURER shall not be liable for any damage resulting from any
misuse of or gross mechanic interference with the fan.
Please follow the operation guidelines always.
WARNING
Do not dispose in domestic waste.
The unit contains in part material that can be recycled
and in part substances that should not end up as
domestic waste.
Dispose of the unit once it has reached the end of its
working life according to the regulations valid where you
are.
ATTENTION
The product is not allowed for use by children and persons with reduced
physical, mental or sensory capacities, without proper practical
experience or expertise, unless they are controlled or instructed on the
product operation by the person(s) responsible for their safety. Supervise
the children and do not let them play with the product.