
2
INSTALLATION INSTRUCTIONS
IMPORTANT: TO THE INSTALLER.
It is the responsibility of the Installer to ensure that the water supply to the dispensing equipment is
provided with protection against backflow by an air gap as defined in ANSI/ASME A112. 1.2-1979; or an
approved vacuum breaker or other such method as proved effective by test.
Water pipe connections and fixtures directly connected to a potable water supply shall be sized,
installed, and maintained according to Federal, State, and Local laws.
1. Locate the dispenser indoors on a level counter top.
A. LEG OPTION
Unpack the four (4) legs and install them into the threaded holes provided in the bottom of the unit.
The installer must provide flexibility in the product and utility supply to permit shifting the position of the
dispenser sufficiently to clean the area beneath it.
NOTE:Before installing legs, the plastic plugs must be removed.
B. COUNTER MOUNTING
The ice dispenser must be sealed to the counter. The template drawing indicates where openings can
be cut in the counter. Locate the desired position for the dispenser, then mark the outline dimensions
on the counter using the template drawings. Cut openings in counter.
Apply a continuous bead of NSF International (NSF) silastic sealant (Dow 732 or equal) approximately
1/4” inside of the unit outline dimensions and around all openings. Then, position the unit on the count-
er within the outline dimensions. All excess sealant must be wiped away immediately.
2. The beverage tubes, drain tube and power cord are routed through the large opening in the bottom of the
unit. See the MOUNTING TEMPLATE page NO TAG, for locating the required clearance hole in the counter
for these utility lines.
3. SINK DRAIN ASSEMBLY: Connect the drain tube to an open drain. Additional drain tubing is provided with
the unit. The drain tube must continuously pitch downward and contain no “traps” or improper drainage will
result.
A. Use tube, clamp and insulation provided to assemble drain.
B. To assure proper drainage, do not allow ”trap” to form in drain line. Be sure drain line runs flat with
bottom of dispenser.
NOTE: This equipment must be installed with adequate backflow protection to comply with federal,
state, and local codes.
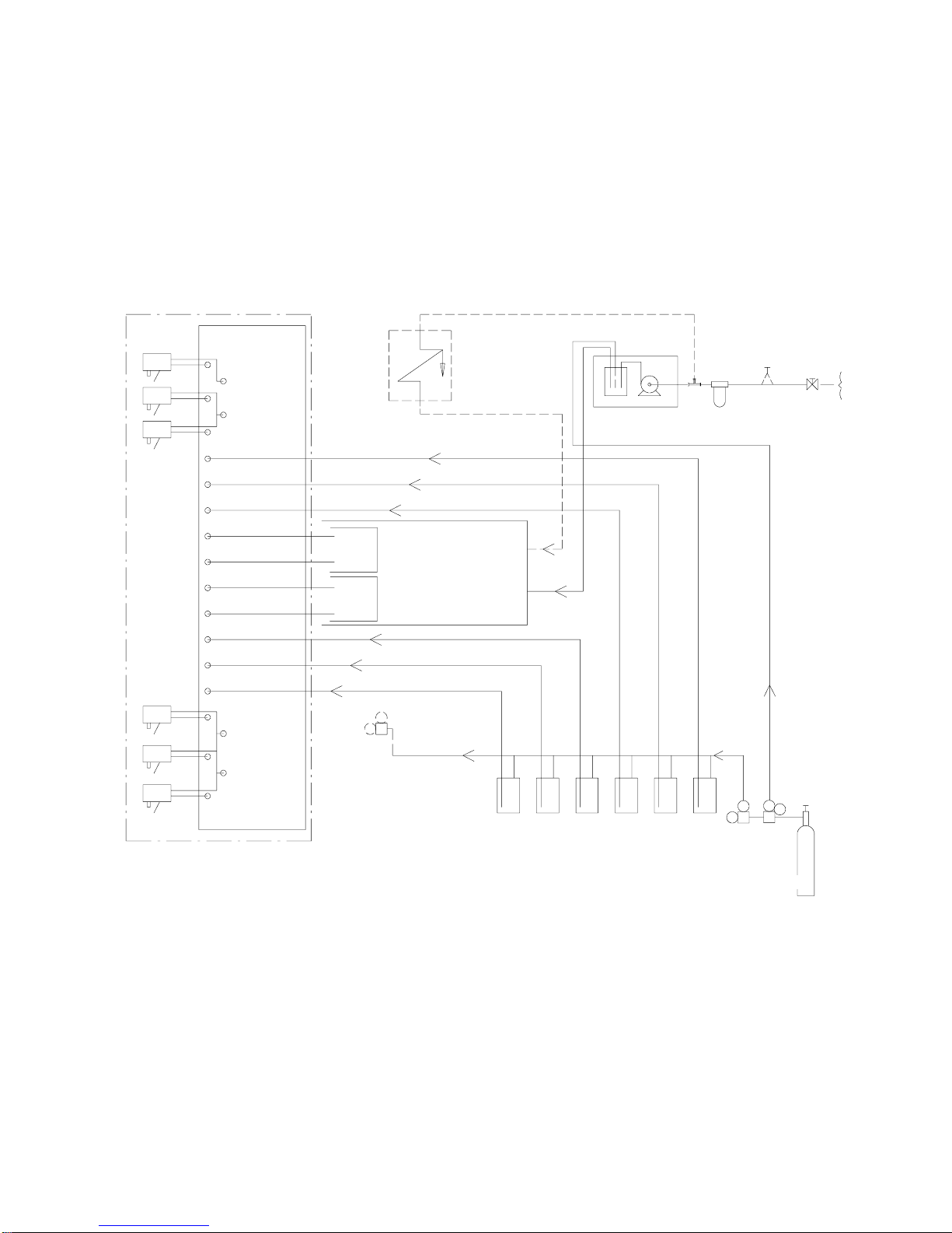
4. Connect the beverage system product tubes as indicated in the Beverage System Schematic. This work
should be done by a qualified service person.
NOTE: See Plumbing Schematic on page NO TAG of Manual or Decal on Splash Panel of the unit for the
location of syrup and water connections.
5. Clean the hopper interior (see CLEANING INSTRUCTIONS in Owner’s Manual).
6. Connect the power cord to a 120 volt, 60 cycle, 3-wire grounded receptacle.