
Crestron MMK-V12 & WMKM-V12 Mud Mount Kits
Setup
Supplied Hardware
The MMK-V12 consists of three parts. These parts produce an assembly that
attaches to the BB-V12 or PMK-V12. The WMKM-V12 consists of six parts, three
of which make up the MMK-V12, as well as a mounting plate, cutout template and
mounting screws.
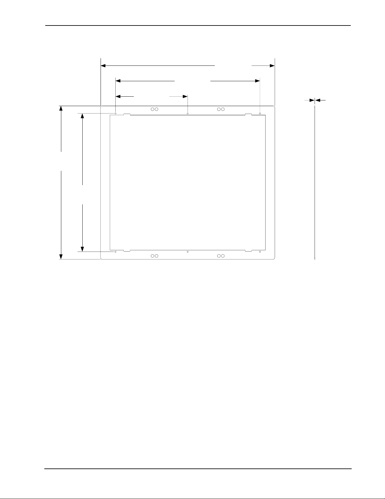
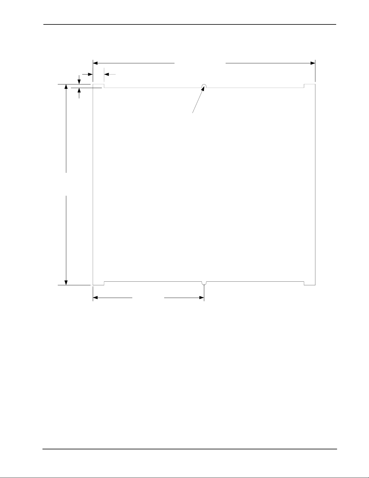
The mounting plate provides the necessary support for a touchpanel in an existing
wall or similar flat surface (e.g., lectern or podium) which can have joint compound
applied to it. An overlay cutout template (4508668) is supplied and is in the shape of
the required opening (refer to the illustration on page 4).
The hardware supplied with the MMK-V12 and WMKM-V12 is listed in the
following table.
Supplied Hardware for the MMK-V12 and WMKM-V12
DESCRIPTION PART NUMBER QUANTITY
Metal, Bracket, Mud Ring 2025263 1
Metal Plate, Adjustment 2004825 2
Hardware, Metal, Push-On Fasteners 2004121 4
Metal, Plate, Mounting
(WMKM-V12 only) 2024536 1
Overlay, Template, Wall Cutout
(WMKM-V12 only) 4508668 1
Screw, #06-32 x 1 1/2”, Pan, Phil:
(WMKM-V12 only) 2007254 6
Installation
This section provides an installation procedure for each Mud Mount Kit. The
“MMK-V12 Procedure” starts below and the “WMKM-V12 Procedure” starts on
page 9. Be sure to review each procedure before starting.
MMK-V12 Procedure
This section provides the necessary steps for the assembly of the MMK-V12 with
either the BB-V12 or PMK-V12. It is assumed that the BB-V12 or PMK-V12 has
been secured to the stud according to the instructions in the latest versions of their
Installation Guides (Doc. 6811 and Doc. 6812 respectively). It is also assumed that
drywall is in place and a cutout is made in the drywall along the inside of the
mounting plate for touchpanel installation.
Complete the steps in the order provided. The only tools or materials required and
not supplied are four standard drywall screws (e.g., #2 Phillips flat head screws),
a #2 Phillips screwdriver, a level and tools/material to apply drywall joint compound.
CAUTION: Allow an air gap of at least 12 inches (305 mm) in the wall cavity
above and below the touchpanel for heat dissipation.
Installation Guide – DOC. 6892A Mud Mount Kits: MMK-V12 & WMKM-V12 •5