
Jacuzzi Whirlpool Bath: Finestra Walk-in Bath Page 6 FL61000B • 10/07
SPECIFICATIONS
Technical Specifications
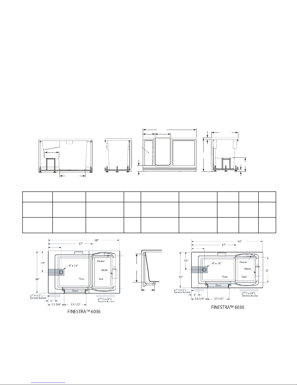
Dimensions
60” L x 30” W x 38-1/2” H
(1524 mm) L x (762 mm) W x (977.9 mm) H
Drain/Overflow
A: 31-1/2” (800 mm) B: 11-11/16” (297 mm)
Cutout
NA
Total Weight
EU50, EU55: 340 lb. (154.5 kg)
EY10, EY15: 340 lb. (154.5 kg)
EV85, EV90: 310 lb. (141 kg)
EY00, EY05: 310 lb. (141 kg)
Operating Gallonage
Max: 75 U.S. Gal. (284 liters)
Min: 55 U.S. Gal. (208 liters)
Product Weight
EU50, EU55: 280 lb. (127 kg)
EY10, EY15: 280 lb. (127 kg)
EV85, EV90: 260 lb. (118 kg)
EY00, EY05: 260 lb. (118 kg)
Skirt Mounting
NA
Electrical Specifications (Models EU50, EU55, EY10, EY15 only)
Motor/Pump and RapidHeat™: 120 VAC, 20 AMP, 60 Hz.
Heater
RapidHeat™: (P/N BN60000) comes standard on;
*(Models EU50, EU55, EY10, and EY15 only)
Installation Notes
Refer to installation instructions included with fixture before
beginning installation. Please confirm product availability and
specifications before commencing with any installation work.
PRODUCT SPECIFICATIONS AND AVAILABILITY ARE SUBJECT TO
CHANGE WITHOUT NOTICE.
Ordering Information
Product Code:
EU50 Finestra™ 6030 Walk-In 14" Seat Whirlpool Bath, LH
EU55 Finestra™ 6030 Walk-In 14" Seat Whirlpool Bath, RH
EY10 Finestra™ 6030 Walk-In 17” Seat Whirlpool Bath, LH
EY15 Finestra™ 6030 Walk-In 17” Seat Whirlpool Bath, RH
EV85 Finestra™ 6030 Walk-In 14" Seat Bath, LH
EV90 Finestra™ 6030 Walk-In 14" Seat Bath, RH
EY00 Finestra™ 6030 Walk-In 17” Seat Bath, LH
EY05 Finestra™ 6030 Walk-In 17” Seat Bath, RH
• Left and Right Hand drain locations
• Standard drain kit, No. FB48827
• Accessories / Hardware:
Remote Drain Kit: #FC30XXX
Pillow: #EK91959
• Trim Kit Finishes Available:
Standard Part No. BN21XXX
(827) – Chrome
(829) – Bright Brass
(898) – Brushed Chrome
(826) – Brushed Nickel
(845) – Oil-Rubbed Bronze
(805) – Platinum
(815) – Satin Nickel
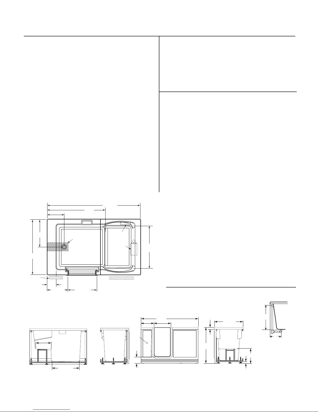
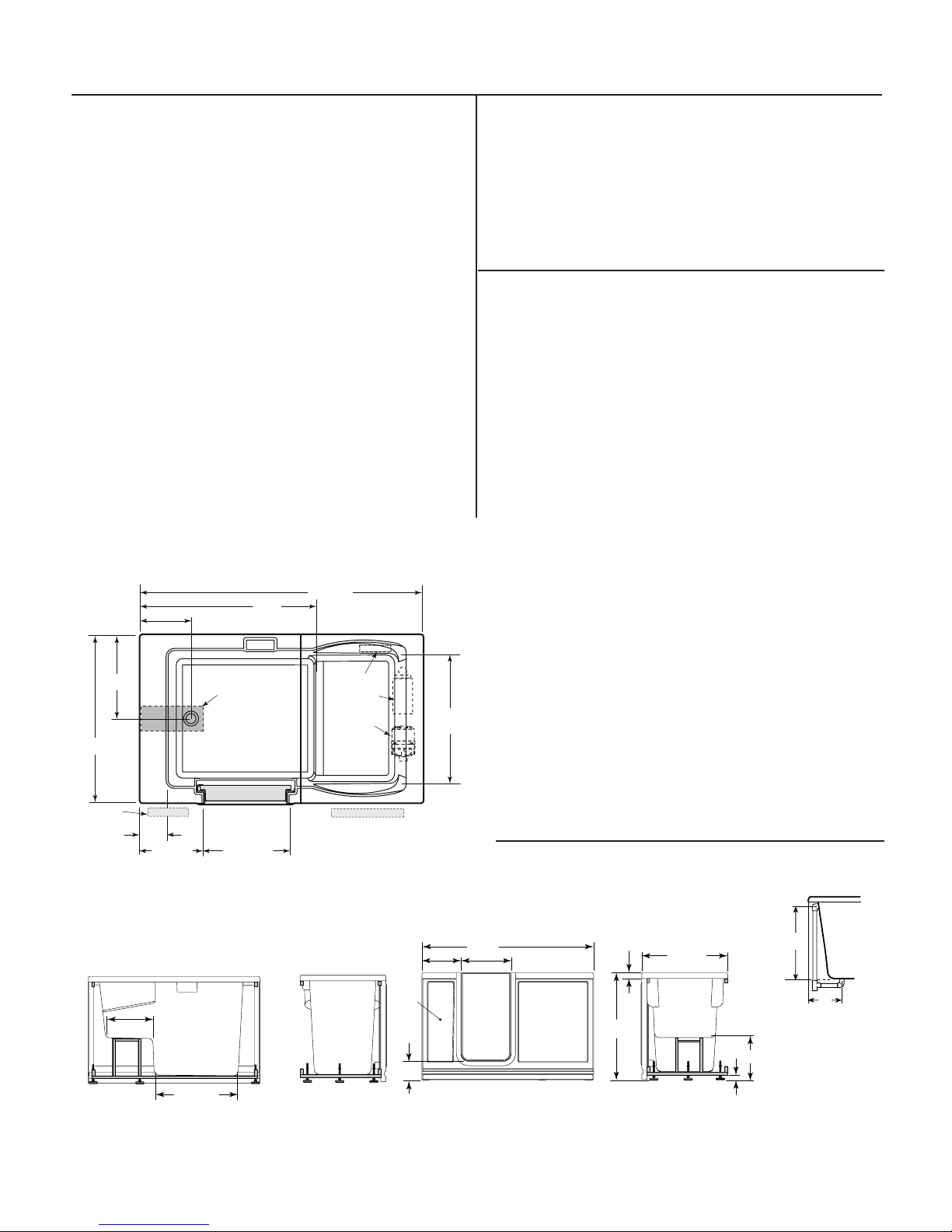
DRAIN/OVERFLOW
A
B
BACK FRONTLEFT END RIGHT END
L
H
W
14" or 17"
1-1/2"
2"
6-1/2"
29-1/2"
16-3/4"
17-1/2"
13-3/4"
Service Access
Service
Access
60"
30"
17-1/2"
5"
15"
6-5/8"
37"
13-3/4"
20"
4" x 16"
27" H x 24" L
Service Access
Motor
SeatFloor
FINESTRA™ 6030
*Heater
27" H x 9" L
Service Access
Door
Finestra™ 6030 Walk-In 14" Seat Whirlpool Bath Left Hand (EU50) shown.
* Measurements inside unit represent cutout in floor to allow for drain/overflow.
Minimum service access dimensions given.