
Amaran Keselamatan
Perkakas ini boleh digunakan oleh kanak-kanak berusia 8 tahun dan ke atas, dan orang yang
yang kurang upaya fizikal, deria atau mental, atau kurang pengalaman dan pengetahuan jika
mereka telah diberikan pengawasan atau arahan penggunaan perkakas ini dengan cara yang
selamat dan memahami tentang kebahayaan yang mungkin berlaku. Kanak-kanak tidak
boleh bermain dengan perkakas ini. Kerja pembersihan dan penyelenggaraan tidak boleh
dilakukan oleh kanak-kanak.
Perkakas ini bukan bertujuan untuk digunakan oleh kanak-kanak atau orang kurang
upaya jika tanpa pengawasan.
Kanak-kanak harus diawasi untuk memastikan mereka tidak bermain dengan
perkakas ini.
Sambungkan kord kuasa pada outlet soket dengan terminal dibumikan.
Perkakas ini adalah untuk kegunaan di rumah sahaja, ianya tidak sesuai untuk kedai
barbeku, kedai panggang dan kegunaan komersial yang lain.
Hud dapur dan penapisnya hendaklah dibersih secara berkala mengikut arahan.
Jangan nyalakan api secara terbuka, atau membenarkan minyak mengalir ke dalam
perkakas ini.
Jika berlakunya apa-apa kerosakan pada perkakas ini, sila hubungi bahagian khidmat
selepas jualan.
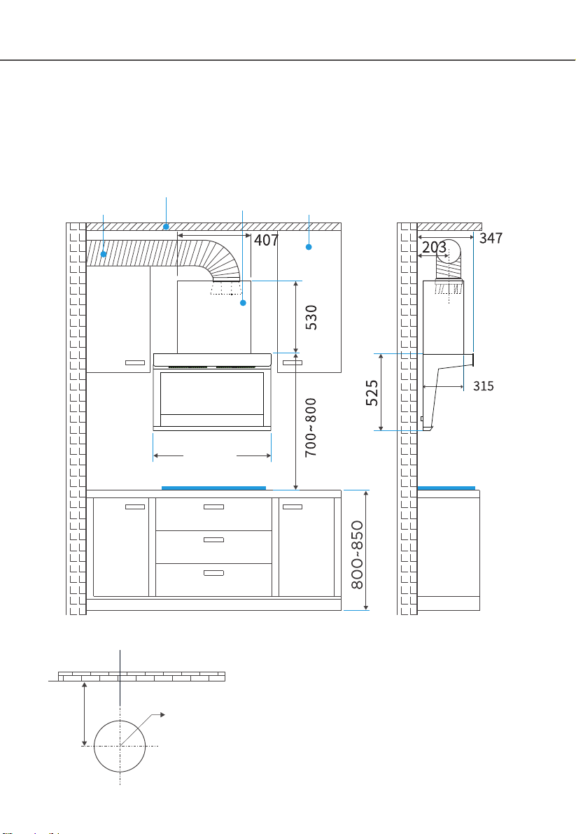
Pastikan ruang dapur mempunyai pengudaraan yang baik.
Sebelum sebarang kerja penyelenggaraan dan pembersihan dijalankan, pastikan
kuasa diputuskan terlebih dahulu.
Jika kord bekalan rosak, ia mesti digantikan oleh pengilang, ejen penyelenggaraan
atau orang berkelayakan yang seumpamanya bagi mengelakkan kebahayaan. Ianya
harus digantikan dengan kord kuasa yang disediakan oleh pengilang atau penjual.
Jika plag atau kord rosak, sila hubungi pusat khidmat selepas jualan.
Risiko kebakaran mungkin akan berlaku jika pembersihan tidak dijalankan mengikut
arahan.
Untuk kes kerosakan wayar penyambungan, sila hubungi pengilang, kakitangan
pusat khidmat selepas jualan atau juruteknik lain yang berkelayakan.
Gunakan unit ini mengikut arahan untuk mengelakkan sebarang kebahayaan
berlakunya kebakaran.
Udara yang dibebaskan tidak boleh disalurkan ke dalam saluran asap atau cerobong
yang digunakan untuk melepaskan asap dari peralatan pembakaran gas.
Sila patuhi undang-undang tempatan yang berkenaan dengan pemindahan udara
luaran.