SPECIFICATIONS
FS23M Face plate: 8” x 1-1/2” x 1/8” (203.2mm x 38.1mm x 3.175mm)
I.D. Requirements: 8” x 1-1/2” x 1-1/2”
(203.2mm x 38.1mm x 38.1mm)
Solenoid: Continuous duty
Standard voltage: 24VDC, 0.5 Amp
12VDC, 1 Amp
Strike: M-Mortise 4” x 1-1/2” x 0.125” (101.6mm x 38.1mm x 3.175mm)
For wood 1-3/4” deep (44.45mm)
Bolt: 5/8” (15.88mm) dia. nylon with magnet insert, 5/8” (15.88mm) throw. Red pilot
lamp standard to indicate door locked.
1091A/1091ADC (Deadlocking)
Face plate: 8” x 1-1/2” 0.125” (35.1mm x 35.1mm x 3.175mm)
1091STA: 4-7/8” x 1-1/4” x 0.0937” ANSI
(123.53mm x 31.75mm x 2.28mm)
I.D. Req. 8” x 1-1/2” x 1-1/2”
(203.2mm x 38.1mm x 38.1mm)
Solenoid: Continuous duty
Standard voltage: 24VDC, 0.5 Amp
12VDC, 1 AMP
Strike: M-Mortise 4” x 1-1/2” x 0.125” (101.6mm x 38.1mm x 44.45mm)
Bolt: 5/8” (15.88mm) dia. S.S., 3/4” (6.35mm) throw
1190A
Face plate: 8” x 1-1/2” x 0.125”
(203.2mm x 38.1mm x 3.175mm)
I.D. Requirements: 8” x 1-1/2” x 1-1/2”
(203.2mm x 38.1mm x 38.1mm)
Solenoid: Continuous duty
Standard voltage: 24VDC, 0.7 Amp
Strike: M-Mortise 4” x 1-1/2” x 0.125” (101.6mm x 38.1mm x 3.175mm)
Bolt: 3/4” (6.35mm) dia. S.S., 3/4” (6.35) throw
TROUBLE SHOOTING
Problem Solution
Bolt does not project Check voltage and alignment
of strike.
Bolt projects but chatters Voltage too low.
Bolt will not retract Strike misaligned
BOLT POSITION SENSOR (MAGNETIC)
No. 6 SPDT Indicates bolt locked or unlocked .25 Amp
DOOR POSITION SENSOR (MAGNETIC)
No.9 SPDT Indicates door opened or closed .25 Amp
DOOR POSITION SWITCH (MECHANICAL)
DPS SPDT Indicates door opened or closed 5 Amp
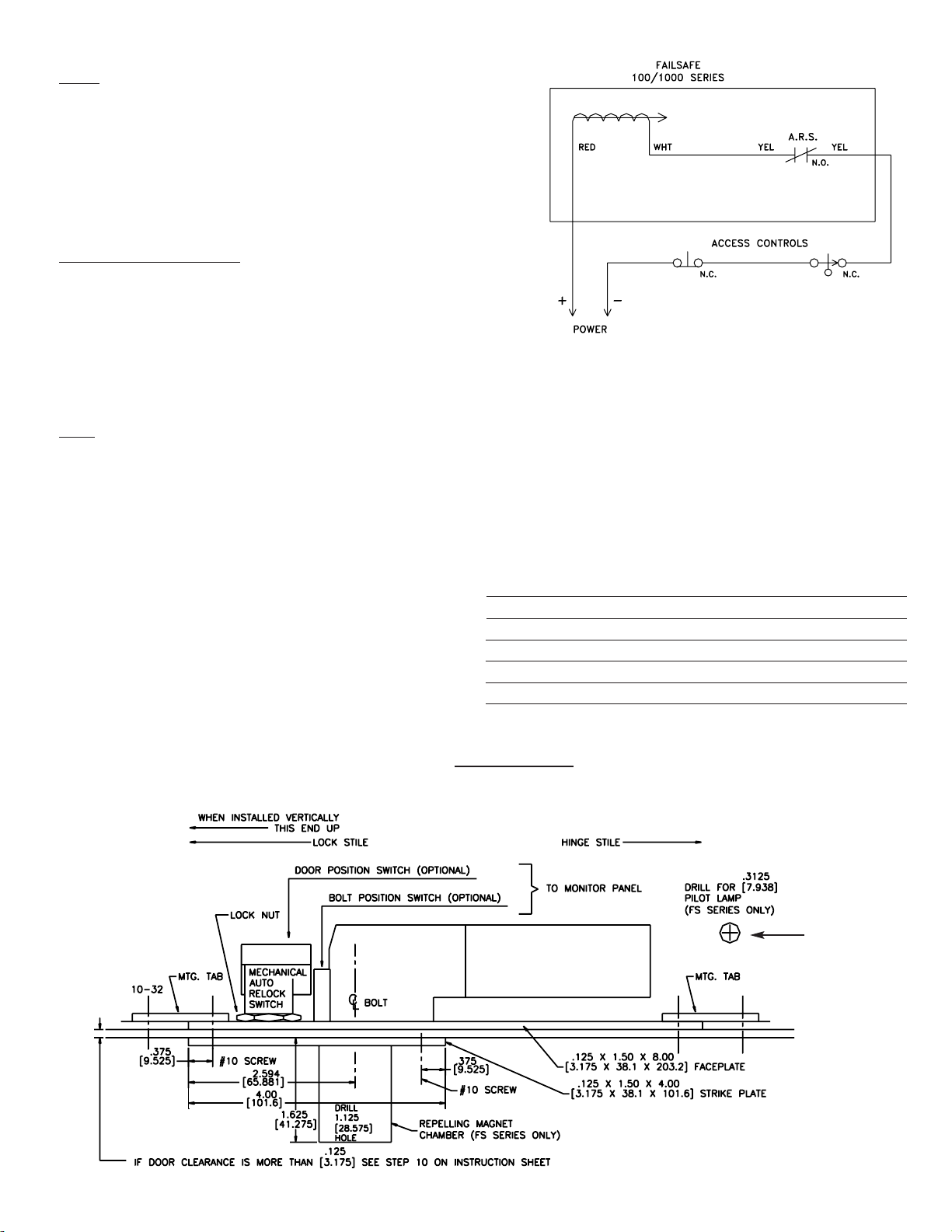
DIMENSIONS: INCHES
MILLIMETER
Drill for Pilot
Lamp on inside
face of frame
M:\INS\INST-90 DEG REV A 0702 Page 2
DOOR IS SHOWN CLOSED AND LOCKED.
UNLOCKING MAY BE CONTROLLED BY
MULTIPLE SWITCH LOCATIONS.