
1
Important Installation Information
GAStype verification
Verifythetypeofgassuppliedtothelocation.Ensure
that the appliance is connected to the type of gas for
whichitiscertified.Allrangesarecertifiedforusewith
natural gas or propane (LP) gas. Make certain the
range matches the gas type available.
Important
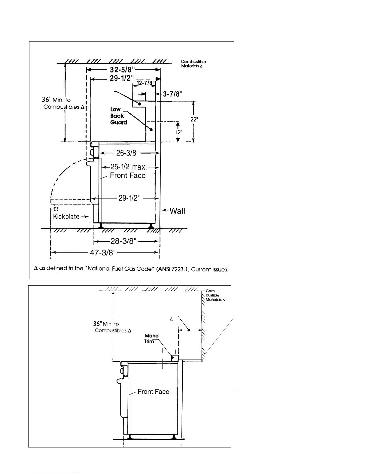
• Abackguardmustbeutilizedwhenthereislessthan
a12”horizontalclearancebetweencombustiblema-
terialsandthebackedgeoftherange.TheThermador
LowBackbackguardmustbeorderedseparatelyand
installed at the rear of the range. For island installa-
tionsandotherinstallationswithmorethan12”clear-
ance, an optional stainless steel Island Trim is avail-
able to cover the backguard mounting flanges.
• Verifythatthe applianceiscorrectforthetypeofgas
being provided. Refer to Step 5 on Page 12 before
proceedingwith the installation.
GasSupply:
Natural Gas – 6 inch water column. (14.9 mb) min.,
14 inch (34.9 mb) max.
Propane Gas – 11 inch water column. (27.4 mb), min.,
14 inch (34.9 mb) max.
Electric Power Supply:
30" Model:
4 Burners - 120 VAC, 60 Hz., 1Ph., 15 Amp circuit.
36" Models:
6 Burners – 120 VAC, 60 Hz., 1Ph., 15 Amp circuit.
4BurnerswithGrill–120VAC,60Hz.,1Ph.,15Ampcircuit.
4 Burners with Griddle – 120 VAC, 60 Hz., 1Ph., 20 Amp
circuit.
48" Models:
6BurnerswithGrill–120VAC,60Hz.,1Ph.,15Ampcircuit.
6 Burners with Griddle – 120 VAC, 60 Hz., 1Ph., 20 Amp
circuit.
4BurnerswithGrillandGriddle–120VAC,60Hz.,1Ph.,20
Amp circuit.
It is strongly recommended that this appliance be
installedin conjunction witha suitable overheadvent
hood.(SeeStep1forVentilationRequirements.)Due
tothehighheatcapabilityofthisunit,particularatten-
tion should be paid to the hood and duct work instal-
lation to assure it meets local building codes.
Itis the responsibility oftheowner and the installerto
determineifadditionalrequirementsand/orstandards
apply to specific installations.
CAUTION
This unit is designed as a cooking appliance.
Basedonsafetyconsiderations,neveruseitfor
warming or heating a room.
CAUTION
To eliminate risk of burns or fire caused by
reaching over heated surface units, cabinet
storage located above the surface units
should be avoided.
Check local building codes for the proper method of
appliance installation. Local codes vary. Installation,
electrical connections and grounding must comply
with all applicable codes. In the absence of local
codes the appliance should be installed in accor-
dancewiththeNationalFuelGasCodeANSIZ223.1/
NFPA 54 current issue and National Electrical Code
ANSI/NFPA70-currentissue.InCanada, installation
mustbeinaccordancewith theCAN1-B149.1and.2
–InstallationCodesforGasBurningAppliancesand/
or local codes.
Thisappliancecomplieswithoneormore of the following
standards:
• UL858,StandardfortheSafetyofHouseholdElectric
Ranges
• UL923,StandardfortheSafetyofMicrowaveCooking
Appliances
• UL 507, Standard for the Safety of Electric Fans
• ANSI Z21.1, American National Standard for House-
holdCookingGasAppliances
• CAN/CSA-C22.2 No. 113-M1984 Fans and Ventila-
tors
• CAN/CSA-C22.2 No. 61-M89 Household Cooking
Ranges
CAUTION
Whenconnectingtheunittopropanegas,make
certainthepropanegastankisequippedwithits
own high-pressure regulator in addition to the
pressureregulatorsuppliedwiththerange.The
maximum gas pressure to this appliance
must not exceed 14.0 inches water column
(34.9 mb) from the propane gas tank to the
pressure regulator.