
IMPORTANT: READ THESE INSTRUCTIONS
BEFORE COMMENCING THE INSTALLATION
IMPORTANT SAFETY INFORMATION
1. DO NOT install this product in areas where the following may be present or occur:
2. Excessive oil or a grease laden atmosphere.
3. Corrosive or flammable gases, liquids or vapours.
4. Subject to direct water spray from hoses.
5. Ambient temperatures higher than 40°C or less than –20°C.
6. Possible obstructions which would hinder the access or removal of the Controller.
7. All wiring must be in accordance with the current IEE wiring regulations BS7671, or
appropriate standards of your country. Installation should be inspected and tested by a
suitably qualified person after completion.
8. Ensure the mains supply (voltage, frequency and phase) complies with the rating label.
9. A means for electrical disconnection must be incorporated in the fixed wiring to the unit in
accordance with the wiring rules having a contact separation in all poles of at least 3mm.
This should be installed adjacent to the unit.
10.These units must be earthed.
11. Precautions must be taken to avoid the back-flow of gases into the building from the
open flue of gas or other fuel-burning appliances.
12. This appliance is not intended for use by persons (including children) with reduced
physical, sensory or mental capabilities, or lack of experience and knowledge, unless
they have been given supervision or instruction concerning use of the appliance by a
person responsible for their safety.
13. Young children should be supervised to ensure that they do not play with the
appliance.
14. CAUTION: In order to avoid a hazard due to inadvertent resetting of the thermal cut- out, this
appliance must not be supplied through an external switching device, such as a timer, or
connected to a circuit that is regularly switched on and off by the utility.
15. These units are rated IP22 and are not suitable for outside use.
INSTALLATION GUIDANCE:
1. The installer is responsible for the installation and electrical connection of the system on site. It is the responsibility of the
installer to ensure that the equipment is safely and securely installed and left only when mechanically and electrically safe.
2. Short duct runs terminating close to the fan (i.e. within 1.5m) require suitable guards.
3. All regulations and requirements must be strictly followed to prevent hazards to life and property, both during and after
installation, and during any subsequent servicing and maintenance.
4. Certain applications may require the installation of sound attenuation to achieve the sound levels required.
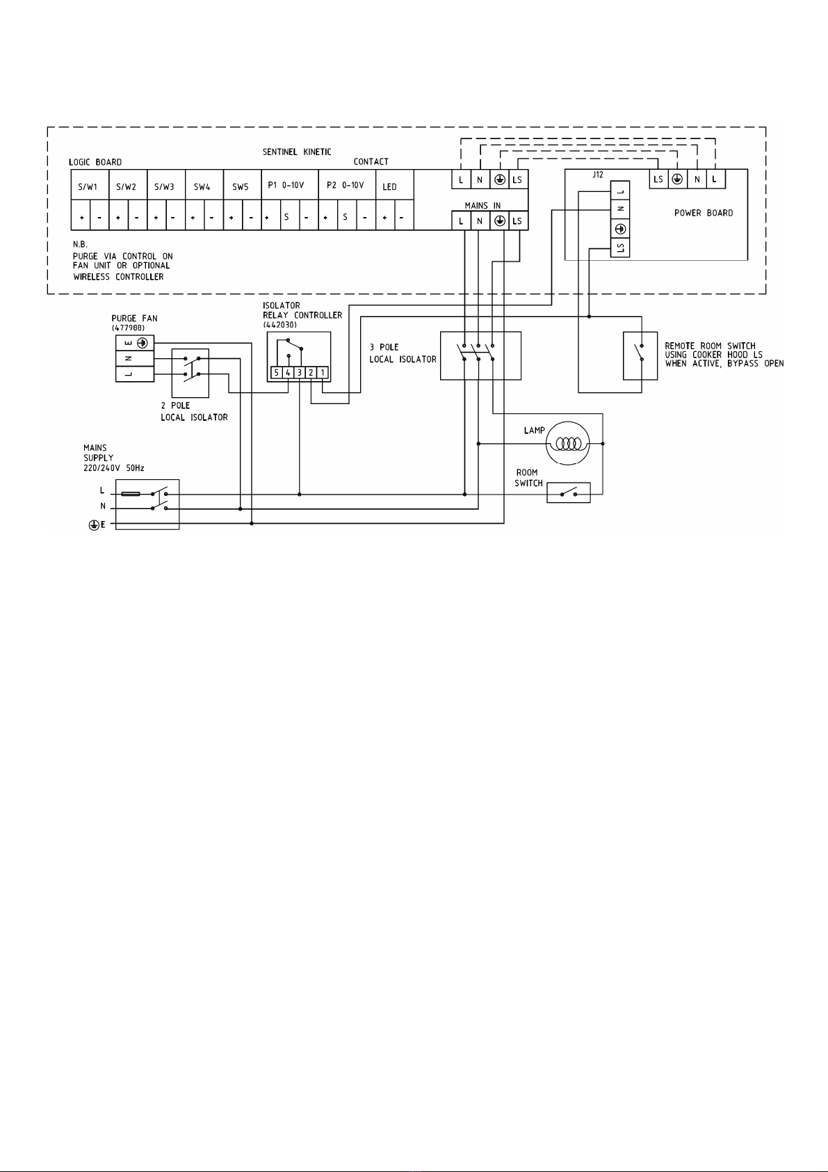
5. The unit is designed and specified for use with Vent-Axia controls, dampers, grilles and accessories.
6. All mains connections to the unit using flexible wiring or any additional controls wiring must use cable glands sufficient to
retain the IP rating of the unit and provide cable retention to the requirements of EN60335-1 Clause 25.15.
7. The fixings and anchors used to suspend and mount the unit must be compatible with the unit’s weight. Suitable drop rods
and anti-vibration mounts can be used.
8. Due to the weight of the units it is recommended that two people are involved in the installation.
9. It is recommended that flexible connections are used between the unit and rigid ducting.