
3
COMUNELLO ®Copyright 2019 - All rights reserved
ITALIANO
AVVERTENZE
• La centrale non presenta nessun tipo di dispositivo
di sezionamento della linea elettrica 230 Vac; sarà
quindi cura dell’installatore prevedere nell’impianto
un dispositivo di sezionamento. È necessario
installare un interruttore omnipolare con categoria
III di sovratensione. Esso deve essere posizionato
in modo da essere protetto contro le richiusure
accidentali secondo quanto previsto al punto 5.2.9
della EN 12453. Il cablaggio dei vari componenti
elettrici esterni alla centralina deve essere effettuato
secondo quanto prescritto dalla normativa EN
60204-1 e dalle modiche a questa apportata dal
punto 5.2.7 della EN 12453. I cavi di alimentazione
possono avere un diametro massimo di 14
mm; il ssaggio dei cavi di alimentazione e
di collegamento, deve essere garantito tramite
l’assemblaggio di pressacavi fornibili “optional”.
• Per i cavi di alimentazione si raccomanda di utilizzare
cavi essibili sotto guaina isolante in policloroprene
di tipo armonizzato (H05RN-F) con sezione minima
dei conduttori pari a 1 mm
2
.
• Utilizzare in fase di installazione esclusivamente
cavi in doppio isolamento (cavi con guaina) sia per
i collegamenti a tensione di rete (230V) che per i
collegamenti in bassissima tensione di sicurezza
SELV. Utilizzare esclusivamente canalette in
plastica, distinte per i cablaggi in bassa tensione
(230V) e per i cablaggi in bassissima tensione di
sicurezza (SELV).
• I conduttori a bassissima tensione di sicurezza
devono essere separati (almeno 4 mm in aria)
dai conduttori a tensione di rete, oppure devono
essere adeguatamente isolati con isolamento
supplementare avente spessore di almeno 1 mm.
• Prevedere a monte della rete di alimentazione
dell’automazione un dispositivo che assicuri
la disconnessione completa omnipolare della
rete, con una distanza di apertura dei contatti in
ciascun polo di almeno 3mm. Tali dispositivi di
disconnessione devono essere previsti nella rete
di alimentazione conformemente alle regole di
installazione e devono essere direttamente collegati
ai morsetti di alimentazione.
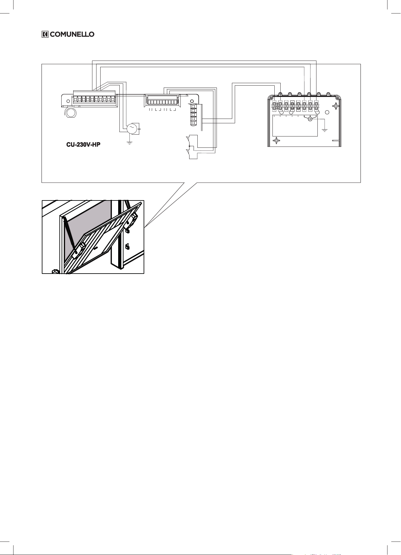
• Nel caso d’installazione all’interno di un quadro di
controllo QUAD, fare attenzione, in fase di foratura
dell’ involucro esterno per far passare i cavi di
alimentazione e di collegamento, e di assemblaggio
dei pressacavi, ad installare il tutto in modo da
mantenere il più possibile inalterate le caratteristiche
di grado IP della scatola. Prestare inoltre attenzione
ai cavi in modo che siano ancorati in modo stabile,
e a non danneggiare la scheda con la foratura.
• L’involucro nella parte posteriore è provvisto di
opportune predisposizioni per ssare a
muro (predisposizione per fori mediante tasselli
o fori per ssare mediante viti). Prevedere
e implementare tutti gli accorgimenti per una
installazione che non alteri il grado IP.
• L’eventuale montaggio di una pulsantiera per il
comando manuale deve essere fatto posizionando
la pulsantiera in modo che l’utente non venga a
trovarsi in posizione pericolosa.
• Il motoriduttore usato per muovere il cancello deve
essere conforme a quanto prescritto al punto 5.2.7
della EN 12453.
• L’uscita FOTO+ (CN2) è necessariamente dedicata
all’alimentazione delle fotocellule, non è consentito
l’utilizzo per altre applicazioni.
• La centrale ad ogni ciclo di manovra può effettuare
il test di funzionamento delle fotocellule, garantendo
una protezione al guasto dei dispositivi anti
schiacciamento di Categoria 2 secondo quanto
prescritto al punto 5.1.1.6. della EN 12453. Quindi
se i dispositivi di sicurezza non vengono connessi
e/o non sono funzionanti la centrale non è abilitata
al funzionamento.
•
L’apparecchio può essere utilizzato da bambini di
età non inferiore a 8 anni e da persone con ridotte
capacità siche, sensoriali o mentali, o prive di
esperienza o della necessaria conoscenza, purché
sotto sorveglianza oppure dopo che le stesse abbiano
ricevuto istruzioni relative all’uso sicuro dell’apparecchio
e alla comprensione dei pericoli ad esso inerenti. Non
consentire ai bambini di giocare con il dispositivo e
tenere lontano dalla loro portata i radiocomandi.
La pulizia e la manutenzione destinata ad essere
effettuata dall’utilizzatore non deve essere effettuata
da bambini senza sorveglianza.
Nota importante: conservare questo manuale
d’istruzioni e rispettare le importanti prescrizioni di
sicurezza in esso contenute. Il non rispetto delle
prescrizioni potrebbe provocare danni e gravi incidenti.
Esaminare frequentemente l’impianto per rilevare
eventuali segni di danneggiamento.
Nel manuale sono presenti dei QR-CODE con il link diretto al canale You-Tube “COMUNELLO
TV” dove sono pubblicati i video tecnici delle programmazioni più importanti per la messa in servizio
dell’automazione spiegati passo-passo.
Per visualizzare i video sarà necessario avere una connessione ad internet ed installare nel proprio
Tablet o Smartphone un lettore di codici QR disponibile nell’APPLE STORE per i dispositivi
iOs oppure in GOOGLE PLAY per i dispositivi Android.