
1.Disconnect power supply before making wiring connections to prevent electrical shock and equipment damage.
2. All wiring must comply with applicable codes and ordinances.
3. When wiring is completed, check all components by running system through its entire heating cycle.
4. Check vent pipe system for leakage. All vent system leaks must be sealed prior to the installation of the Draft Inducer.
5. Flue gas temperature must not exceed 575o F at Draft Inducer inlet.
1. Loosen set screw on Draft Inducer wheel hub.
2.Remove nuts which attach motor mount to housing. Remove motor/mount
assembly and remove defective motor. NOTE: USE CARE SO
FASTENERS ARE NOT LOST.
3. To ensure proper performance and extended bearing life of the motor, inspect
wheel and clean if necessary. Refer to the installation instructions of your unit
for proper maintenance procedures.
4. Position new motor onto motor mount. Firmly fasten motor to motor mount
using proper spacers, washers and nuts removed in step 2. Insert motor
shaft into Draft Inducer wheel and attach motor/mount assembly to housing
with nuts removed in step 2.
5. Tighten Draft Inducer wheel set screw onto flat of motor shaft. Spin the wheel
by hand to ensure proper alignment and equal blade clearance on both
housing sides.
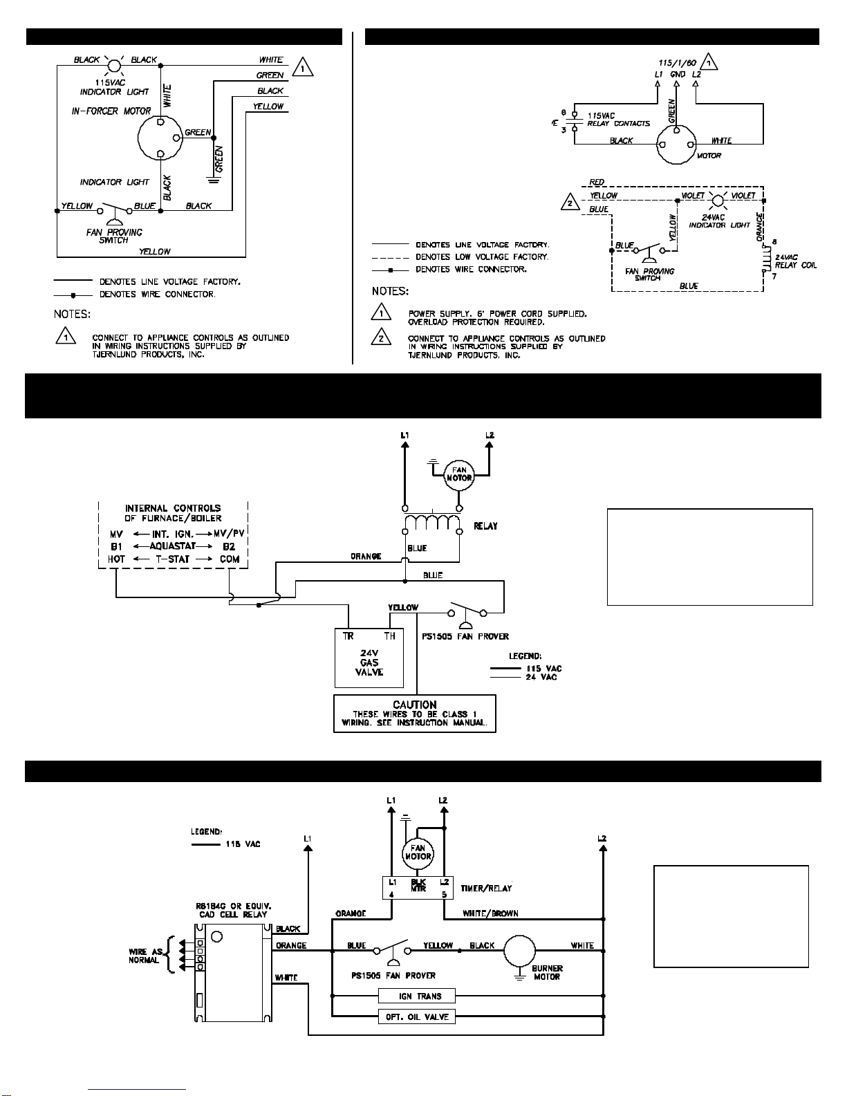
6. Wire Draft Inducer according to appropriate diagram on page 3. If appropriate
circuit does not appear, consult Tjernlund Products, Inc. at 800-255-4208.
UNIT MUST BE GROUNDED! All wiring must be done in accordance with the
NEC and applicable codes. The wiring from the appliance should be protected
by overcurrent protection(fuses or circuit breakers) rated 15 amperes or less,
as applicable for 14 AWG conductors. EXTREME CAUTION MUST BE
EXERCISED TO ENSURE THAT WIRING DOES NOT COME INTO
CONTACTWITH ANY HEAT SOURCE.
7. Check heater and Draft Inducer operation. Vari-Draft control on Draft Inducer
should be adjusted so that there is no spillage at draft diverter,hood or barometric.
MODELS D3 AND AD-1 MOTOR REPLACEMENT (DIAGRAM A)
MODEL 950-3022 REPLACEMENT MOTOR KIT
MODELS
AD-1
D-3
IN-FORCER PAI-1 & 2 SERIES WITH DATE CODES AFTER “9704” (DIAGRAM B)
1. Remove (6) screws from bottom front and sides of IN-FORCER while holding blower assembly firmly.
2. Carefully slide blower assembly down until stops hold blower unit in place.
3. Loosen set screw on wheel hub.
4.Remove nuts which attach motor mount to housing. Remove motor/mount assembly and remove defective motor. NOTE: USE CARE SO
FASTENERS ARE NOT LOST.
5. Position new motor onto motor mount. Firmly fasten motor to motor mount using proper spacers, washers and nuts removed in step 4.
Insert motor shaft into IN-FORCER wheel and attach motor/mount assembly to housing with nuts removed in step 4.
6. Secure IN-FORCER wheel by tightening set screw onto flat of motor shaft. Spin the wheel by hand to ensure proper alignment and equal
wheel clearance on both housing sides.
7. Slide blower assembly back into housing and replace (6) screws removed in step 1.
8. Wire new motor according to appropriate IN-FORCER factory wiring diagram and run IN-FORCER and heating equipment through a couple
of cycles to verify proper operation.
DIAGRAM A
TJERNLUND PRODUCTS, INC.
1601 Ninth Street • White Bear Lake, MN 55110-6794
PHONE (800) 255-4208 • (651) 426-2993 • FAX (651) 426-9547
Visit our web site • www.tjernlund.com